Objektdaten
Objektbeschreibung
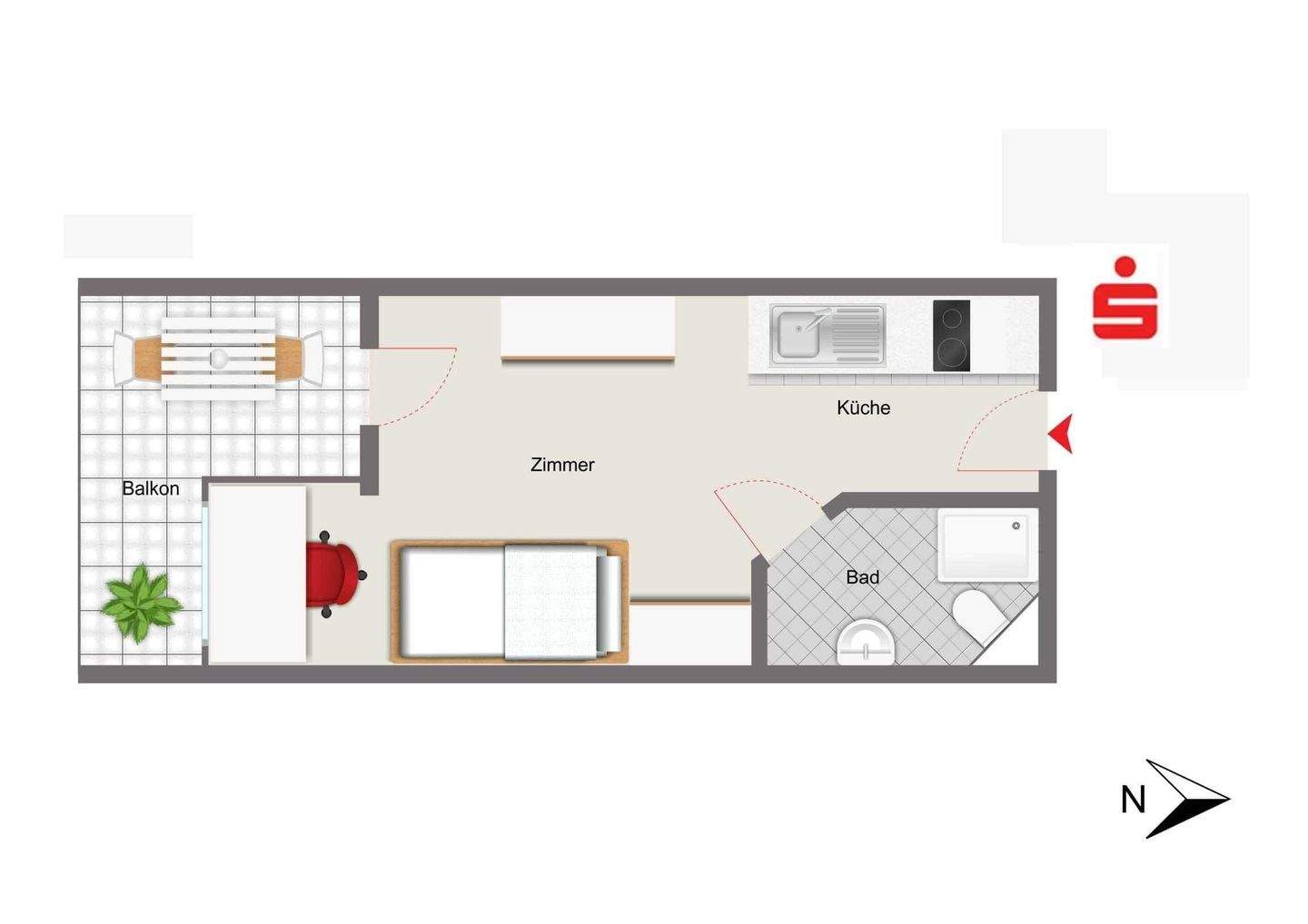
Kurzbeschreibung Hier ist ihr Geld gut angelegt Objekt - Das Appartement wurde im Jahre 1992 errichtet und befindet sich in einem gepflegten Zustand- Es wird mit einer Stromdirektheizung beheizt- Die Wohnanlage umfasst insgesamt 44 Einheiten- Der aktuelle Eigentümer hat die Immobilie bisher immer sehr gut an Studierende vermieten können, da die Universität zu Fuß nur 2 Minuten entfernt liegt- Die aktuelle Kaltmiete beträgt 380,- € und ist seit 01.12.2024 an die aktuelle Bewohnerin vermietet - Das Appartement verfügt über keinen KFZ-Stellplatz, dafür ist aber ein Fahrradraum vorhanden- Die abgebildeten Möbel (Küchenblock samt Kühlschrank, Schrank, Bett, Schreibtisch, Stuhl, Sideboard) gehören als Inventar dazu- Das aktuelle Hausgeld beträgt € 148,--; Davon sind € 87,-- auf den Mieter umlagefähig- lassen Sie sich diese Gelegenheit nicht entgehen und vereinbaren Sie einen unverbindlichen BeratungsterminÄhnliche Angebote
So funktioniert es
- Alle neuen Anzeigen matchen wir kostenlos mit Deinen Suchparametern.
- Passende Angebote senden wir Dir in einer E-Mail pro Tag.
- Du kannst auch verschiedene Suchen anlegen und Dich jederzeit abmelden. Mehr dazu




