Wie ein Eigenheim – Raum zum Leben, Spielen und Ankommen – 200 m² für die ganze Familie

Warmmiete 1.920 €
Zimmer 7
Größe 205 m²
06667 Weißenfels

Objektdaten

Veröffentlicht am: 25. März 2026
Frei ab: 1. Juli 2026
Nebenkosten: 307 €
Kaltmiete 1.285 €
Baujahr: 1928
Energieausweis: Liegt bei der Besichtigung vor
  • Objektbeschreibung

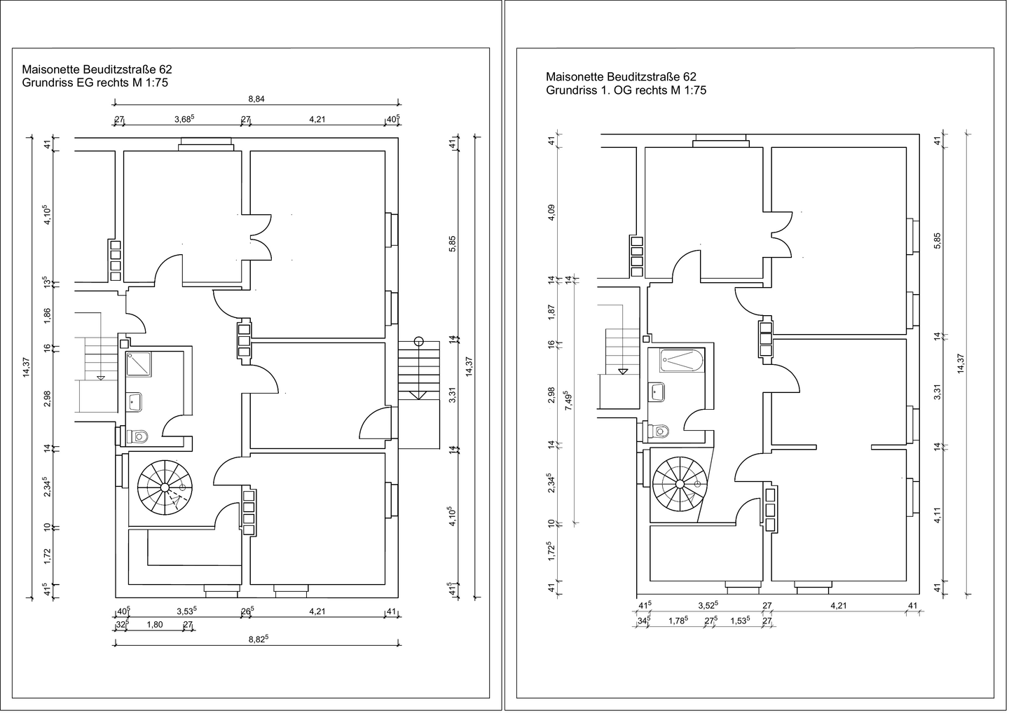
    Ansprechpartner: Daniel Lenders / 0172 - 422 49 58 Besichtigungen ab ca. März/April. Bilder folgen. Diese außergewöhnlich großzügige 7-Zimmer-Wohnung mit ca. 200 m² Wohnfläche bietet ideale Voraussetzungen für Familien, die viel Platz und ein besonderes Wohnambiente suchen. Die Wohnung erstreckt sich über das Erdgeschoss und das 1. Obergeschoss und ist durch eine sehr schöne Wendeltreppe miteinander verbunden. Ein separater, exklusiver Eingang sorgt für Privatsphäre und vermittelt das Gefühl eines eigenen Hauses. Zur Ausstattung gehören zwei helle Tageslichtbäder, jeweils mit Badewanne oder Dusche – perfekt für den stressfreien Familienalltag - kein Warten, kein Drängeln. Die großzügige Raumaufteilung bietet vielfältige Nutzungsmöglichkeiten für Wohnen, Arbeiten und Rückzug.
    Nach oben scrollen