Objektdaten
Objektbeschreibung
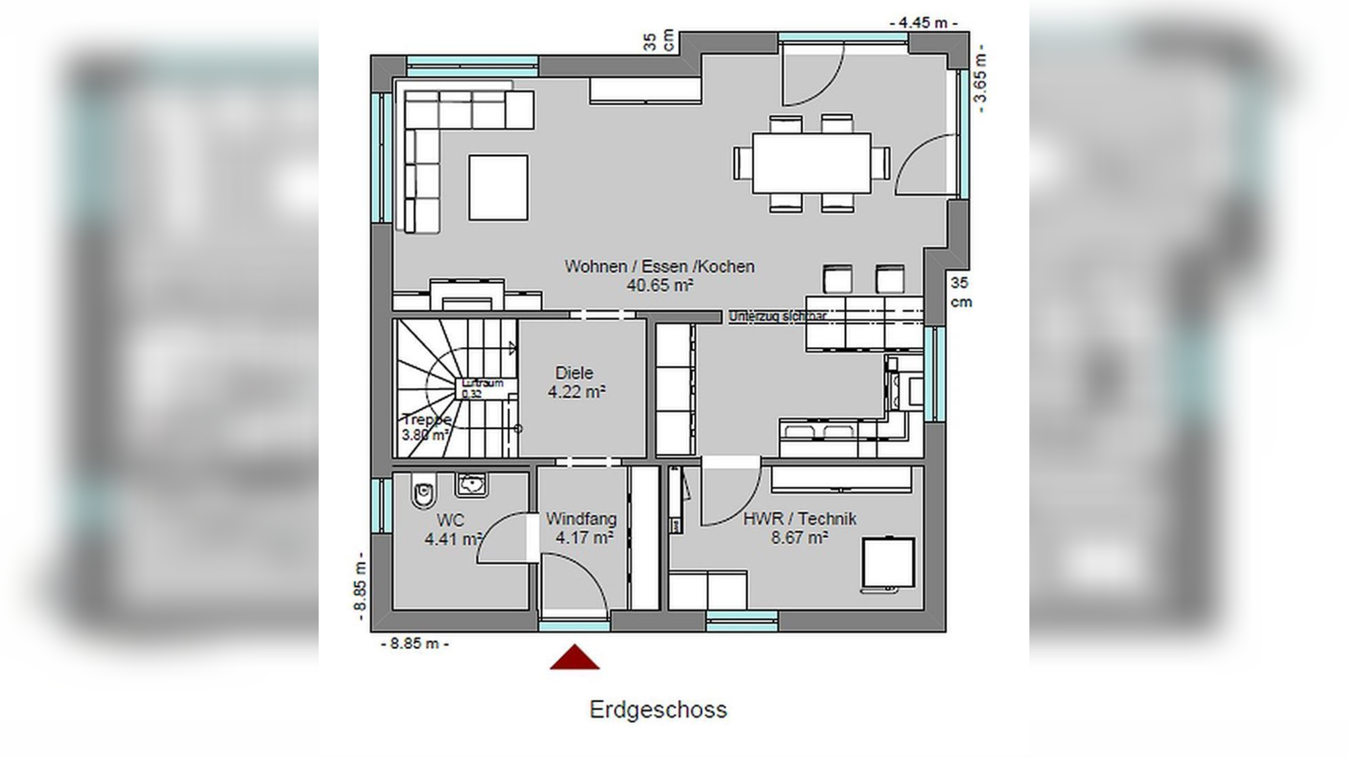
Mehr Platz für die FamilieDarf es etwas mehr sein? Den beliebten Hausentwurf mit Satteldach gibt es jetzt auch mit 128 m² Wohnfläche. Das bedeutet: Jeder Raum ist großzügiger. Unten das Familien-Kommunikationszentrum mit offener Küche und angrenzendem Hauswirtschaftsraum. Oben Schlafzimmer, Bad und zwei Kinderzimmer. Die Flure nehmen den Räumen auch bei diesem Entwurf keinen Platz weg.Dieser Hausentwurf wird nach den Wünschen der Bauherren individuell geplant und steht - wie alle Hausentwürfe von BoHolz-Haus in allen vier Ausbaustufen zur Verfügung.Mit der optionalen PV-Anlage auf dem Dach und einem Batteriespeicher im Hauswirtschaftsraum ist dieses Haus geeignet, den eigenen Strombedarf größtenteils zu decken.Ähnliche Angebote
So funktioniert es
- Alle neuen Anzeigen matchen wir kostenlos mit Deinen Suchparametern.
- Passende Angebote senden wir Dir in einer E-Mail pro Tag.
- Du kannst auch verschiedene Suchen anlegen und Dich jederzeit abmelden. Mehr dazu


