Kaufpreis 249.990 €
Zimmer 4
Größe 54 m²
07907 Oettersdorf
Objektdaten
Veröffentlicht am: 25. März 2026
Energieausweis: Liegt bei der Besichtigung vor
Danke! Bitte bestätige Deine E-Mail-Adresse – wir haben Dir soeben eine Mail geschickt.
Es gab ein Problem beim Absenden. Bitte versuche es erneut.
Bitte bestätige Deine E-Mail-Adresse, um Updates zu erhalten.
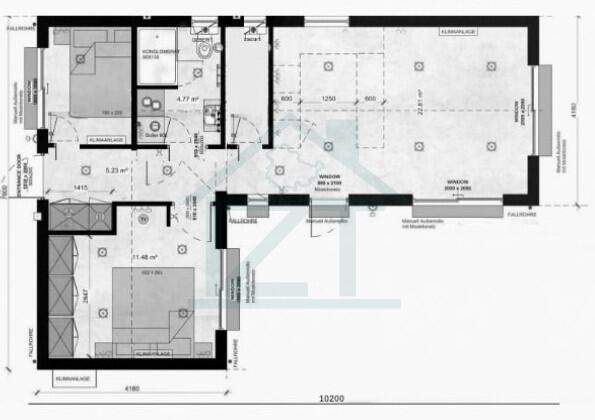
Objektbeschreibung
Vergessen Sie alles, was Sie über traditionelles Bauen wussten - hier beginnt die Ära des zukunftsorientierten Wohnens! Wir präsentieren Ihnen den MODULHAUS Bungalow der neuesten Generation: eine Lösung, die nicht nur gemütlich und hochmodern ist, sondern vor allem nachhaltig, sicher und unglaublich schnell realisierbar.Schneller zum Traumhaus: Die zeitraubende Bauphase gehört der Vergangenheit an! Dank unseres optimierten Prozesses von der Projektierung über die Fertigung bis zur Auslieferung vergehen in der Regel nur ca. sechs Monate. Das bedeutet für Sie: Weniger Arbeit, weniger Wartezeit und viel mehr Freude am Einzug.100 % Sicherheit durch Festpreisgarantie: Einer der größten Ängste beim Bauen ist das unkontrollierte Kostenrisiko. Mit uns haben Sie maximale Sicherheit! Ab der Unterschrift des Kaufvertrages erhalten Sie einen garantierten Festpreis für Ihr Modulhaus. So entstehen keine unvorhergesehenen Zusatzkosten - mehr Sicherheit und weniger Risiko geht nicht.Ökologisch und Zukunftssicher: Wir definieren modernes Wohnen neu, indem wir auf ökologische Nachhaltigkeit setzen. Durch eine energieeffiziente Bauweise und die Verwendung umweltfreundlicher Rohstoffe ermöglichen wir Ihnen zukunftsorientiertes Wohnen. Unsere Philosophie vereint faire Produktion mit höchster Energieeffizienz.Ihre Vision, unser Bauplan: Ihr neues Zuhause entsteht zu 100 % nach Ihren persönlichen Vorstellungen. Sie planen den Grundriss, die Ausstattung und das Design von innen und außen ganz nach Ihren Wünschen. Dabei erfüllen unsere Häuser die hohen KfW-Effizienzstufen 40 und 55.Langlebigkeit und Schutz: Wir verwenden ausschließlich moderne und hochwertige Materialien, die Ihrem MODULHAUS maximale Langlebigkeit und Wertstabilität garantieren.Steigen Sie jetzt um auf die smarte Art zu bauen: weniger Stress, mehr Sicherheit, nachhaltiger Wohnkomfort. Weitere Informationen zu Modulhäusern erhalten Sie unter: www.tiny-modulhaus.com
So funktioniert es
- Alle neuen Anzeigen matchen wir kostenlos mit Deinen Suchparametern.
- Passende Angebote senden wir Dir in einer E-Mail pro Tag.
- Du kannst auch verschiedene Suchen anlegen und Dich jederzeit abmelden. Mehr dazu
Wir haben soeben eine E-Mail mit Deinem Suchauftrag an Dich geschickt. – Klicke in dieser Mail auf den Bestätigungslink und schon geht's los. Prüfe ggf. auch Deinen Spamordner.
Es gab ein Problem beim Absenden Deiner E-Mail-Adresse. Bitte versuche es erneut.
WARNUNG: Bitte bestätige Deine E-Mail-Adresse, um regelmäßige Updates zu erhalten.