Kaufpreis 566.896 €
Zimmer 5
Größe 162 m²
01896 Ohorn
Objektdaten
Veröffentlicht am: 25. März 2026
Energieausweis: Liegt bei der Besichtigung vor
Danke! Bitte bestätige Deine E-Mail-Adresse – wir haben Dir soeben eine Mail geschickt.
Es gab ein Problem beim Absenden. Bitte versuche es erneut.
Bitte bestätige Deine E-Mail-Adresse, um Updates zu erhalten.
Objektbeschreibung
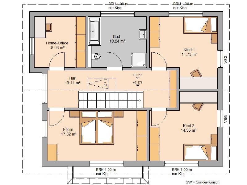
Das Familienhaus Vero überzeugt auf über 160 Quadratmetern durch die Großzügigkeit der Räume sowie seiner offenen Grundrissgestaltung im Wohnbereich: Die offene Küche und der Wohn- und Essbereich umfassen zusammen über 50 Quadratmeter und haben bodentiefe Fenster oder Türen. An die Küche, die Sie mit einer Kochinsel ausstatten können, angeschlossen ist eine praktische Speisekammer. Highlight des Hauses ist der Flachdacherker im Wohnzimmer. Sowohl vom Wohn- und Esszimmer als auch von der Küche aus haben Sie Zugang zum Garten. Gemütlichkeit, gepaart mit attraktiver Innenraumgestaltung sowie einem direkten Blick und Zugang in den Garten prägen die gesamte Wohnatmosphäre. Das Erdgeschoss wird komplettiert durch ein Gäste-WC, eine Garderobennische in der Diele und den Hauswirtschaftsraum. Hingucker im Eingangsbereich ist die geradläufige Treppe, die ins Dachgeschoss führt. Dort finden sich zwei fast gleich große Kinderzimmer, ein Eltern-Schlafzimmer, ein Badezimmer und ein Home-Office, das auch als Gästezimmer genutzt werden kann. Alle Zimmer verfügen über bodentiefe Fenster, die für ausreichend Helligkeit sorgen. Modern sind auch die Fenster im Drempelbereich und die mögliche Fassadengestaltung durch farbige Putzflächen.Dieses Haus wird nach Ihren individuellen Wünschen geplant und ausgestattet!
So funktioniert es
- Alle neuen Anzeigen matchen wir kostenlos mit Deinen Suchparametern.
- Passende Angebote senden wir Dir in einer E-Mail pro Tag.
- Du kannst auch verschiedene Suchen anlegen und Dich jederzeit abmelden. Mehr dazu
Wir haben soeben eine E-Mail mit Deinem Suchauftrag an Dich geschickt. – Klicke in dieser Mail auf den Bestätigungslink und schon geht's los. Prüfe ggf. auch Deinen Spamordner.
Es gab ein Problem beim Absenden Deiner E-Mail-Adresse. Bitte versuche es erneut.
WARNUNG: Bitte bestätige Deine E-Mail-Adresse, um regelmäßige Updates zu erhalten.