Objektdaten
Objektbeschreibung
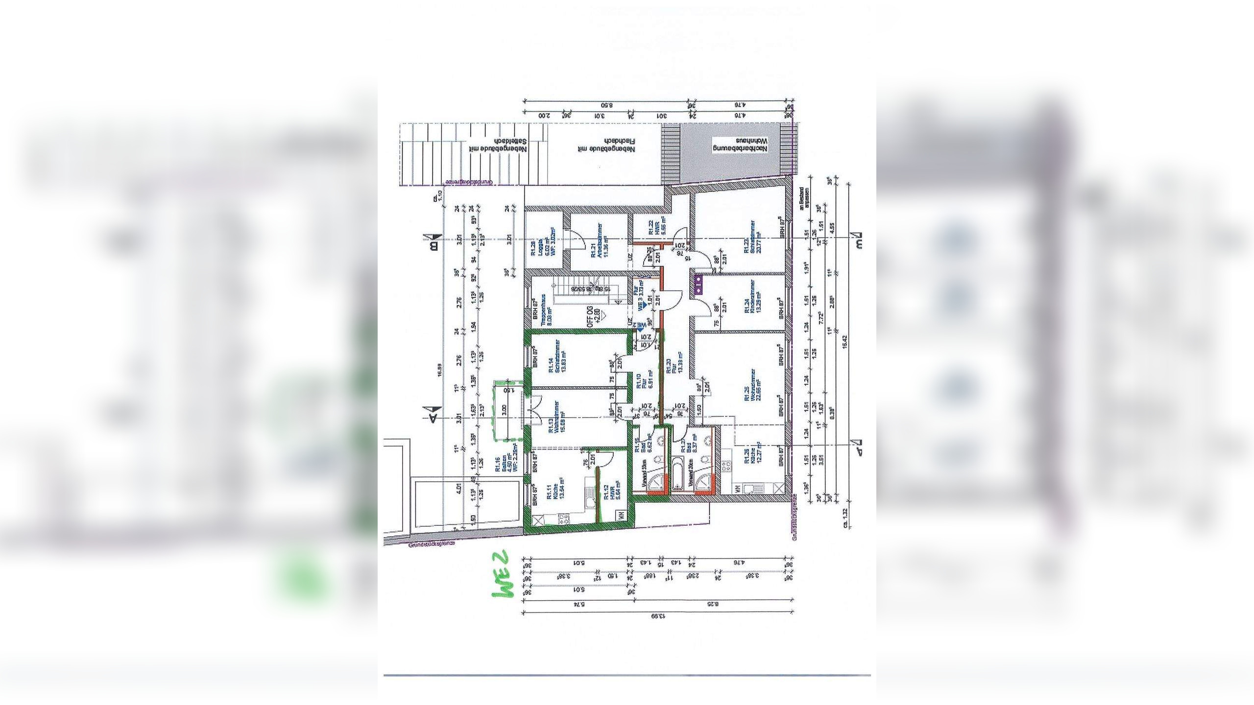
Das im Jahr 2023 errichtete Gebäude wurde nach aktuellsten Richtlinien EneV errichtet. Wärmeerzeugung über Wärmepumpe, Photovoltaik für Hausstrom und Ladesäule, Fußbodenheizung in allen Räumen, kontrollierte Be- und Entlüftung, Raum für gemeinschaftliche oder private Feiern (Gewölbekeller). Fahrrad- Kinderwagenraum., Hausmeisterbetreuung u.v.m.Ähnliche Angebote
So funktioniert es
- Alle neuen Anzeigen matchen wir kostenlos mit Deinen Suchparametern.
- Passende Angebote senden wir Dir in einer E-Mail pro Tag.
- Du kannst auch verschiedene Suchen anlegen und Dich jederzeit abmelden. Mehr dazu





