Objektdaten
Objektbeschreibung
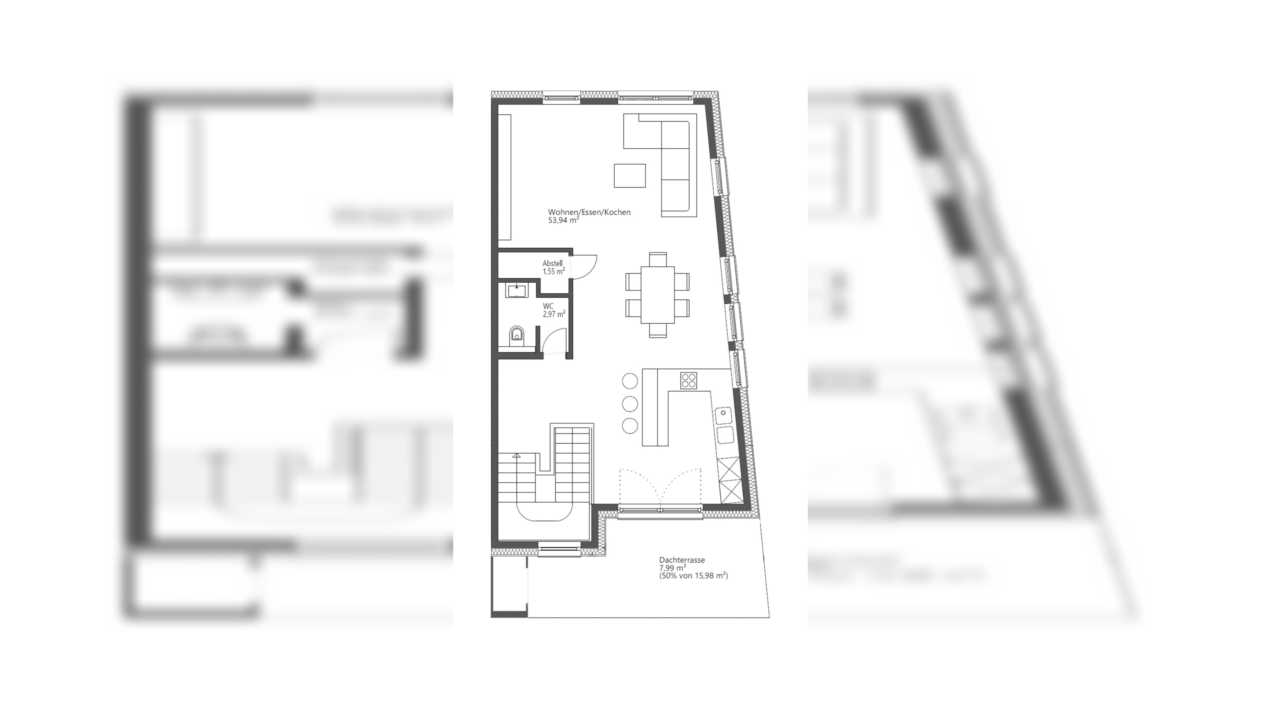
Die ca.147-m²-Obergeschosswohnung besteht aus vier Zimmern und drei Bädern bzw. WC, verteilt über zwei Geschosse und aus einer etwa 16 m² große Dachterrasse und einem Balkon. Zusätzlich ist ein Kellerraum von ca. 22 m² Fläche der Wohnung zugehörig. Die Bauausführung wird als zweigeschossiges Gebäude zuzüglich eines Staffelgeschosses und eines unterliegenden Gartengeschosses erfolgen und in zwei Haushälften mit jeweils zwei Eigentumswohnungen unterteilt werden. Jede Haushälfte wird ein separates Treppenhaus mit Allgemeinfluren erhalten, die den Zugang zu den Wohnungen und Räumen im Untergeschoss (Gartengeschoss) schaffen. Im Vorgarten wird ein voll versenkbarer Parklift mit Begrünung für vier Pkw-Stellplätze entstehen, die optional erworben werden können. Die Errichtung der Stadtvilla wird in hoher Bauqualität erfolgen nach KfW55-Effizienzstandard und mit einer Luft-Wasser-Wärmepumpe und Fußbodenheizung ausgestattet werden. Die Gestaltung der jeweiligen Wohnungen beinhaltet u.a. Parkettböden in Fischgrätmuster in den Wohnräumen und Bäder mit großformatigen Porcelaine-Fliesen und Produkte von Kaldewei, Dornbracht und Duravit.Ähnliche Angebote
So funktioniert es
- Alle neuen Anzeigen matchen wir kostenlos mit Deinen Suchparametern.
- Passende Angebote senden wir Dir in einer E-Mail pro Tag.
- Du kannst auch verschiedene Suchen anlegen und Dich jederzeit abmelden. Mehr dazu




