Objektdaten
Objektbeschreibung
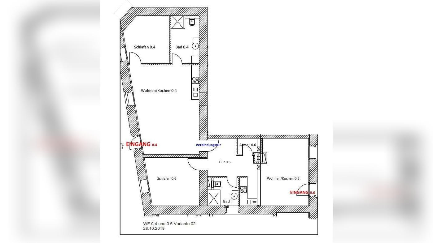
Die schöne und moderne Wohnung befindet sich in der Speicherresidenz direkt am Hafen in Barth. Diese Unterkunft ist vollmöbliert, verfügt über eine Terrasse, zwei Stellplätze und kostenfreies WLAN/LAN. Die Wohnung besteht aus 2 separat bewohnbaren Einheiten mit jeweils ca. 54 m² und 56 m². Beide Wohnungen sind durch eine massive Verbindungstür verknüpft, die bei Bedarf geschlossen bzw. geöffnet werden kann. Insgesamt gibt es zwei Wohnzimmer, zwei Schlafzimmer und zwei Bäder. Zusätzliche Schlafplätze bieten sich auf den aufklappbaren Schlafsofas in jedem Wohnzimmer. Die moderne Küche ist mit allen nötigen Utensilien und Geräten ausgestattet. Die Wohnungen werden zusammen oder separat und möbliert auf Zeit vermietet. Eine Dauervermietung ist nach Absprache auch möglich. Eckdaten zum Angebot:- 100 m² oder 54 m² oder 56 m²- verfügbar 01.12..23- Mindestmietdauer 1 Monat- Mietpauschale für 100 m² inklusive Heiz- und Wasserkosten 2300 EUR- Stromverbrauch wird exra abgerechnet- Kaution Mietdauerabhängig- Stellplatz inklusive- kostenfreies Wlan und Lan - Haustiere erlaubtÄhnliche Angebote
So funktioniert es
- Alle neuen Anzeigen matchen wir kostenlos mit Deinen Suchparametern.
- Passende Angebote senden wir Dir in einer E-Mail pro Tag.
- Du kannst auch verschiedene Suchen anlegen und Dich jederzeit abmelden. Mehr dazu





