Bauen in unmittelbarer *Haupt*Stadtnähe – schönes großes Grundstück –

Kaufpreis 837.500 €
Zimmer 5
Größe 150 m²
16540 Hohen Neuendorf

Objektdaten

Veröffentlicht am: 26. März 2026
Energieausweis: Liegt bei der Besichtigung vor
Neu

Über ähnliche Angebote direkt informiert werden

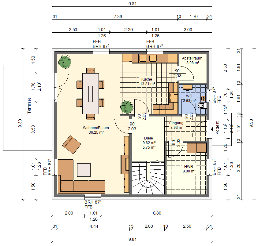
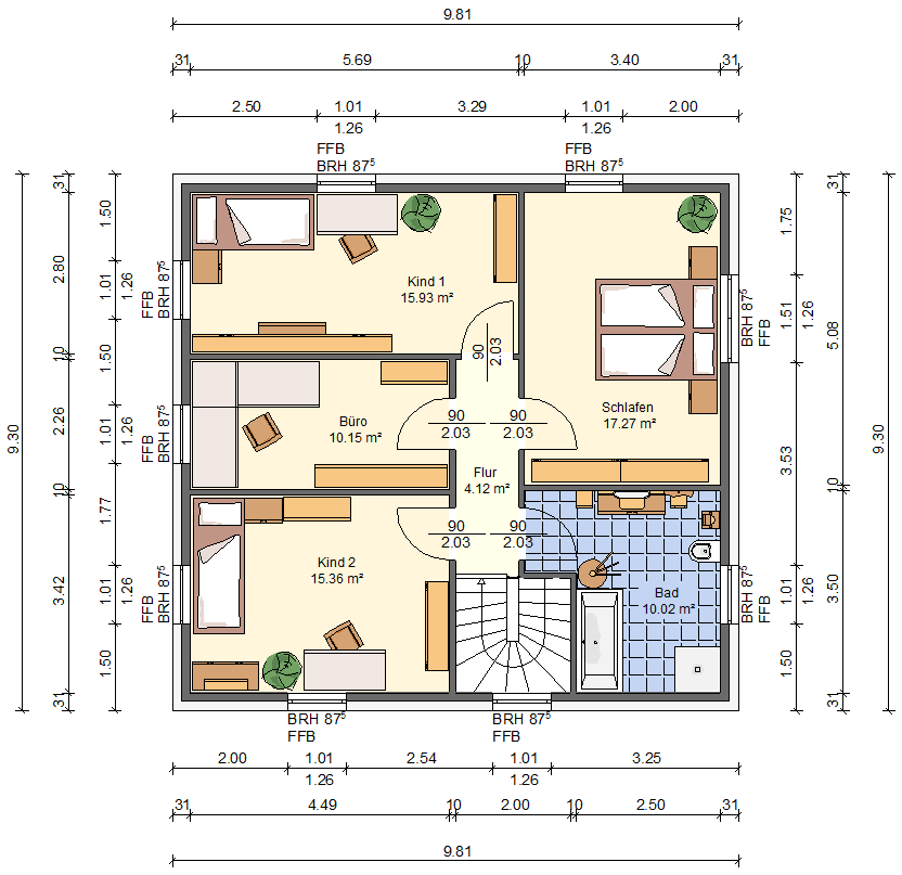
  • Objektbeschreibung

    Wir machen aus Wohnraum Lebensraum. Sie haben an sich selbst sowie an die Qualität und Leistung Ihres Baupartners einen hohen Anspruch? Ihr neues Avos Haus ist weit mehr als nur ein umbauter Raum zum Wohnen! Wir verstehen jedes unserer geplanten und gebauten Häuser als den individuellen Lebensraum für Sie und Ihre Familie. Mit höchsten Ansprüchen an den Ausdruck der eigenen Persönlichkeit in Ihrer neuen Lebens- und Wohnwelt.

    So funktioniert es

    • Alle neuen Anzeigen matchen wir kostenlos mit Deinen Suchparametern.
    • Passende Angebote senden wir Dir in einer E-Mail pro Tag.
    • Du kannst auch verschiedene Suchen anlegen und Dich jederzeit abmelden. Mehr dazu
    Nach oben scrollen