Kaufpreis 527.500 €
Zimmer 3
Größe 85 m²
23558 Lübeck
Objektdaten
Veröffentlicht am: 27. März 2026
Energieausweis: Liegt bei der Besichtigung vor
Danke! Bitte bestätige Deine E-Mail-Adresse – wir haben Dir soeben eine Mail geschickt.
Es gab ein Problem beim Absenden. Bitte versuche es erneut.
Bitte bestätige Deine E-Mail-Adresse, um Updates zu erhalten.
Objektbeschreibung
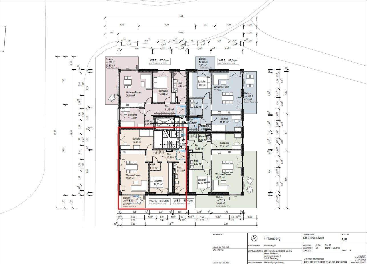
Auf dem Grundstück am Finkenberg 37 entsteht ein modernes Neubauprojekt mit insgesamt 20 Eigentumswohnungen, das aus zwei Baukörpern besteht. Haus 1 liegt direkt am Schwarzen Weg, während Haus 2 unmittelbar an die historische Dräger Villa grenzt. Das Grundstück fällt zum Wasser ab, sodass viele Wohnungen einen attraktiven Blick auf die Kanal-Trave erhalten und von einer außergewöhnlichen Wohnatmosphäre profitieren.Die Gebäude werden in massiver Bauweise mit Flachdach und Klinkerfassade errichtet.Die hier angebotene Zwei-Zimmer-Wohnung befindet sich im 1. Obergeschoss von Haus 1 und wird über eine Wohnfläche von insgesamt 85,5 m² verfügen. Unter dem Gebäude befindet sich eine Tiefgarage mit 25 PKW-Stellplätzen sowie zwei Fahrradräumen mit insgesamt 30 Fahrradstellplätzen. Für die Tiefgarage ist ein komfortabler PKW Aufzug vorgesehen. Ein Kellerraum ist der Wohnung ebenfalls zugeordnet. Alle Etagen einschließlich des Kellers/Tiefgarage sind bequem über den Fahrstuhl zu erreichen.Der großzügige Wohn- und Essbereich beeindruckt durch seine Weitläufigkeit und wird dank zahlreicher bodentiefer Fenster von hellem Tageslicht durchflutet.Die Wohnung verfügt über einen Balkon mit Süd-Westausrichtung und seitlichen Blick auf die Kanal-Trave.Neben dem außenliegenden Bad mit Fenster und ebenerdiger Dusche, verfügt die Wohnung über einen praktischen Hauswirtschaftsraum mit Waschmaschinenanschluss.Die Ausstattung Ihrer Wohnung können Sie ganz nach Ihren individuellen Wünschen gestalten. Ob Elektroplanung, Sanitärobjekte, Bodenbeläge, Fliesen oder Innentüren - Sie bestimmen, wie Ihr neues Zuhause aussehen soll. Grundlage hierfür ist die Bau- und Leistungsbeschreibung des Bauträgers, die wir Ihnen gerne auf Anfrage zusenden.Die Fertigstellung erfolgt voraussichtlich Mitte 2028.Sollten Sie sich für eine andere Wohnung in der Wohnanlage am Finkenberg 37 interessieren, die hier nicht aufgeführt ist, sprechen Sie uns gerne an.
So funktioniert es
- Alle neuen Anzeigen matchen wir kostenlos mit Deinen Suchparametern.
- Passende Angebote senden wir Dir in einer E-Mail pro Tag.
- Du kannst auch verschiedene Suchen anlegen und Dich jederzeit abmelden. Mehr dazu
Wir haben soeben eine E-Mail mit Deinem Suchauftrag an Dich geschickt. – Klicke in dieser Mail auf den Bestätigungslink und schon geht's los. Prüfe ggf. auch Deinen Spamordner.
Es gab ein Problem beim Absenden Deiner E-Mail-Adresse. Bitte versuche es erneut.
WARNUNG: Bitte bestätige Deine E-Mail-Adresse, um regelmäßige Updates zu erhalten.