Objektdaten
Objektbeschreibung
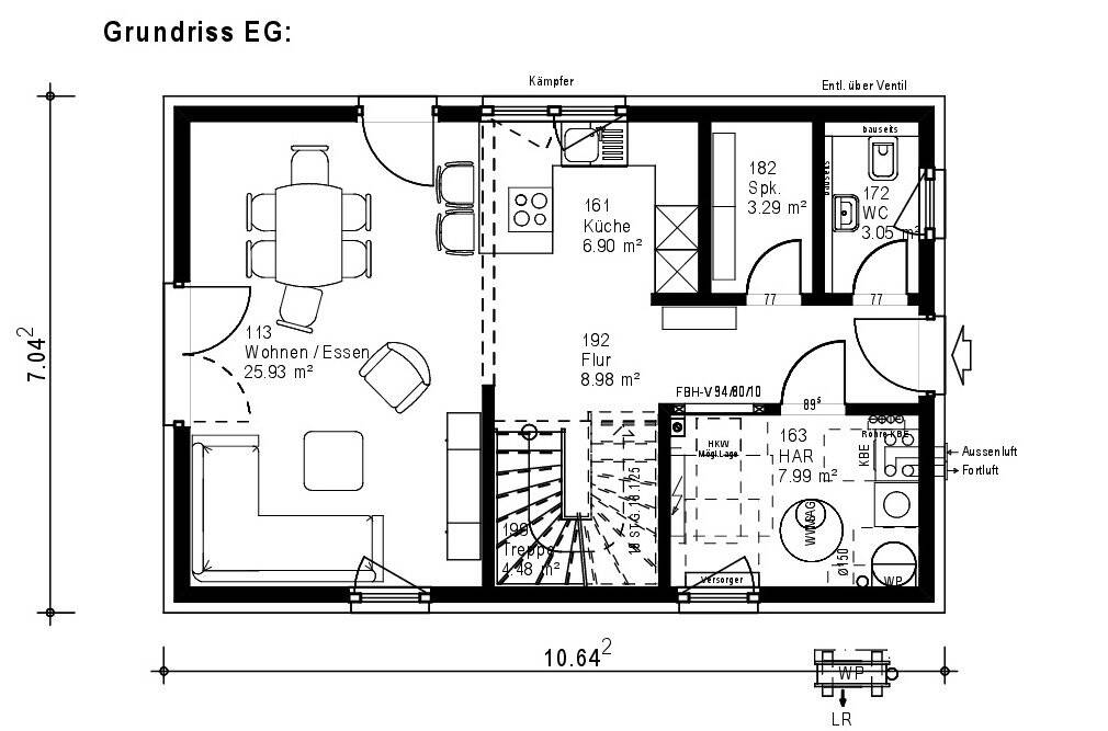
Entdecken Sie ein individuell projektiertes Einfamilienhaus in Heusenstamm, das exakt nach Ihren persönlichen Vorstellungen umgesetzt wird. Das großzügige Raumangebot verteilt sich auf 6 Zimmer und 178 m² Wohnfläche über drei Etagen - ideal für Familien, die Wert auf Freiraum legen. Fünf Schlafzimmer und zwei zeitgemäß ausgestattete Badezimmer mit Fenster, Dusche und Badewanne bieten Ihnen und Ihrer Familie hohen Komfort. Die offene, variable Raumaufteilung eröffnet Ihnen grenzenlosen Gestaltungsspielraum für Ihr Wunschhaus. Das 285 m² große Grundstück befindet sich in einem ruhigen Wohngebiet, das naturnahes Wohnen mit einer hervorragenden Anbindung an die städtische Infrastruktur verbindet.So funktioniert es
- Alle neuen Anzeigen matchen wir kostenlos mit Deinen Suchparametern.
- Passende Angebote senden wir Dir in einer E-Mail pro Tag.
- Du kannst auch verschiedene Suchen anlegen und Dich jederzeit abmelden. Mehr dazu

