Objektdaten
Objektbeschreibung
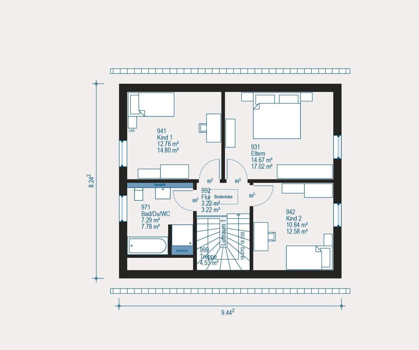
Dieses Haus vereint zeitlose Architektur mit einem durchdachten Grundriss, der großzügigen Raum für Familie, Freunde und persönliche Wünsche bietet. Bodentiefe Fensterflächen lassen viel Tageslicht herein und schaffen eine offene, freundliche Atmosphäre, in der du dich sofort zu Hause fühlst.Ob ein lebendiges Familienleben im weitläufigen Wohn- und Essbereich oder entspannte Rückzugsmöglichkeiten in den privaten Zimmern - das Aktionshaus PLACE 4 passt sich perfekt deinem Alltag an. Mit zahlreichen Inklusivleistungen und den Vorteilen unserer aktuellen Sonderaktion wird der Traum vom eigenen Zuhause jetzt besonders attraktiv und erschwinglich.So funktioniert es
- Alle neuen Anzeigen matchen wir kostenlos mit Deinen Suchparametern.
- Passende Angebote senden wir Dir in einer E-Mail pro Tag.
- Du kannst auch verschiedene Suchen anlegen und Dich jederzeit abmelden. Mehr dazu




