Objektdaten
Objektbeschreibung
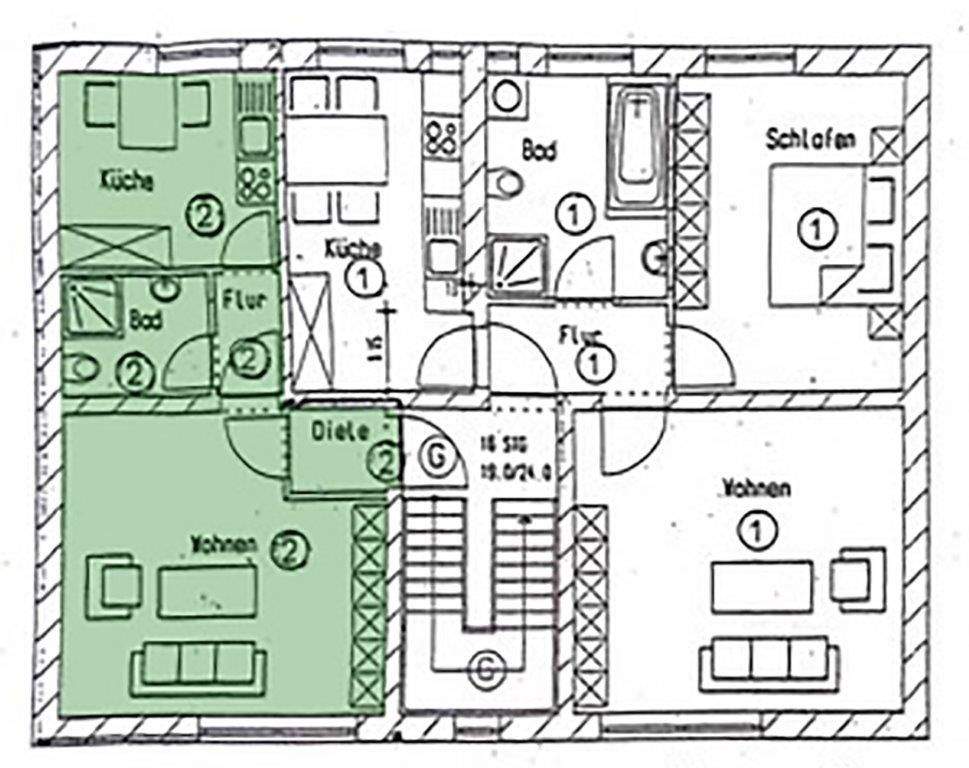
Objektart: Eigentumswohnung (WE-Nr. 02) MFH mit 8 Wohneinheiten (= WE) Wohnfläche: ca. 35 m² im Hochparterre Grundstück: 346 m² (Flur 1, Flurstück 585/1) Kenndaten: - Gebäude-Baujahr: 1935 - Kernsanierung: 1995 - letzte Renovierung: 2026 - ca. 35 m² Wohnfläche - 1 Wohnraum - Küche (Einbauküche inklusive) - Wannenbad - Fenster: 2-fach isol., Kunststoff - Fussböden: Textilbelag, Fliesen - Zentralheizung (Fernwärme) - Gebäude-Endenergieverbrauch: 103 kWh/(m²a) - Abwasser ans Ortsnetz - eigener Abstellraum im KG - Fahrradabstellraum im KG (Gemeinschaftseigentum) - Hauswartraum im KG (Gemeinschaftseigentum) - leerstehend - sofort neu vermietbarÄhnliche Angebote
So funktioniert es
- Alle neuen Anzeigen matchen wir kostenlos mit Deinen Suchparametern.
- Passende Angebote senden wir Dir in einer E-Mail pro Tag.
- Du kannst auch verschiedene Suchen anlegen und Dich jederzeit abmelden. Mehr dazu




