Objektdaten
Objektbeschreibung
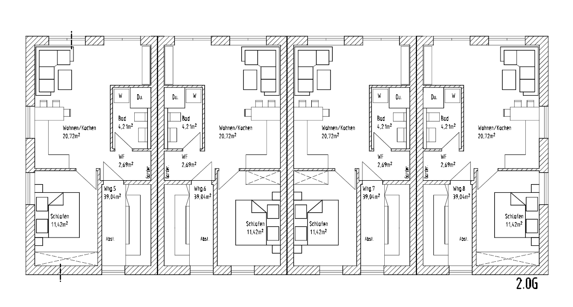
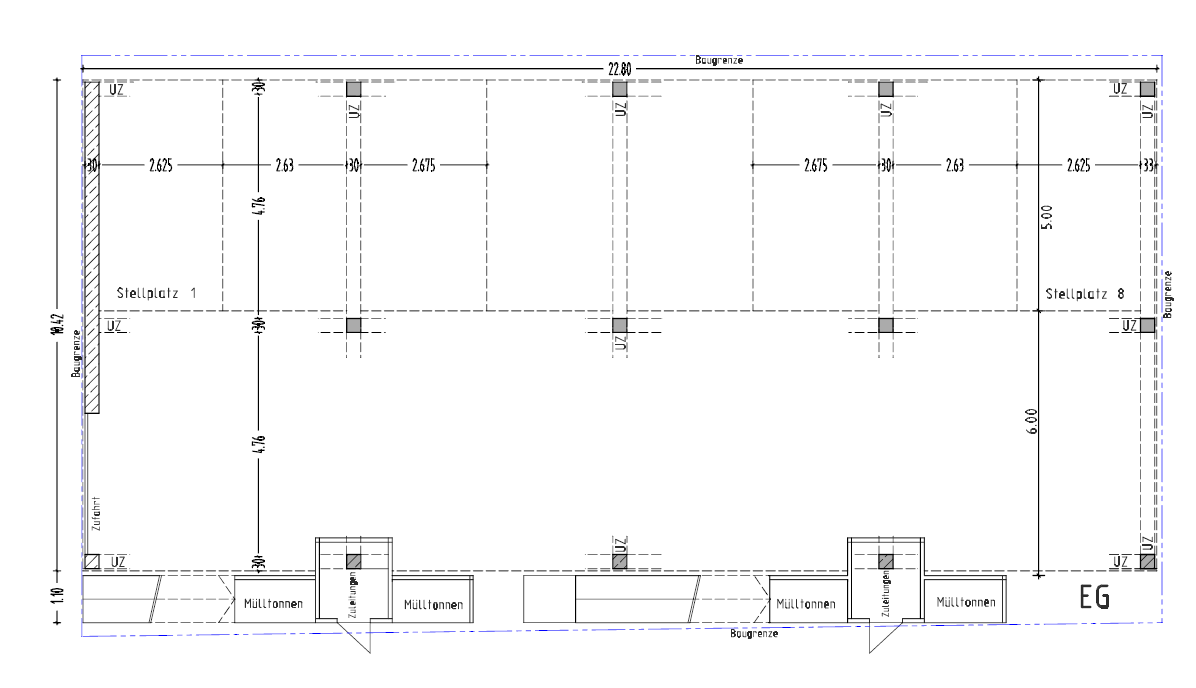
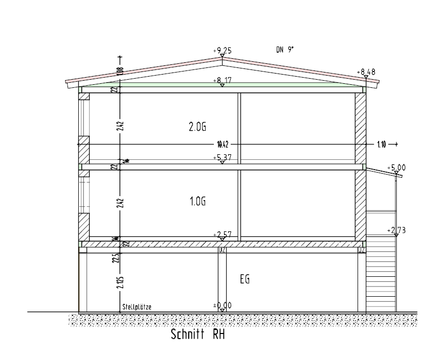
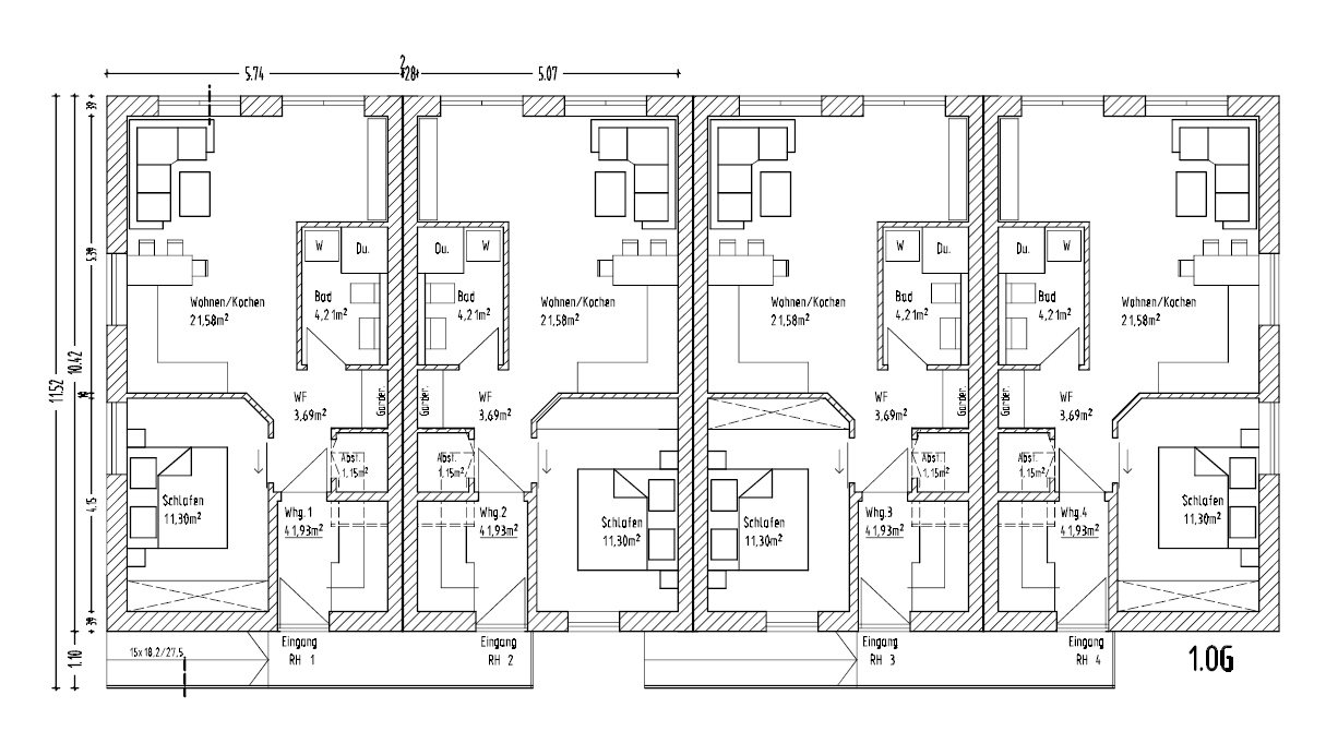
Auf dem Gelände der ehemaligen Gärtnerei Höfler-Marold in Nittenau entstehen als weitere Neubaumaßnahme 8 Eigentumswohnung mit je 2 Zimmern als "Energieeffizienzhaus 40" .Die Bauweise erfolgt in Holzbau massiv oder in Holzständer mit niedrigem Energiebedarf.Die Wohnflächen in den 2-Zimmer-Wohnungen betragen ca. 39 m² - ca. 42 m².Große Fensterflächen sorgen für lichtdurchflutete Räume. Die Kfz.-Stellplätze werden direkt unter den Wohnungen errichtet.Die gesamte Planung ist darauf ausgelegt, dass viel Grün in den Wohnpark einfließt und die befestigten Flächen auf das Nötigste reduziert werden.Eine zukunftsorientierte und nachhaltige Bebauung mit energieeffizienten Häusern sind das vorgegebene Ziel der Planungen. Die Bauausführung entnehmen Sie bitte der Baubeschreibung in der Anlage.So funktioniert es
- Alle neuen Anzeigen matchen wir kostenlos mit Deinen Suchparametern.
- Passende Angebote senden wir Dir in einer E-Mail pro Tag.
- Du kannst auch verschiedene Suchen anlegen und Dich jederzeit abmelden. Mehr dazu




