Objektdaten
Objektbeschreibung
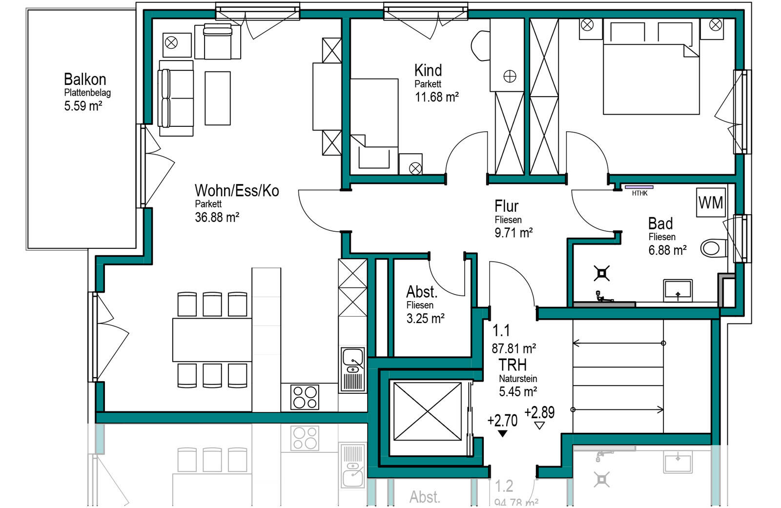
Schöner WohnenEine geradlinige, zeitgemäße und klar strukturierte Optik macht dieses Wohnhaus zu einer Wohltat fürs Auge. Das Flachdach für voll ausgenutzt Raumhöhe ist das Sahnehäubchen obendrauf und gibt dem Gebäude bei aller Modernität einen richtig urbanen Charakter. Ihr Auto parkt komfortabel am eigenen Stellplatz. Heimkommen, aufatmen und sich sofort wohlfühlen: Alles genau so, wie es sein soll.Grünes IdyllEin pflegeleichter Garten bei den Wohnungen im Erdgeschoss zum Spielen, Grillen und Genießen macht das Sommerglück perfekt. Und wenn das noch nicht reicht: Das Landschaftsschutzgebiet Pegnitztal befindet sich in unmittelbarer Nähe. Perfekte Verkehrsanbindung an die Autobahn A3. S-Bahn Anschluss 700 m entfernt. Kurze Wege für den täglichen Bedarf. Schulen, Sportvereine, Ärzte im nahen Umfeld.Innere WerteManche Details, die den Klausener Winkel 10 zu einem besonderen Bauprojekt machen, erkennt man erst auf den zweiten Blick. Zum Beispiel die hochwertige Innenausstattung - von lichtdurchfluteten Fensterelementen bis zu geschmackvollen Sanitärobjekten. Änderungswünsche sind vor Baubeginn jederzeit möglich. Energie & UmweltWarum unnötig Geld fürs Heizen ausgeben? Im Klausener Winkel 10 werden Sie ganz automatisch zum Energiesparfuchs - der moderne Neubau-Standard hilft Ihnen dabei. Profitieren Sie von der durchdachten Heiztechnik und einzelraumgesteuerter Fußbodenheizung. Genießen Sie es! Leben Sie auf!Änderungswünsche sind im Grundriss noch möglich!Ähnliche Angebote
So funktioniert es
- Alle neuen Anzeigen matchen wir kostenlos mit Deinen Suchparametern.
- Passende Angebote senden wir Dir in einer E-Mail pro Tag.
- Du kannst auch verschiedene Suchen anlegen und Dich jederzeit abmelden. Mehr dazu




