Objektdaten
Objektbeschreibung
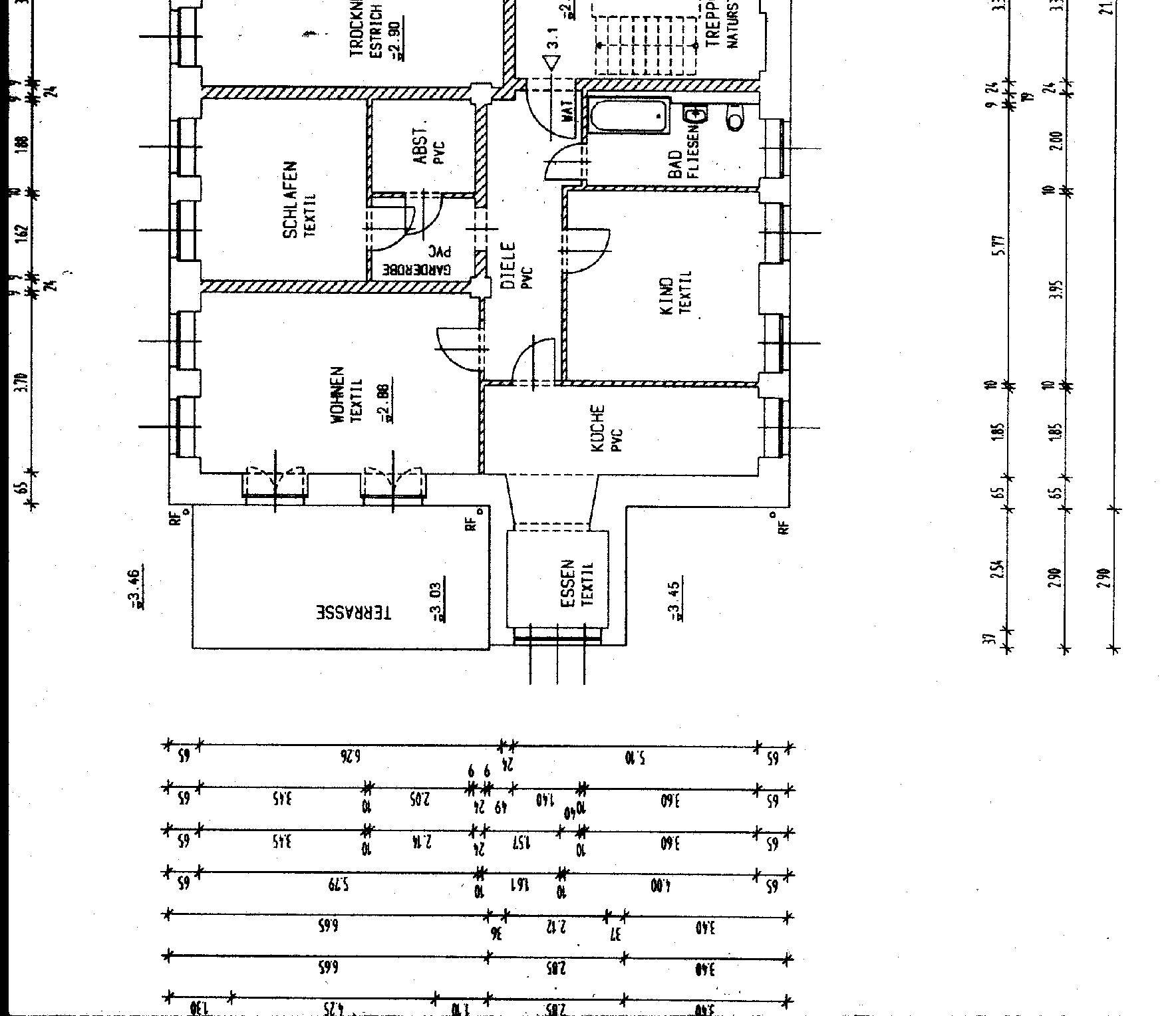
Objektbeschreibung Das als Flächendenkmal ausgewiesene Gebäudeensemble, bestehend aus kleiner Villa, Fabrikantenvilla und Fabrikgebäude, macht nach der Sanierung als "Wohnresidenz Rabenstein" durch seine entsprechende Architektur und dem großzügigen Grundstück mit altem Baumbestand, seinem Namen alle Ehre. Raumaufteilung Die Erdgeschosswohnung verfügt über drei Zimmer, ein Wannenbad mit Fenster, eine großzügige Küche sowie einen Abstellraum und eine ca. 18m² große Terrasse. Im Keller befinden sich Kellerräume für jede Wohneinheit sowie Wasch- und Trockenräume.Ähnliche Angebote
So funktioniert es
- Alle neuen Anzeigen matchen wir kostenlos mit Deinen Suchparametern.
- Passende Angebote senden wir Dir in einer E-Mail pro Tag.
- Du kannst auch verschiedene Suchen anlegen und Dich jederzeit abmelden. Mehr dazu





