Kaufpreis 471.093 €
Zimmer 4
Größe 136 m²
52393 Hürtgenwald
Objektdaten
Veröffentlicht am: 4. April 2026
Energieausweis: Liegt bei der Besichtigung vor
Danke! Bitte bestätige Deine E-Mail-Adresse – wir haben Dir soeben eine Mail geschickt.
Es gab ein Problem beim Absenden. Bitte versuche es erneut.
Bitte bestätige Deine E-Mail-Adresse, um Updates zu erhalten.
Objektbeschreibung
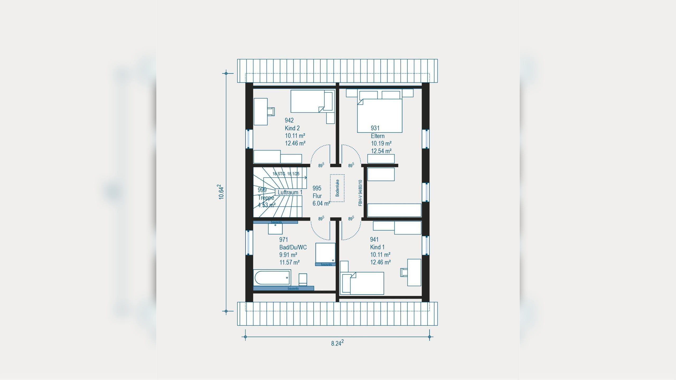
Willkommen zu Ihrem projektierten Einfamilienhaus in Hürtgenwald, das ganz nach Ihren Wünschen und Vorstellungen gestaltet wird. Mit 4.0 Zimmern auf einer Wohnfläche von 136,78 m² bietet dieses Haus genügend Platz für die ganze Familie. Das großzügige 682 m² große Grundstück in einem ruhigen Wohngebiet lädt zum Entspannen und Verweilen ein. Die zwei Etagen beherbergen drei gemütliche Schlafzimmer, ein modernes Badezimmer sowie ein zusätzliches Gäste-WC - perfekt abgestimmt auf Ihren Lebensstil und Komfort.Das Baukonzept setzt auf energieeffiziente KFW55-Standards und sorgt so für nachhaltiges Wohnen mit niedrigem Energieverbrauch. Die moderne Architektur ermöglicht eine flexible Gestaltung der Innenräume, sodass Sie Ihr Zuhause individuell an Ihre Bedürfnisse anpassen können. Profitieren Sie von der bewährten Holzrahmenbauweise, die für eine hohe Material- und Fertigungsqualität steht und gleichzeitig umweltfreundlich ist.
So funktioniert es
- Alle neuen Anzeigen matchen wir kostenlos mit Deinen Suchparametern.
- Passende Angebote senden wir Dir in einer E-Mail pro Tag.
- Du kannst auch verschiedene Suchen anlegen und Dich jederzeit abmelden. Mehr dazu
Wir haben soeben eine E-Mail mit Deinem Suchauftrag an Dich geschickt. – Klicke in dieser Mail auf den Bestätigungslink und schon geht's los. Prüfe ggf. auch Deinen Spamordner.
Es gab ein Problem beim Absenden Deiner E-Mail-Adresse. Bitte versuche es erneut.
WARNUNG: Bitte bestätige Deine E-Mail-Adresse, um regelmäßige Updates zu erhalten.