Warmmiete 920 €
Zimmer 2
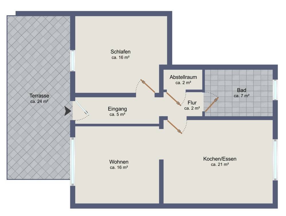
Größe 77 m²
26169 Friesoythe
Objektdaten
Veröffentlicht am: 5. April 2026
Kaltmiete 765 €
Baujahr: 1980
Energieausweis: Liegt bei der Besichtigung vor
Danke! Bitte bestätige Deine E-Mail-Adresse – wir haben Dir soeben eine Mail geschickt.
Es gab ein Problem beim Absenden. Bitte versuche es erneut.
Bitte bestätige Deine E-Mail-Adresse, um Updates zu erhalten.
Objektbeschreibung
Hier erwartet Sie Ihr neues Zuhause zum Wohlfühlen. Das Objekt wird aktuell vollständig saniert und präsentiert sich nach Fertigstellung mit einer modernen Ausstattung. Der zeitgemäße Wohnkomfort lässt keine Wünsche offen.Der offene Wohn- und Essbereich mit moderner Einbauküche schafft eine einladende Atmosphäre und bildet das Herzstück dieser Neubauwohnung. Von hier aus gelangen Sie direkt auf die überdachte Terrasse, die den Wohnraum harmonisch nach draußen erweitert und zu entspannten Stunden im Freien einlädt - ein perfekter Rückzugsort an sonnigen Tagen.Ein Schlafzimmer bietet Raum für Ruhe und Rückzug. Das moderne barrierefreie Duschbad überzeugt mit zeitgemäßer Ausstattung. Ein praktischer Abstellraum sorgt für zusätzlichen Stauraum und Ordnung im Alltag.Eine Fußbodenheizung in allen Räumen, betrieben über eine effiziente Wärmepumpe, sorgt ganzjährig für ein angenehmes Wohnklima. Die Wohnung ist barrierefrei und rollstuhlgerecht gestaltet. Eine Wallbox für Elektrofahrzeuge unterstreicht den zukunftsorientierten Charakter der Immobilie.Eine Haustierhaltung ist nicht gewünscht.Die Nebenkostenvorauszahlung setzt sich wie folgt zusammen: ? Betriebskostenvorauszahlung: 105,00 € (In diesem Betrag sind die Wasser- und Abwasserkosten für einen 2-Personenhaushalt berücksichtigt. Diese werden je nach Haushaltsgröße angepasst.)? Heizkostenvorauszahlung: 50,00 €? Stromkosten rechnen Sie direkt mit dem Versorger Ihrer Wahl ab? Mietbeginn: voraussichtlich Juni 2026? Für die Einbauküche ist ein monatlicher Zuschlag von 50,00 € zu zahlen.
So funktioniert es
- Alle neuen Anzeigen matchen wir kostenlos mit Deinen Suchparametern.
- Passende Angebote senden wir Dir in einer E-Mail pro Tag.
- Du kannst auch verschiedene Suchen anlegen und Dich jederzeit abmelden. Mehr dazu
Wir haben soeben eine E-Mail mit Deinem Suchauftrag an Dich geschickt. – Klicke in dieser Mail auf den Bestätigungslink und schon geht's los. Prüfe ggf. auch Deinen Spamordner.
Es gab ein Problem beim Absenden Deiner E-Mail-Adresse. Bitte versuche es erneut.
WARNUNG: Bitte bestätige Deine E-Mail-Adresse, um regelmäßige Updates zu erhalten.