Objektdaten
Objektbeschreibung
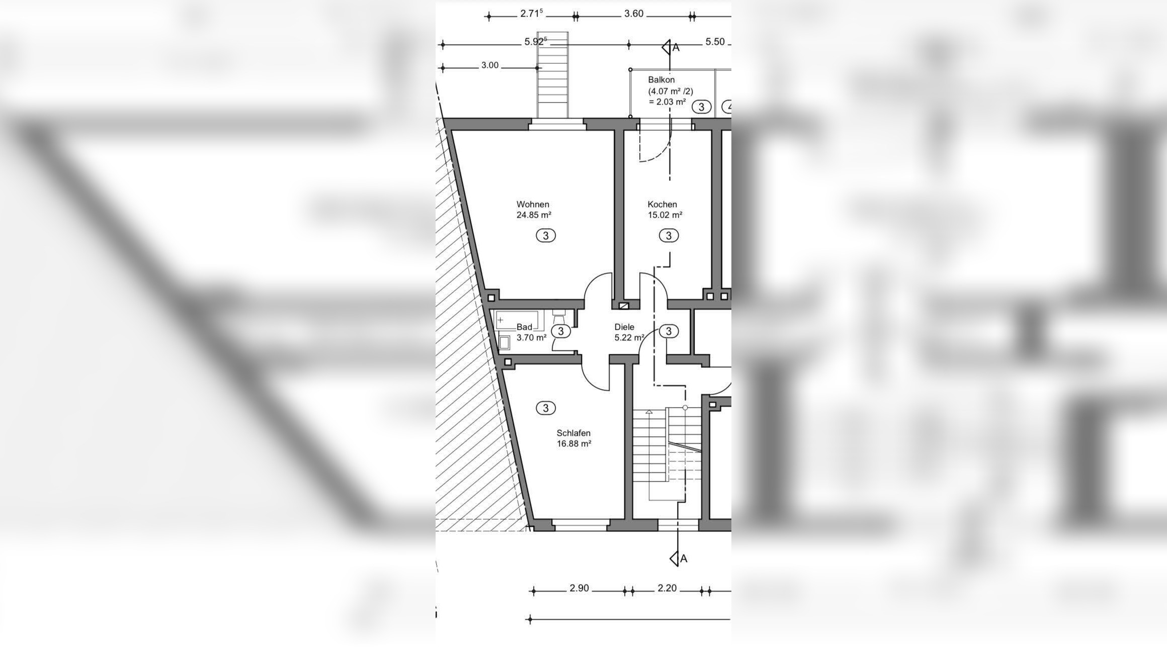
Erstbezug nach Kernsanierung gibt ein Gefühl vom Wohnen im Neubau.Ein besonders schönes Raumgefühl ergibt sich durch die Hohen Decken.Die neue Eingangstür lässt schon die Wohnung angenehm begrüßen.Im Flur gibt es eine schöne Nische für eine Garderobe.Vom Flur gehen alle Zimmer ab.Die Wohnung hat eine sehr große Küche, hier findet sogar ein Esstisch genügend Platz.Auch das Wohnzimmer hat eine schöne Größe. Hier befindet sich ein Bodentiefes-Fenster, aktuell als Französischer Balkon, zukünftig sind hier Balkone geplant.Das Badezimmer wurde frische gefliest mit einer sehr großen Dusche und modernen Badezimmermöbel.Das Schlafzimmer ist ebenfalls großzügig, hier würde sich neben Schlafen auch ausreichend Platz für Kleiderschrank finden.Das Haus hat einen liebevoll gepflegten Gemeinschaftsgarten, der genutzt werden kann.Ähnliche Angebote
So funktioniert es
- Alle neuen Anzeigen matchen wir kostenlos mit Deinen Suchparametern.
- Passende Angebote senden wir Dir in einer E-Mail pro Tag.
- Du kannst auch verschiedene Suchen anlegen und Dich jederzeit abmelden. Mehr dazu





