Objektdaten
Objektbeschreibung
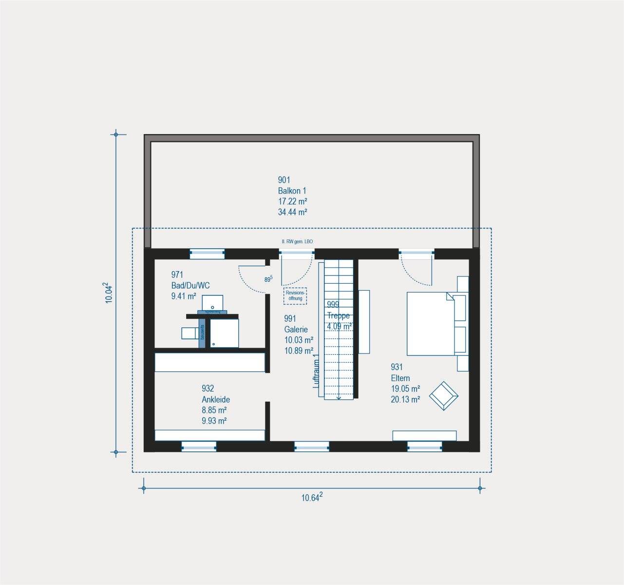
Dieses projektiertes Einfamilienhaus mit 5,0 Zimmern und einer großzügigen Wohnfläche von 262 m² bietet Ihnen Raum zum Leben und Wohlfühlen in zwei Etagen. Mit vier Schlafzimmern, einem Badezimmer und einem zusätzlichen Gäste-WC lässt sich das Haus ganz nach Ihren individuellen Wünschen und Vorstellungen gestalten. Der Entwurf berücksichtigt moderne Architektur und eine flexible Grundrissgestaltung, damit Sie Ihr neues Zuhause genau auf Ihre Bedürfnisse zuschneiden können. Das Projekt setzt auf gehobene Ausstattung und energieeffiziente Bauweise mit dem KfW55 Standard, der Ihnen besonders günstige Energiekosten und nachhaltiges Wohnen garantiert. Dieses Haus ist ideal für Familien, die Wert auf Qualität, Komfort und Umweltfreundlichkeit legen.Ähnliche Angebote
So funktioniert es
- Alle neuen Anzeigen matchen wir kostenlos mit Deinen Suchparametern.
- Passende Angebote senden wir Dir in einer E-Mail pro Tag.
- Du kannst auch verschiedene Suchen anlegen und Dich jederzeit abmelden. Mehr dazu


