Objektdaten
Objektbeschreibung
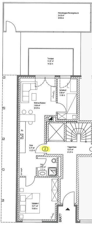
In strandnaher Lage von Kampen befindet sich diese wunderschöne, moderne Zwei-Zimmer-Wohnung in einem gepflegten Mehrfamilienhaus. Die Gesamt-Grundstücksgröße der WEG-Eigentümergemeinschaft beträgt ca. 4.143 m². Direkt vom Bett aus haben Sie einen Blick nach List auf beide Seiten des Meeres. Die Dachgeschoss-Wohnung erstreckt sich auf einer Ebene mit ca. 62 m² Gesamtfläche: Die Einheit ist aufgeteilt in einen hellen Flur, ein hellgefliestes Duschbad, einen lichtdurchfluteten Wohn- und Essbereich, eine hochwertige Einbauküche sowie ein großzügiges Schlafzimmer.Ähnliche Angebote
So funktioniert es
- Alle neuen Anzeigen matchen wir kostenlos mit Deinen Suchparametern.
- Passende Angebote senden wir Dir in einer E-Mail pro Tag.
- Du kannst auch verschiedene Suchen anlegen und Dich jederzeit abmelden. Mehr dazu




