Kaufpreis 542.000 €
Zimmer 3
Größe 134 m²
72189 Vöhringen
Objektdaten
Veröffentlicht am: 24. März 2025
Baujahr: 2024
Energieausweis: Liegt bei der Besichtigung vor
Danke! Bitte bestätige Deine E-Mail-Adresse – wir haben Dir soeben eine Mail geschickt.
Es gab ein Problem beim Absenden. Bitte versuche es erneut.
Bitte bestätige Deine E-Mail-Adresse, um Updates zu erhalten.
Objektbeschreibung
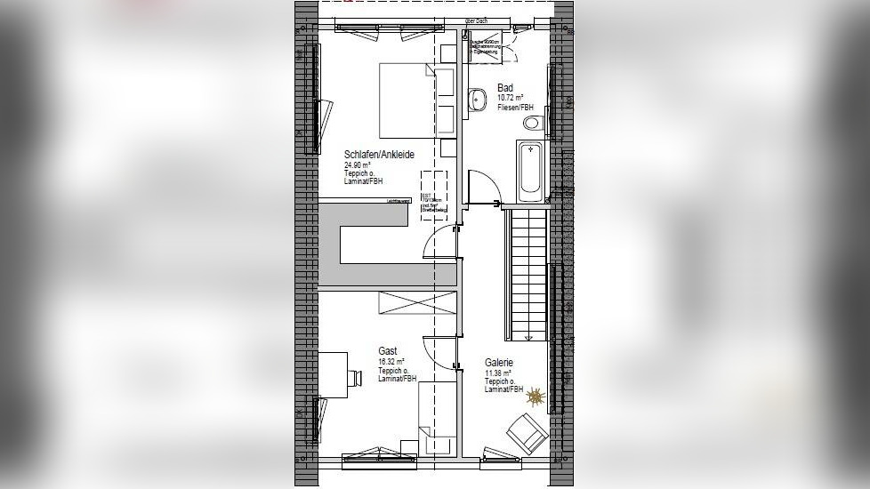
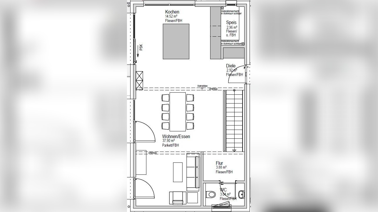
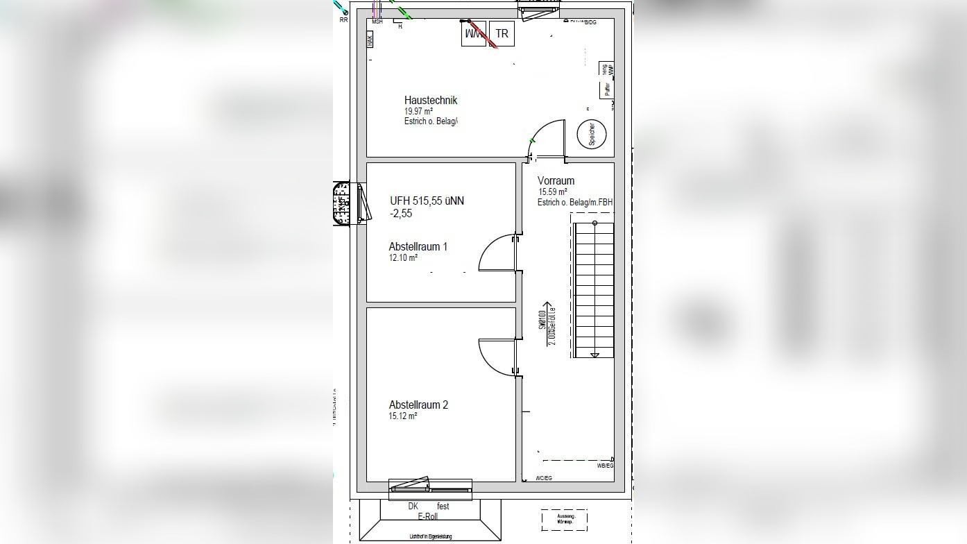
Herzlich willkommen in Ihrem technikfertigen Neubau in massiver Fertigbauweise!Die ortsansässige Firma Massivbau Hauser erstellt in einem wohnlichen Umfeld moderne Einfamilienhäuser mit jeweils einem dazugehörigen Carport aus Beton mit Betonstützen und einem Stellplatz. Eines davon können Sie vielleicht bald Ihr Eigen nennen.Das angebotene Haus zeichnet sich durch seine moderne Architektur, klare Linien und eine zukunftsorientierte Bauweise in KFW 40 Standard aus.Als Eigenleistungen zu erbringen wären noch:Wand- und Bodenbeläge, Fliesen an Wänden und Böden , Innentüren, Sanitärgegenstände, Treppe. Sämtliche aufgeführte Eigenleistungen sind inkl. aller Vor- und Nebenarbeiten zu erbringen. Das Objekt wird ohne Gartenanlage übergeben. Der Stellplatz, die Zufahrt sowie der Zugang befinden sich in Rohplanie (geschottert). Diese Eigenleistungen sind noch durch den Käufer zu erbringen.Auf knapp 134 m² Wohnfläche verteilt auf zwei Stockwerke lässt es sich gut wohnen.Im Erdgeschoss erwartet Sie neben einer offenen Küche der ca. 38 m² große Wohn-Essbereich mit Zugang in den Außenbereich. Außerdem befindet sich hier das Gäste WC und eine Speisekammer.Im Dachgeschoss gelangen Sie über einen Flur mit Galerie in das Elternschlafzimmer mit geräumiger Ankleide, ein weiteres Schlafzimmer und ein Bad mit Wanne und Dusche.Das Untergeschoss mit einer Nutzfläche von ca. 63 m² bietet Platz für Hobby und genügend Abstellfläche.Hier befindet sich die moderne Haustechnik, bestehend aus der Luft-Wasser-Wärmepumpe, des Pufferspeichers und der Technik für die Photovoltaikanlage. Im Technikraum befindet sich auch der Anschluss für die Waschmaschine.Die moderne Architektur lassen das Haus auch von außen zu einem Hingucker werden.Lassen Sie sich gerne bei einem individuellen Beratungsgespräch überzeugen. Wir freuen uns auf Ihre Kontaktaufnahme.
So funktioniert es
- Alle neuen Anzeigen matchen wir kostenlos mit Deinen Suchparametern.
- Passende Angebote senden wir Dir in einer E-Mail pro Tag.
- Du kannst auch verschiedene Suchen anlegen und Dich jederzeit abmelden. Mehr dazu
Wir haben soeben eine E-Mail mit Deinem Suchauftrag an Dich geschickt. – Klicke in dieser Mail auf den Bestätigungslink und schon geht's los. Prüfe ggf. auch Deinen Spamordner.
Es gab ein Problem beim Absenden Deiner E-Mail-Adresse. Bitte versuche es erneut.
WARNUNG: Bitte bestätige Deine E-Mail-Adresse, um regelmäßige Updates zu erhalten.