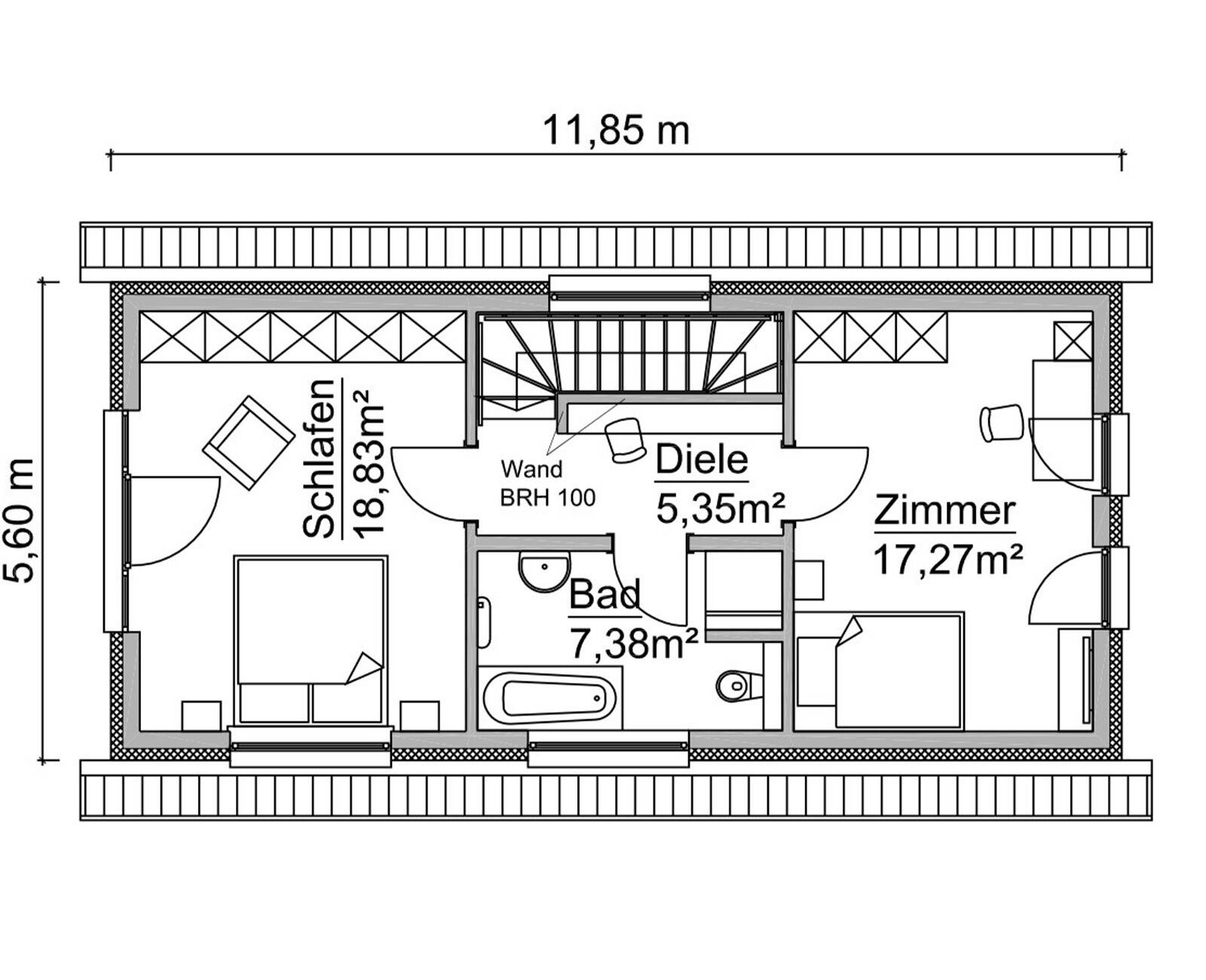
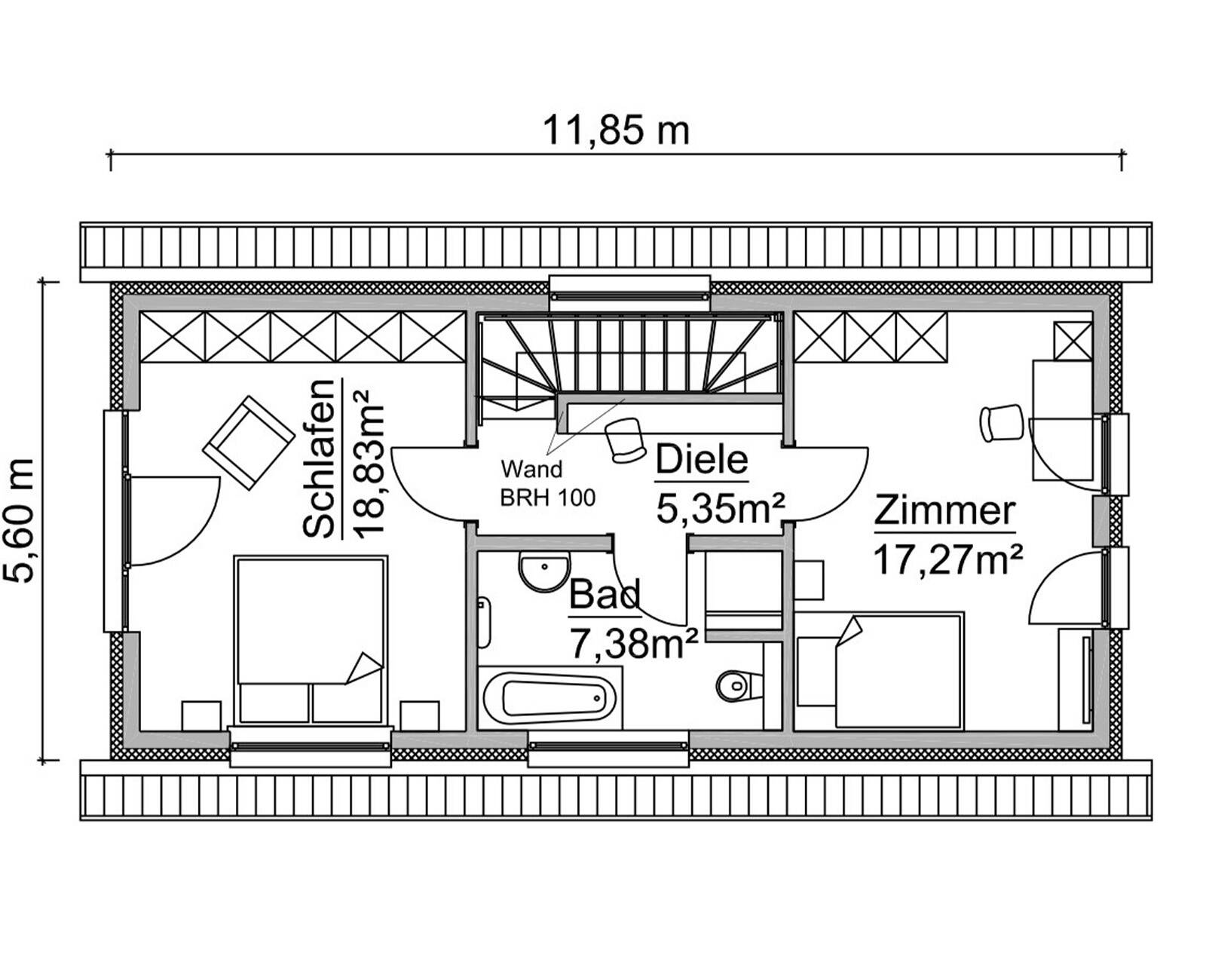
Objektdaten
Objektbeschreibung
ScanHaus Marlow ist einer der führenden Anbieter von modernen, umweltfreundlichen und nachhaltigen Fertighäusern. Wir bieten Ihnen mehr als 100 attraktive Fertighaustypen in modernster Bauweise, energieeffizient - in zertifizierter Qualität (Made in Germany).Entscheiden Sie selbst, ob Ihr Haus als Ausbauhaus, schlüsselfertig oder bezugsfertig übergeben werden soll.In einem unser über 50 Musterhäuser und Vertriebsbüros deutschlandweit, beraten wir Sie gerne zu allen Themen rund um den Hausbau und begleiten Sie bis zur Schlüsselübergabe zu Ihrem Traumhaus!Lassen Sie sich von gebauten Beispielhäusern inspirieren und erkunden Sie unsere Website.Einmalig - bei uns zahlen Sie erst, wenn Ihr ScanHaus steht und die Schlüsselübergabe an Sie erfolgt ist.Unsere Häuser werden schon werksseitig nach KfW 40 gefertigt und erfüllen alleVoraussetzungen für ein energieeffizientes Bauen.Ob Bungalow, 1 1/2 Geschoss Einfamilienhaus, Stadtvilla oder Mehrfamilienhaus, wir bieten Ihnen durch unsere Flexibilität eine große Bandbreite an individuell planbaren Häusern an.Ähnliche Angebote
So funktioniert es
- Alle neuen Anzeigen matchen wir kostenlos mit Deinen Suchparametern.
- Passende Angebote senden wir Dir in einer E-Mail pro Tag.
- Du kannst auch verschiedene Suchen anlegen und Dich jederzeit abmelden. Mehr dazu




