Kaufpreis 389.000 €
Zimmer 3
Größe 92 m²
94256 Drachselsried
Objektdaten
Veröffentlicht am: 25. März 2025
Energieausweis: Liegt bei der Besichtigung vor
Danke! Bitte bestätige Deine E-Mail-Adresse – wir haben Dir soeben eine Mail geschickt.
Es gab ein Problem beim Absenden. Bitte versuche es erneut.
Bitte bestätige Deine E-Mail-Adresse, um Updates zu erhalten.
Objektbeschreibung
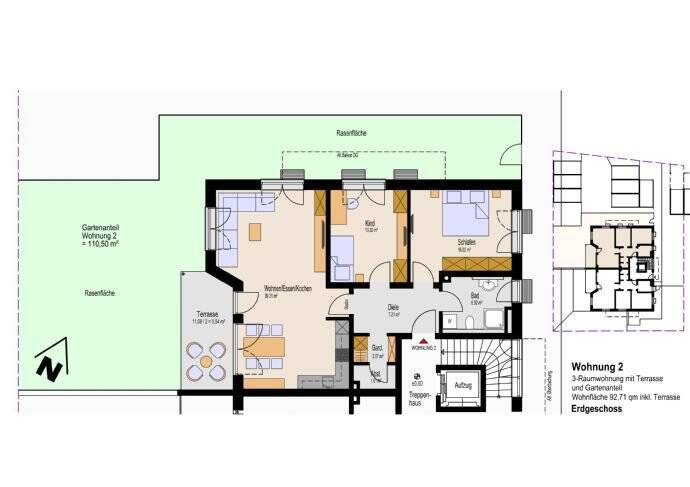
Hier im schönen staatlich anerkannten Erholungsort Drachselsried im Bayerischen Wald entsteht in einer zentrums- und naturnahen Wohnlage ein modernes, klimafreundliches, in leichter Hanglage nach Südwesten hin ausgerichtetes 7-Parteien-Wohnhaus.Mit der Fertigstellung ist nach aktuellem Stand Mitte 2026 zu rechnen.Der Zugang zur Wohnanlage erfolgt von der Nordostseite her. Über einen geräumigen ansprechenden Eingangsbereich betreten wir die im Grundrissplan als Wohnung Nr. 2 bezeichnete, ca. 92,20 m² große 3-Zimmer-Eigentumswohnung mit einem nach Südwesten und Nordwesten ausgerichteten Garten. Von der mittig angeordneten, ca. 7 m² geräumigen Diele aus beginnen wir unseren Rundgang gegen den Uhrzeigersinn und gelangen in das ca. 7 m² große Badezimmer und weiter in das ebenso nach Nordosten ausgerichtete, ca. 16 m² große Elternschlafzimmer. Zurück in der Diele der Wohnung betreten wir sodann das ca. 13 m² gen Nordwesten angeordnete Kinder- oder Gästeschlafzimmer und weiter sodann den nach Südwesten ausgerichteten, tageslichtverwöhnten, ca. 38 m² großen Hauptwohnbereich mit Wohnen, Kochen und Essen. Von hier aus haben Sie einen direkten Zugang auf die ca. 11 m² große Terrasse und weiter in den ca. 110,50 m² großen, der Wohnung nach Südwesten und Nordwesten zugeordneten Garten. Eine ca. 2 m² große Garderobe und außerdem ein dahinter liegender Abstellraum sind weiter verfügbar. Die Bodenbeläge bestehen überwiegend aus Parkett; in Bad, Diele, Garderobe und Abstellraum sind Bodenfliesen verlegt. Zur Wohnung gehört ein Kellerabteil mit ca. 9 m², weiter eine Einzelgarage (Reihengarage). Als Wärmeerzeuger dient eine Luft-Wasser-Wärmepumpe, im Haus dient Fußbodenheizung, in den Bädern sind zusätzlich Handtuchheizkörper integriert. Die Wohn- und Schlafräume werden mit einem Wohnraumlüftungssystem mit einstellbaren Stufen und Wärmerückgewinnung gesteuert. Auf der südlichen Dachfläche ist eine PV-Anlage mit 8 KWP verbaut. Weitere Ausführungen sind dem ausführlichen Exposé des Bauträgers zu entnehmen, welches wir Ihnen auf Anfrage gerne zukommen lassen.
So funktioniert es
- Alle neuen Anzeigen matchen wir kostenlos mit Deinen Suchparametern.
- Passende Angebote senden wir Dir in einer E-Mail pro Tag.
- Du kannst auch verschiedene Suchen anlegen und Dich jederzeit abmelden. Mehr dazu
Wir haben soeben eine E-Mail mit Deinem Suchauftrag an Dich geschickt. – Klicke in dieser Mail auf den Bestätigungslink und schon geht's los. Prüfe ggf. auch Deinen Spamordner.
Es gab ein Problem beim Absenden Deiner E-Mail-Adresse. Bitte versuche es erneut.
WARNUNG: Bitte bestätige Deine E-Mail-Adresse, um regelmäßige Updates zu erhalten.