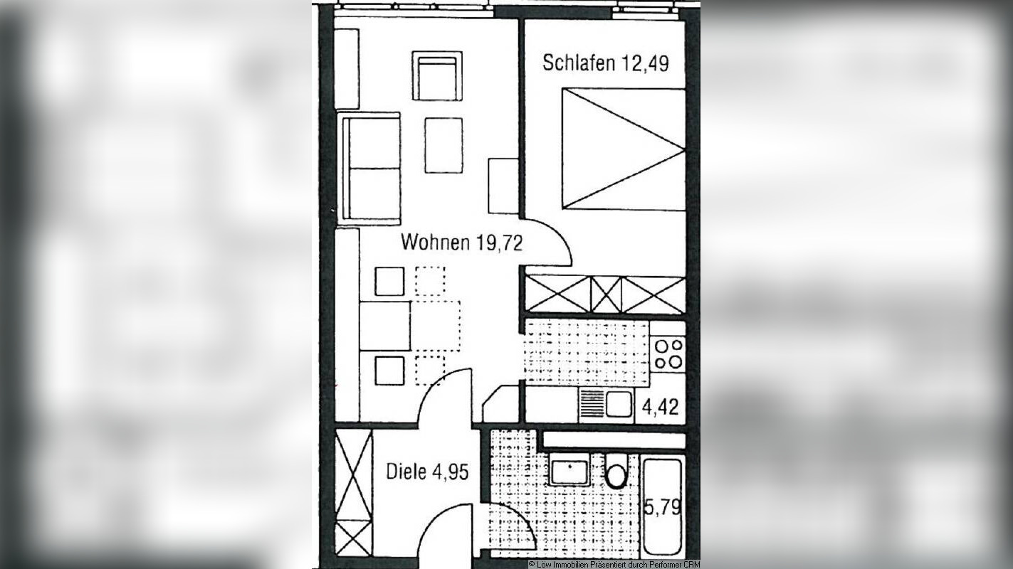
Objektdaten
Objektbeschreibung
Das gesamte Waldschlösschen-Areal entstand Mitte der 90-er Jahre und beherbergt neben Wohnungen und Büros außerdem ein Kino, Veranstaltungsräume, Geschäften und Gastronomie.Ähnliche Angebote
So funktioniert es
- Alle neuen Anzeigen matchen wir kostenlos mit Deinen Suchparametern.
- Passende Angebote senden wir Dir in einer E-Mail pro Tag.
- Du kannst auch verschiedene Suchen anlegen und Dich jederzeit abmelden. Mehr dazu




