Objektdaten
Objektbeschreibung
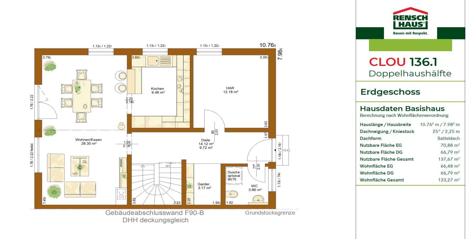
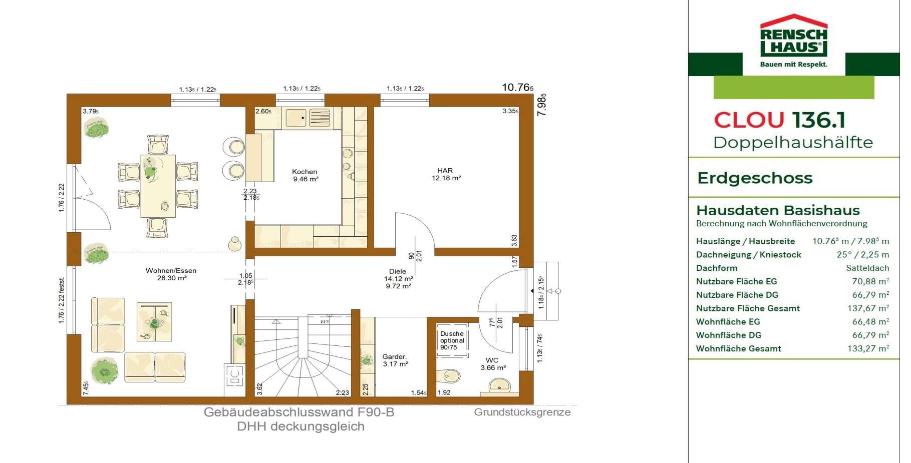
Modernes Wohnen mit optimaler GrundstücksnutzungSuchen Sie eine moderne Lösung für die optimale Nutzung von einem kompakten Grundstück? Die Doppelhaushälfte CLOU 136.1 wird Sie begeistern. Schon das Erdgeschoss lässt durch die offene Raumkonzeption ein attraktives und großzügiges Wohnerlebnis erahnen. Der hohe Kniestock ermöglicht im Dachgeschoss viele Möblierungsalternativen. Außerdem bietet das CLOU 136.1 eine beliebte T-Bad-Lösung, eine integrierte Ankleide sowie zwei großzügige Kinderzimmer.Das Haus wird nach Kundenwunsch geplant und individuell Kalkuliert.Der Grundstückspreis liegt bei ca. 190€/m²Ähnliche Angebote
So funktioniert es
- Alle neuen Anzeigen matchen wir kostenlos mit Deinen Suchparametern.
- Passende Angebote senden wir Dir in einer E-Mail pro Tag.
- Du kannst auch verschiedene Suchen anlegen und Dich jederzeit abmelden. Mehr dazu




