Kaufpreis 349.000 €
Zimmer 3
Größe 78 m²
94256 Drachselsried
Objektdaten
Veröffentlicht am: 26. März 2025
Energieausweis: Liegt bei der Besichtigung vor
Danke! Bitte bestätige Deine E-Mail-Adresse – wir haben Dir soeben eine Mail geschickt.
Es gab ein Problem beim Absenden. Bitte versuche es erneut.
Bitte bestätige Deine E-Mail-Adresse, um Updates zu erhalten.
Objektbeschreibung
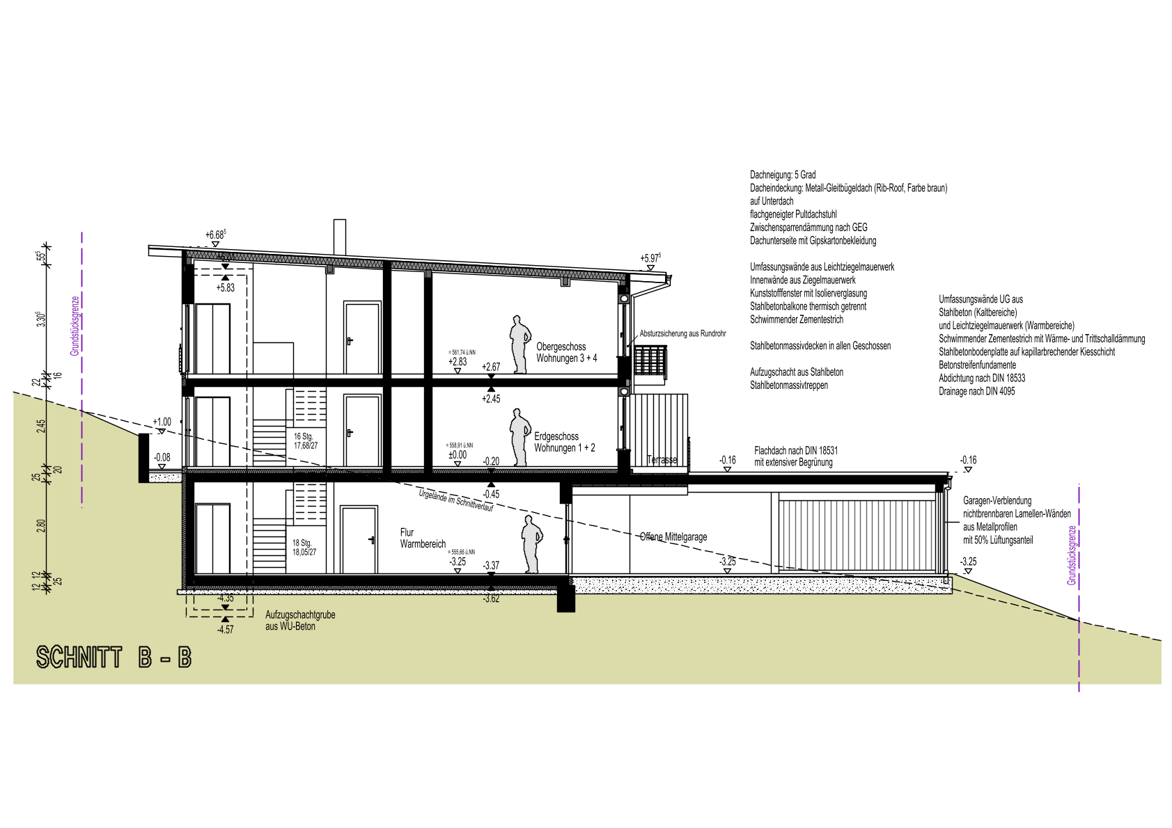
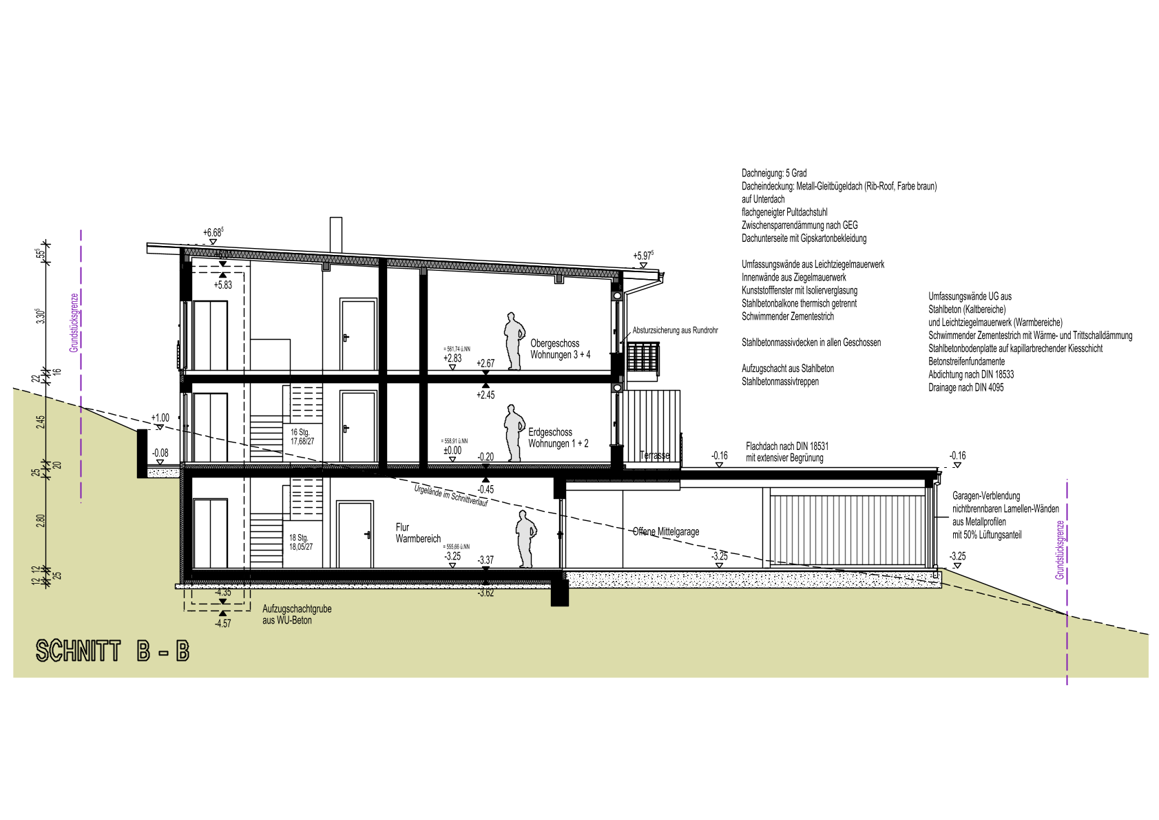
Hier im schönen staatlich anerkannten Erholungsort Drachselsried im Bayerischen Wald entsteht in einer zentrums- und naturnahen Wohnrandlage ein modernes, klimafreundliches, in leichter Hanglage nach Süden hin ausgerichtetes, aussichtsverwöhntes 4-Parteien-Wohnhaus. Mit der Fertigstellung ist nach aktuellem Stand Mitte 2026 zu rechnen. Über eine überbaute Pflasterfläche mit integrierten Stellplätzen betreten wir die Wohnanlage über das untere Geschoß.Wir nehmen den im geräumigen Treppenhaus angeordneten Personenaufzug (mit 3 Haltesstellen) und gelangen barrierefreie in die im Grundrissplan als Wohnung Nr. 2 bezeichnete, ca. 78,02 m² große 3-Zimmer-Wohnung mit Südterrasse im Erdgeschoß.Von der mittig angeordneten, ca.7,74 m² geräumigen Diele aus beginnen wir unseren Rundgang gegen den Uhrzeigersinn und gelangen in das ca. 5,14 m² große, nach Norden ausgerichtete Badezimmer und weiter in das ebenso dorthin ausgerichtete, ca. 12,11 m² geräumige Schlafzimmer.Zurück in der Diele der Wohnung betreten wir sodann das ca. 9,29 m² gen Westen angeordnete Kinderzimmer und weiter sodann den gen Süden bis Südwesten ausgerichteten, ca. 35,25 m² wunderschönen, licht- und aussichtsverwöhnten Hauptwohnbereich mit Wohnen, Kochen und Essen. Von hier aus haben Sie einen direkten Zugang auf die ca. 6,84 m² herrliche, teilweise überdachte Sonnenterrasse.Ein ca. 1,65 m² großer Abstellraum ist weiterhin verfügbar. Die Bodenbeläge bestehen überwiegend aus Parkett. In Bad, Diele und Abstellraum sind Bodenfliesen verlegt. Zur Wohnung gehört ein Kellerabteil mit ca. 6,33 m², bis zu zwei überdachte Stellplätze können optional je für 12.500,- Euro hinzuerworben werden. Als Wärmeerzeuger stehen eine oder bei Bedarf mehrere Luft-Wasser-Wärmepumpe(n) zur Verfügung, zusätzlich ist auf der südlichen Dachfläche eine PV-Anlage mit maximal 8 KWP verbaut. In der Wohnung dient Fußbodenheizung, im Badezimmer ist zusätzlich ein Handtuchheizkörper integriert. Die Wohn- und Schlafräume werden mit einem Wohnraumlüftungssystem mit einstellbaren Stufen und Wärmerückgewinnung gesteuert. Weitere Ausführungen sind dem ausführlichen Exposé des Bauträgers zu entnehmen, welches wir Ihnen auf Anfrage gerne zukommen lassen.
So funktioniert es
- Alle neuen Anzeigen matchen wir kostenlos mit Deinen Suchparametern.
- Passende Angebote senden wir Dir in einer E-Mail pro Tag.
- Du kannst auch verschiedene Suchen anlegen und Dich jederzeit abmelden. Mehr dazu
Wir haben soeben eine E-Mail mit Deinem Suchauftrag an Dich geschickt. – Klicke in dieser Mail auf den Bestätigungslink und schon geht's los. Prüfe ggf. auch Deinen Spamordner.
Es gab ein Problem beim Absenden Deiner E-Mail-Adresse. Bitte versuche es erneut.
WARNUNG: Bitte bestätige Deine E-Mail-Adresse, um regelmäßige Updates zu erhalten.