Neubau-Wohnung mit unverbautem Blick auf den Rhein

Kaufpreis 399.000 €
Zimmer 2
Größe 96 m²
56338 Braubach

Objektdaten

Veröffentlicht am: 27. März 2025
Frei ab: 30. Dezember 2024
Energieausweis: Liegt bei der Besichtigung vor
  • Objektbeschreibung

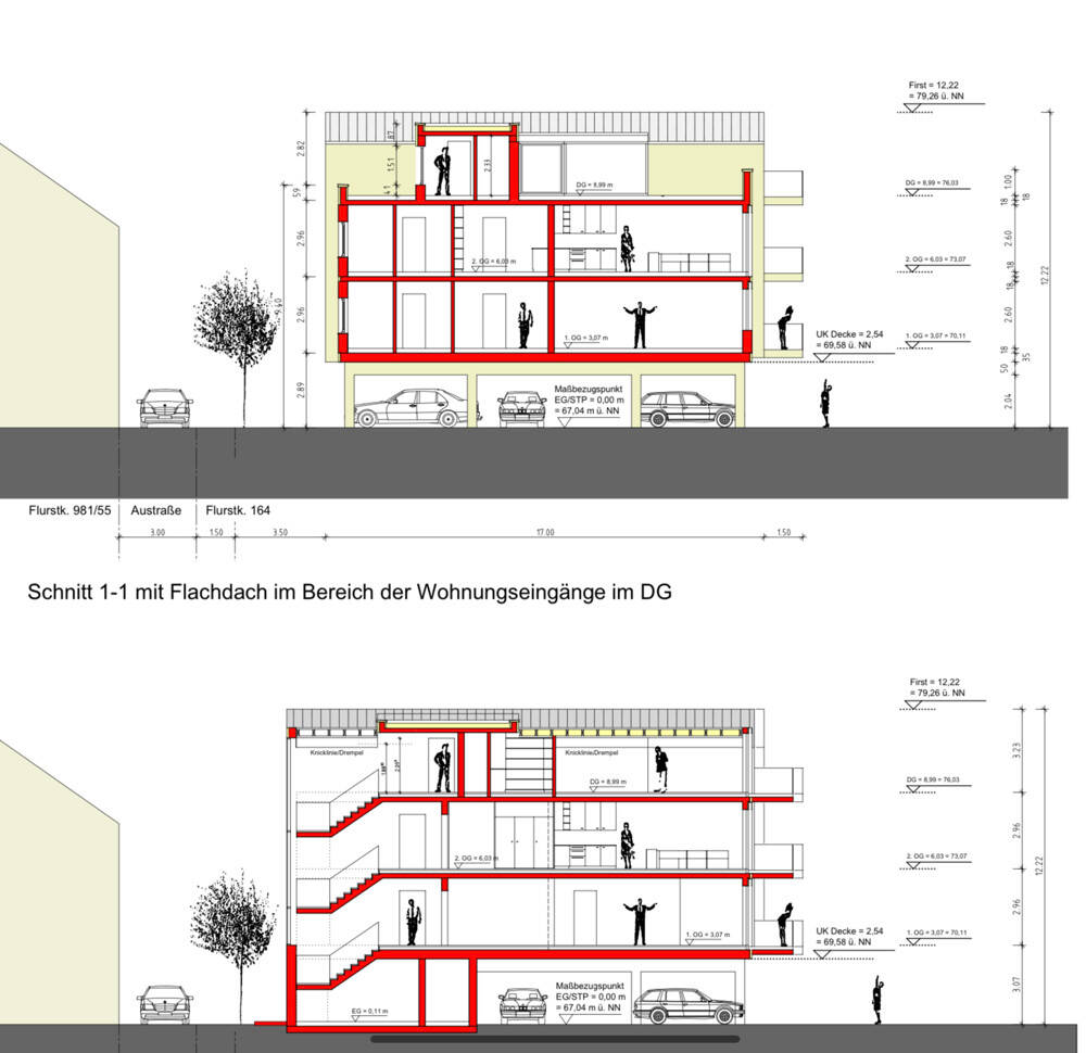
    Diese exklusive Neubauwohnung befindet sich im Dachgeschoss eines gehobenen 8-Parteienhaus in Braubach.Die optimale Grundrissgestaltung bietet auf ca. 96 m² ein Schlafzimmer, einen großzügigen Wohn- und Essbereich, ein modernes Badezimmer mit begehbarer Dusche, sowie ein Gäste-WC. * Baubeginn in Kürze* rollstuhlgerechte/barrierefreie Wohnung im DG* Fahrstuhl * gehobene Innenausstattung* Erstbezug nach Fertigstellung* Balkon* Dachterrasse* bodentiefe Fenster und große Schiebetüren* Abstellraum* Stellplatz* Wärmepumpe* KfW 55eEin überdachter Stellplatz sowie die überzeugende Dachterrasse mit Blick auf den Rhein und ins Grüne runden dieses attraktive Angebot ab.Fordern Sie auch Exposés und Grundrisse der weiteren, noch zur Verfügung stehenden Wohnungen an.(Ein Energieausweis lag zum Zeitpunkt der Anzeigenerstellung noch nicht vor)
    Nach oben scrollen