Objektdaten
Objektbeschreibung
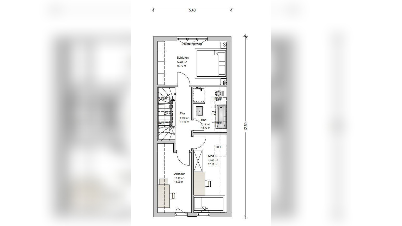
Gemeinsam mit Ihnen planen wir Ihren künftigen ÖKOHOLZHAUS-Neubau der Firma DEURA®HAUS auf einem attraktiven Grundstück mit einer Fläche von 400 m² in Nidderau. Eine Luft-Wasser-Wärmepumpe sorgt für die Temperierung Ihres neuen ökologischen Holzhauses. Das Grundstück und die Errichtung der Bodenplatte ist in der Planung enthalten.Im Erdgeschoss befindet sich die geräumige Diele sowie ein Gäste-Duschbad und der Hauswirtschaftsraum. Der zentrale Mittelpunkt bildet der große Wohn- und Essbereich inklusive der offenen Küche mit einer stattlichen Größe von 37 m². Das Elternschlafzimmer, zwei Kinderzimer sowie das neue Badezimmer mit Dusche und Badewanne finden sich in der oberen Etage Ihres neuen Eigenheims. Dieses ökologische Haus wird komplett in der Holzrahmenbauweise errichtet. Ihre Wände erhalten folgenden Schichtenaufbau (von außen nach innen): o 40 mm Holzweichfaserplatte als Putzträgerplatte (auf Wunsch gegen Aufpreis mit Fassadenvollverkleidung aus Holz (Lerche, vorergraut), statt Außenputz)o 180 mm Ständerwerk ausgedämmt mit wärmedämmender und schallschützender Klimadämmung aus Holzfaserno 15 mm Holzwerkstoffplatte als aussteifende und dampfsperrende Schichto 4 cm Installationsebene mit abschließender Gipskartonplatte, doppellagigIhre individuellen Bedürfnisse und Wünsche, wie zu Bodenbelägen, Photovoltaikanlage oder Carport lassen sich optional in der Planung berücksichtigen.So funktioniert es
- Alle neuen Anzeigen matchen wir kostenlos mit Deinen Suchparametern.
- Passende Angebote senden wir Dir in einer E-Mail pro Tag.
- Du kannst auch verschiedene Suchen anlegen und Dich jederzeit abmelden. Mehr dazu



