Objektdaten
Objektbeschreibung
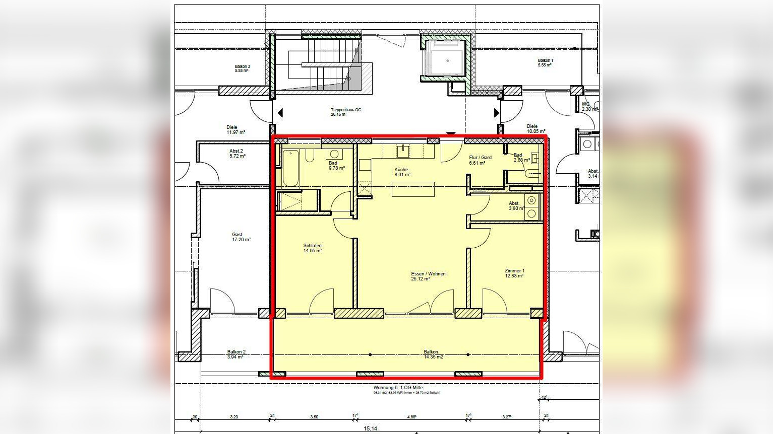
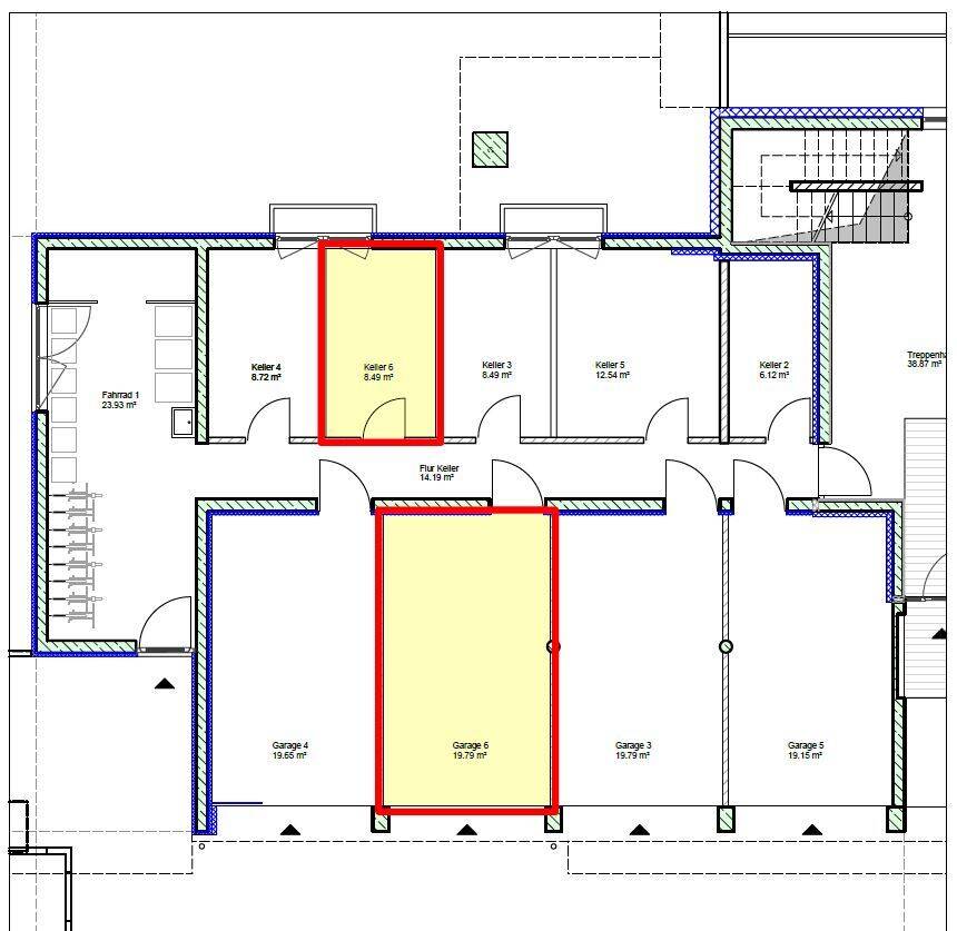
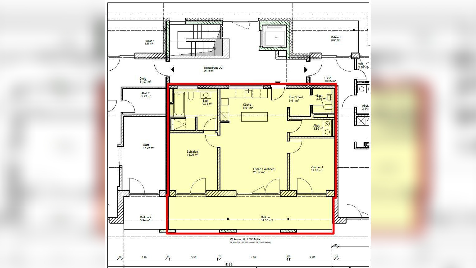
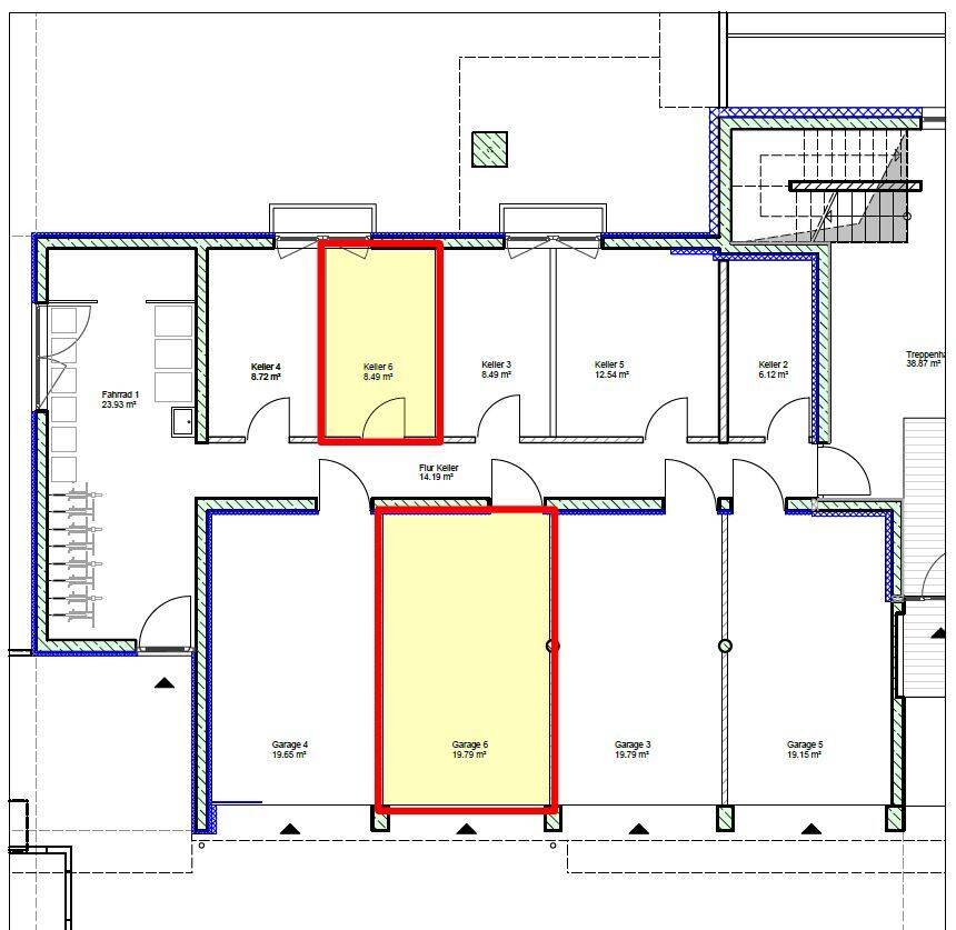
Finale Gelegenheit: Moderne Neubauwohnung (barrierefrei) sichern!Willkommen in diesem modernen Neubau-Mehrfamilienhaus, das Ihnen den besonderen Vorteil des Erstbezugs bietet.Die Wohnungen überzeugen mit einer hochwertigen Ausstattung: Fußbodenheizung, dreifach verglaste Fenster, elektrische Jalousien sowie ein komfortabler Personenaufzug gehören hier zum Standard.Zur Wohnung Nr. 06 zählen zudem eine eigene Garage (Nr. 06) sowie ein separater Kellerraum (Nr. 06).Dank barrierefreier Gestaltung und eines durchdachten Grundrisses eignen sich diese Wohnungen für jede Lebensphase - und bieten insbesondere Senioren ein komfortables, sicheres und zukunftsorientiertes Zuhause.Noch Fragen? +49 (0)7742 96 777So funktioniert es
- Alle neuen Anzeigen matchen wir kostenlos mit Deinen Suchparametern.
- Passende Angebote senden wir Dir in einer E-Mail pro Tag.
- Du kannst auch verschiedene Suchen anlegen und Dich jederzeit abmelden. Mehr dazu




