Objektdaten
Objektbeschreibung
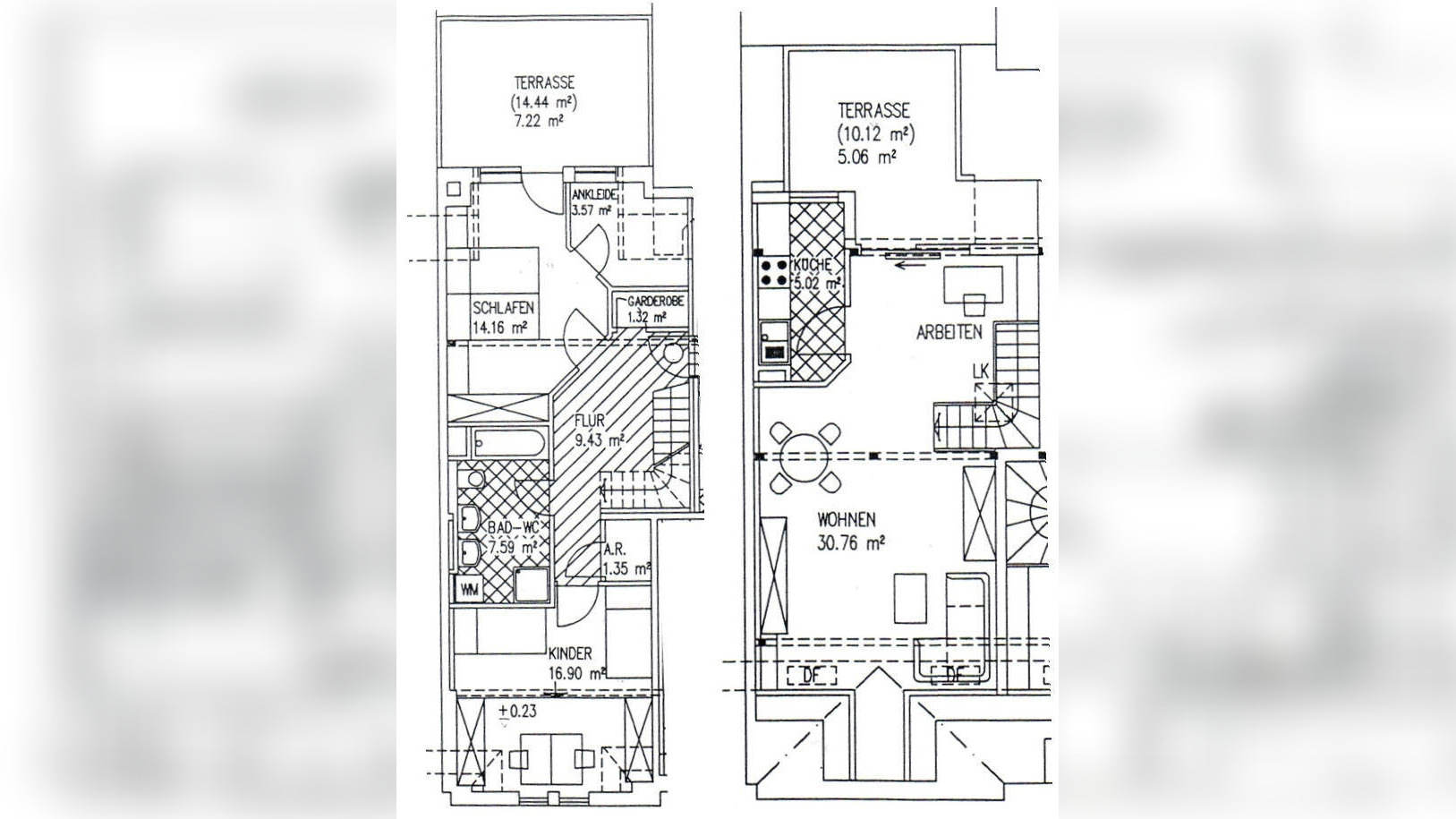
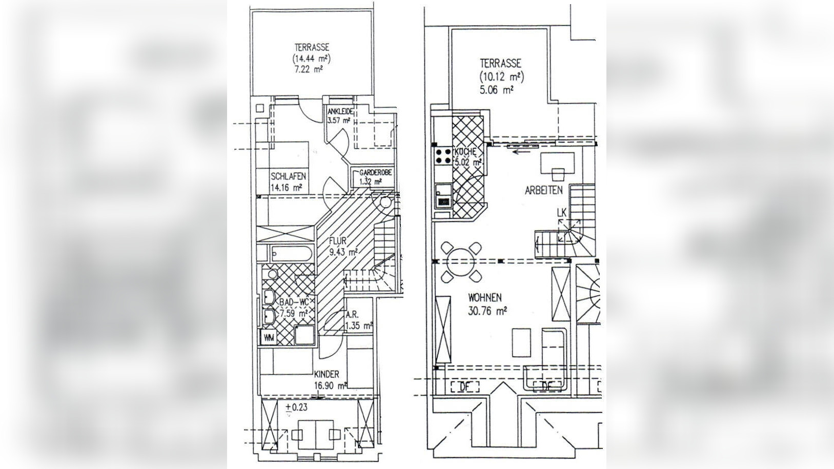
Der Fußbodenbelag wurde komplett neu verlegt und die gesamte Wohnung frisch gemalert. Die Fotos zeigen noch das alte Laminat.Kaution: 2 MM kaltÄhnliche Angebote
So funktioniert es
- Alle neuen Anzeigen matchen wir kostenlos mit Deinen Suchparametern.
- Passende Angebote senden wir Dir in einer E-Mail pro Tag.
- Du kannst auch verschiedene Suchen anlegen und Dich jederzeit abmelden. Mehr dazu





