Objektdaten
Objektbeschreibung
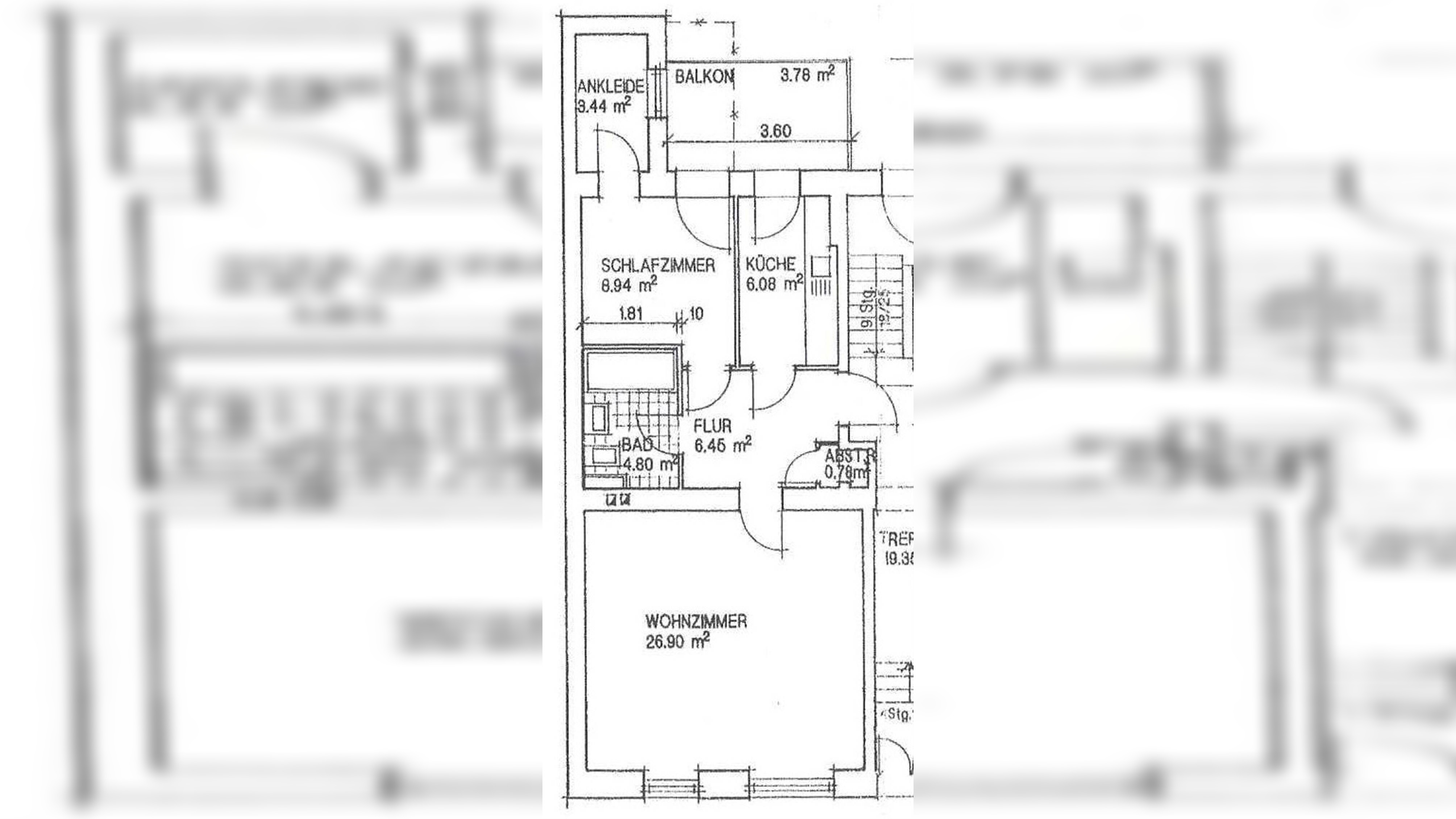
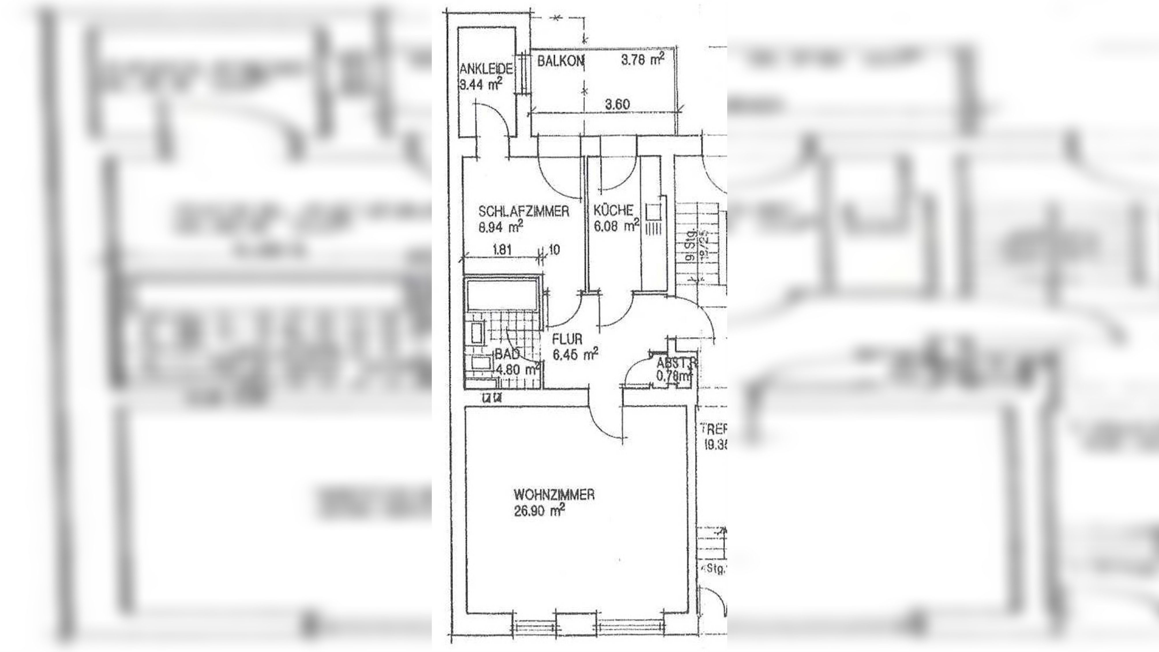
Diese Erdgeschosswohnung mit Balkon befindet sich in einem gepflegten Mehrfamilienhaus. Wohn- und Schlafzimmer sind separat begehbar. Ein Ankleidezimmer grenzt an das Schlafzimmer. Der Balkon ist nach Westen ausgerichtet. Im innen liegenden Bad befindet sich eine Wanne. Beheizt wird die Wohnung mit Fernwärme über eine Zentralheizung. Zur Wohnung gehören weiterhin eine Abstellkammer und ein Keller. Die Wohnung ist vermietet. Die Nettomiete beträgt p.a. 6.728,04 €. Für weitere Informationen senden Sie Ihnen gerne unser Exposé.Ähnliche Angebote
So funktioniert es
- Alle neuen Anzeigen matchen wir kostenlos mit Deinen Suchparametern.
- Passende Angebote senden wir Dir in einer E-Mail pro Tag.
- Du kannst auch verschiedene Suchen anlegen und Dich jederzeit abmelden. Mehr dazu




