Modernes Wohnen im Wondrebtal in Waldsassen.

Kaufpreis 335.000 €
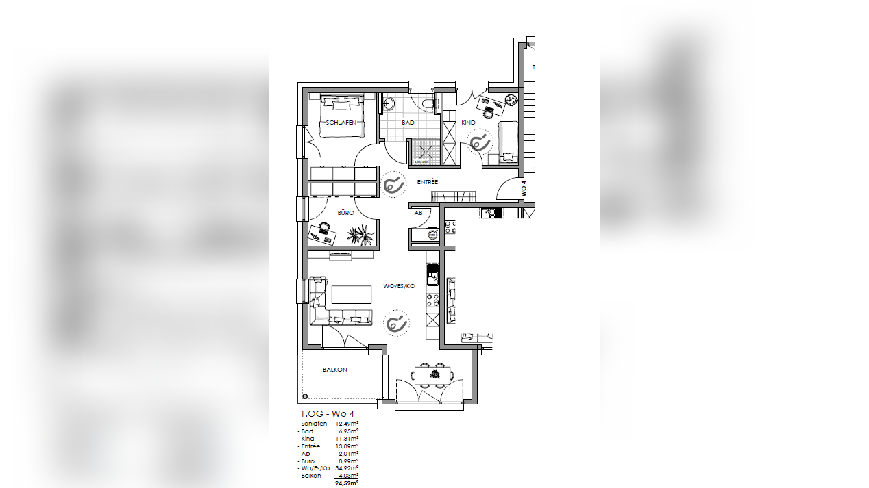
Zimmer 4
95652 Waldsassen
Größe 94 m2

Objektdaten

Veröffentlicht am: 27. März 2025
Baujahr: 2022
Energieausweis: Liegt bei der Besichtigung vor

Objektbeschreibung

Gönnen Sie sich etwas Besonderes. Modernes Wohnen im Wondrebtal in Waldsassen.In der schönen Klosterstadt Waldsassen entsteht ein weiteres vierstöckiges Bauwerk mit Blick ins Grüne. In Kombination mit einer zentralen Lage wird der Traum vom Wohnen auf höchstem Niveau wahr. Verschiedene Einkaufsmöglichkeiten, die historische Altstadt und die barocke Stiftsbasilika sind fußläufig erreichbar.Individuell - ein Mix aus exklusiv und komfortabel. Zentrumsnah, aber dennoch im Grünen.Aufgrund der Einzigartigkeit der 11 neuen Wohnungen wird das Gebäude den unterschiedlichen Ansprüchen von Interessenten gerecht. Die attraktiven Eigentumswohnungen sind sehr hochwertig ausgestattet. Erleben Sie den Unterschied zwischen Trends und prägenden Stil in einer Wohnanlage mit moderner Architektur und hohem Wohnkomfort.Wählen Sie Ihr neues Zuhause aus 2-, 3- oder 4-Zimmerwohnungen mit Wohnflächen von 55 m² bis 126 m² aus. Die Erdgeschosswohnungen verfügen über ebenerdige, leicht begehbare Terrassen, während die mittleren Geschosse mit schönen Sonnenbalkonen versehen sind. Die Penthouse Wohnungen beinhalten eine großzügige Dachterrasse. Selbstverständlich erfüllt ein Teil der Wohnungen die Barrierefreiheit, alle Geschosse sind zudem mit Aufzug erreichbar. Garagen sowie Stellplätze können zusätzlich erworben werden. Bitte stellen Sie uns vorab eine Kontaktanfrage über das Portal. Im Anschluss erhalten Sie unser ausführliches Web-Exposé inkl. der Adresse und den weiteren Objektunterlagen.Für Rückfragen stehen wir Ihnen gerne telefonisch unter der 0961 83 204 zur Verfügung.
zu den Kontaktinfosjetzt kostenlosen Suchagenten aktivieren
Nach oben scrollen