Kaufpreis 475.000 €
Zimmer 5
Größe 130 m²
72393 Burladingen
Objektdaten
Veröffentlicht am: 28. März 2025
Energieausweis: Liegt bei der Besichtigung vor
Danke! Bitte bestätige Deine E-Mail-Adresse – wir haben Dir soeben eine Mail geschickt.
Es gab ein Problem beim Absenden. Bitte versuche es erneut.
Bitte bestätige Deine E-Mail-Adresse, um Updates zu erhalten.
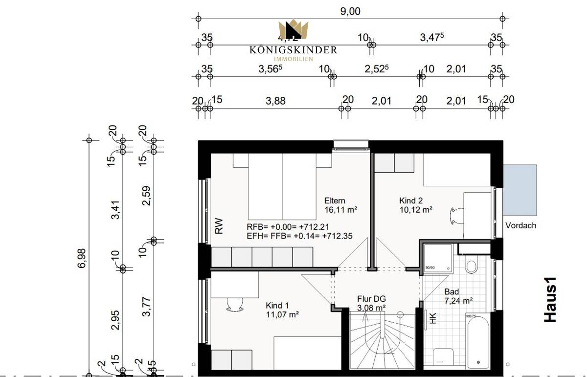
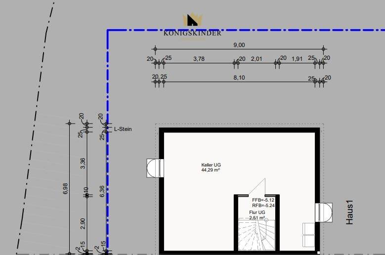
Objektbeschreibung
Willkommen in Ihrem zukünftigen Zuhause - einem exklusiven Reihenendhaus mit Ecklage auf einem großen Eckgrundstück. Dieses moderne Neubauprojekt bietet nicht nur eine durchdachte Raumaufteilung, sondern auch die Möglichkeit, kleine Anpassungen vorzunehmen, da der Baubeginn noch nicht erfolgt ist.Im Untergeschoss des Hauses befindet sich ein geräumiger Keller, der vielseitige Nutzungsmöglichkeiten bietet, sei es als Hobbyraum, Stauraum oder zusätzlicher Wohnraum.Das Gartengeschoss präsentiert sich mit einem offenen Wohn-Essbereich, der in Verbindung mit einer modern gestalteten Küche ein harmonisches Zentrum bildet. Ein Gäste-WC sorgt für Komfort und praktische Annehmlichkeiten im Alltag. Der Zugang zum eigenen Garten verleiht dem Wohnbereich zusätzlichen Charme und erweitert die Wohnfläche nach draußen.Im Obergeschoss erwarten Sie zwei gemütliche Kinderzimmer, ein großzügiges Schlafzimmer sowie ein Tageslichtbad. Die optimale Raumaufteilung schafft eine angenehme Wohnatmosphäre für die gesamte Familie.Ein besonderes Highlight des Hauses bildet das Dachgeschoss mit einem modernen Dachstudio. Diese Fläche von ca. 130 m² eröffnet Ihnen flexible Nutzungsmöglichkeiten - sei es als zusätzliches Schlafzimmer, Büro oder kreativer Raum nach Ihren individuellen Bedürfnissen.Der Neubaustatus ermöglicht es, kleine Änderungen an der Planung vorzunehmen und somit das Haus nach Ihren persönlichen Vorstellungen zu gestalten. Die Architektur des Reihenendhauses kombiniert zeitgemäßes Design mit praktischer Funktionalität.Mit einer Wohnfläche von ca. 130 m² bietet dieses Reihenendhaus ausreichend Platz für ein komfortables und modernes Familienleben. Freuen Sie sich auf ein Wohnkonzept, das höchsten Ansprüchen an Qualität, Stil und Wohnkomfort gerecht wird.
So funktioniert es
- Alle neuen Anzeigen matchen wir kostenlos mit Deinen Suchparametern.
- Passende Angebote senden wir Dir in einer E-Mail pro Tag.
- Du kannst auch verschiedene Suchen anlegen und Dich jederzeit abmelden. Mehr dazu
Wir haben soeben eine E-Mail mit Deinem Suchauftrag an Dich geschickt. – Klicke in dieser Mail auf den Bestätigungslink und schon geht's los. Prüfe ggf. auch Deinen Spamordner.
Es gab ein Problem beim Absenden Deiner E-Mail-Adresse. Bitte versuche es erneut.
WARNUNG: Bitte bestätige Deine E-Mail-Adresse, um regelmäßige Updates zu erhalten.