Objektdaten
Objektbeschreibung
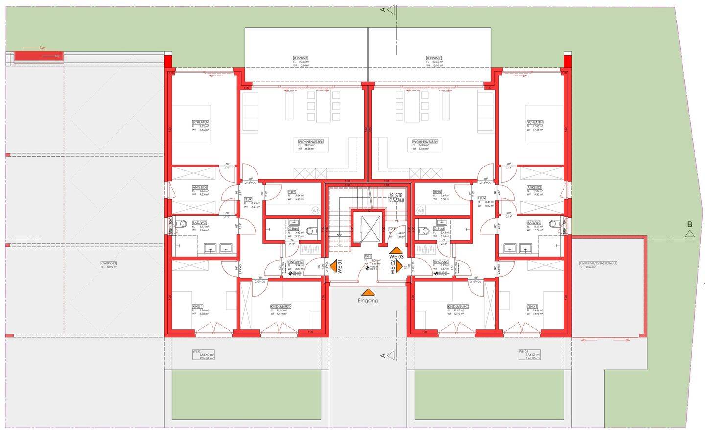
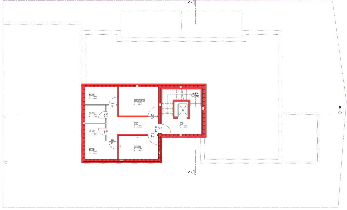
Im beliebten Musikerviertel am Westerberg in Osnabrück entsteht ein exklusives Neubauprojekt, das durch seine hochwertige Bauweise und modernen Wohnkomfort überzeugt. Das Gebäude umfasst drei Wohneinheiten auf zwei Etagen und wird nach dem KfW-40-Standard errichtet.Im Erdgeschoss befinden sich zwei großzügige Wohnungen mit einer Wohnfläche von jeweils etwa 125 m², die mit fünf Zimmern viel Raum für individuelle Gestaltung bieten. Beide Wohnungen sind ideal für Familien oder Paare und verfügen über eine große Terrasse mit direktem Zugang zu einem eigenen Gartenbereich, der Ruhe und Privatsphäre im Grünen verspricht.Im Staffelgeschoss entsteht ein lichtdurchflutetes Penthouse mit ca. 186 m² Wohnfläche.Alle Wohnungen sind mit einem Stellplatz im Carport auf der Nordseite des Gebäudes ausgestattet, der komfortables Parken direkt am Haus ermöglicht.Das Gebäude ist teilunterkellert und bietet für jede Wohnung einen eigenen Kellerraum, der zusätzlichen Stauraum schafft. Im Untergeschoss befinden sich außerdem ein Technikraum und ein gemeinschaftlicher Fahrradraum.Mit diesem Neubauprojekt vereint sich ein hohes Maß an Wohnqualität mit moderner Architektur und energieeffizientem Design in einer der gefragtesten Lagen Osnabrücks.Ähnliche Angebote
So funktioniert es
- Alle neuen Anzeigen matchen wir kostenlos mit Deinen Suchparametern.
- Passende Angebote senden wir Dir in einer E-Mail pro Tag.
- Du kannst auch verschiedene Suchen anlegen und Dich jederzeit abmelden. Mehr dazu




