Kaufpreis 526.000 €
Zimmer 5
Größe 144 m²
16356 Werneuchen
Objektdaten
Veröffentlicht am: 28. März 2025
Energieausweis: Liegt bei der Besichtigung vor
Danke! Bitte bestätige Deine E-Mail-Adresse – wir haben Dir soeben eine Mail geschickt.
Es gab ein Problem beim Absenden. Bitte versuche es erneut.
Bitte bestätige Deine E-Mail-Adresse, um Updates zu erhalten.
Objektbeschreibung
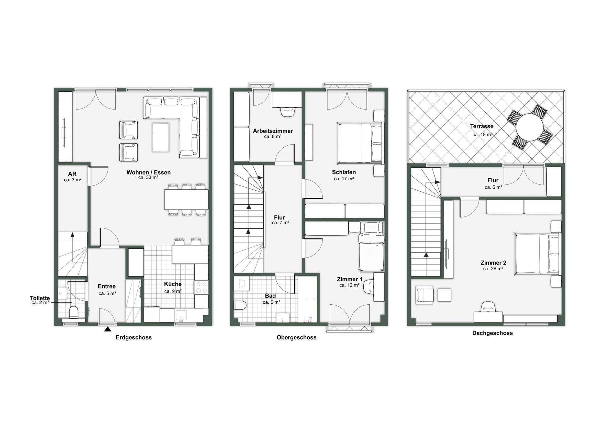
Die Qual der Wahl! Neu, mit viel Platz und in grüner Umgebung. Hier will ich zu Hause sein.Am nord-östlichen Berliner Stadtrand, im naturnahen Werneuchen, entsteht dieser moderne Wohnpark mit sechs Reihenhäusern und zwei Doppelhäusern, die sich mit einer Wohnfläche von ca. 118 m2 bis 144 m2 über drei Etagen erstrecken.Das Erdgeschoss beeindruckt mit einem offenen Grundriss, denn die Verbindung von Wohn- , Ess- und Küchenbereich schafft viel Platz für die liebsten Möbelstücke und sorgt für ein angenehmes Raumgefühl. Hier bieten die bodentiefen Fenster angenehme Lichtverhältnisse und ermöglichen den Zugang zur Terrasse und zum Garten. Des Weiteren befinden sich hier im Erdgeschoss das taghelle Gäste-WC und ein Abstellraum unter der Treppe.Über den Treppenaufgang gelangt man in das Obergeschoss. Diese Etage wartet auf Sie mit zwei Schlafzimmern. Ja nach Einheit gibt es ein weiteres kleineres Zimmer, welches sich optimal als Arbeitszimmer eignet. Die teilweise taghellen Bäder sind je nach Einheit mit einer Badewanne oder einer ebenerdigen Dusche ausgestattet. Das Badezimmer wird über hochwertige Fliesen und Sanitärobjekte verfügen.Im frühen Bauabschnitt können individuelle Wünsche der neuen Eigentümer noch berücksichtigt werden. So kann durch die freie Wahl von zum Beispiel Armaturen und Bodenbelägen die individuelle Persönlichkeit der zukünftigen Bewohner gegen Mehrpreis frei entfaltet werden.Im zweiten Obergeschoss findet sich ein weiteres großzügiges Schlafzimmer sowie eine Galerie oder ein Studio mit Zugang zur Dachterrasse.Zusätzliche gibt es eine gemeinschaftliche Parkfläche mit einem Stellplatz für jede Einheit. Vereinzelt verfügt eine Einheit über einen eigenen Stellplatz am Haus.Hinter dem Wohnpark, Richtung Stadtkern, entsteht eine öffentliche Grünfläche mit SpielplatzDer Bauträger hat es sich zum Ziel gemacht, bezahlbaren und gleichzeitig hochwertigen Wohnraum zu schaffen. Verwirklichen Sie Ihren Traum des eigenen Zuhauses und profitieren Sie vom Rundum-Sorglos-Paket des Bau trägers, welcher bereits zahlreiche Projekte in Berlin und Brandenburg realisiert hat und Sie von Beginn bis zur Übergabe der Immobilie begleiten wird.Sie erhalten das Haus schlüsselfertig, einschließlich der zum Haus gehörigen Außenanlagen.
So funktioniert es
- Alle neuen Anzeigen matchen wir kostenlos mit Deinen Suchparametern.
- Passende Angebote senden wir Dir in einer E-Mail pro Tag.
- Du kannst auch verschiedene Suchen anlegen und Dich jederzeit abmelden. Mehr dazu
Wir haben soeben eine E-Mail mit Deinem Suchauftrag an Dich geschickt. – Klicke in dieser Mail auf den Bestätigungslink und schon geht's los. Prüfe ggf. auch Deinen Spamordner.
Es gab ein Problem beim Absenden Deiner E-Mail-Adresse. Bitte versuche es erneut.
WARNUNG: Bitte bestätige Deine E-Mail-Adresse, um regelmäßige Updates zu erhalten.