Kaufpreis 693.000 €
Zimmer 6
Größe 188 m²
67716 Heltersberg
Objektdaten
Veröffentlicht am: 28. März 2025
Energieausweis: Liegt bei der Besichtigung vor
Danke! Bitte bestätige Deine E-Mail-Adresse – wir haben Dir soeben eine Mail geschickt.
Es gab ein Problem beim Absenden. Bitte versuche es erneut.
Bitte bestätige Deine E-Mail-Adresse, um Updates zu erhalten.
Objektbeschreibung
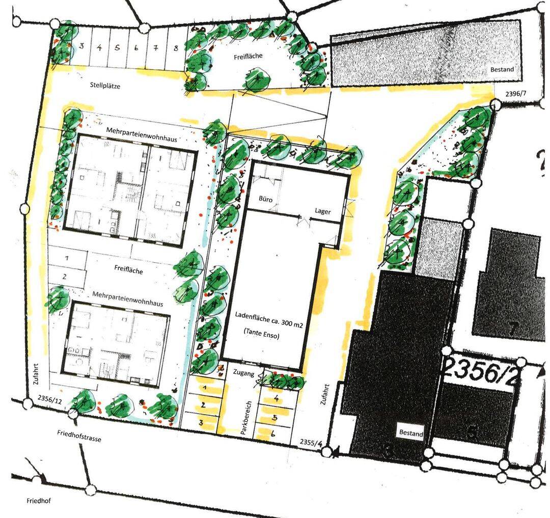
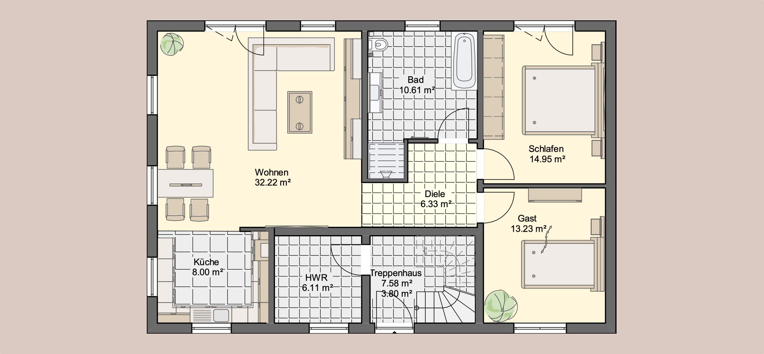
Hier entsteht ein zweigeschossiges Wohngebäude im Stile einer Stadtvilla. Die geraden Wände sorgen für eine optimale Raumnutzung, auch im Obergeschoss. Auf zwei Vollgeschossen lassen sich ohne Dachschrägen großzügige Wohnideen verwirklichen, ganz nach Ihren persönlichen Wünschen und Vorlieben. In diesem Neubau vereint sich geradliniges Stadthaus-Design und gemütliche Mehrfamilienhaus-Atmosphäre. In zwei Wohnungen unter einem Dach haben die Bewohner ausreichend Raum für sich, das Treppenhaus ist der Treffpunkt der urbanen Hausgemeinschaft. Jede Wohneinheit bietet ihre ganz eigene Besonderheit, gemeinsam ist ihnen die clevere Grundrissgestaltung mit ausreichend Stauraum.Im Erdgeschoss spielt sich der Alltag in Wohnzimmer und Küche ab, der Übergang zwischen diesen Räumen ist teilweise offen gestaltet. Auch im Obergeschoss wird moderner Wohnkomfort großgeschrieben. Während im geräumigen Wohnzimmer alle zusammenkommen, bieten drei weitere Zimmer einen individuellen Rückzugsort. Ausreichend Stauraum ist dank eines Abstellraums im Flur und einer Ankleide im Schlafzimmer gewährleistet.Das Stadthaus eröffnet vielfältige Möglichkeiten – ob die Verwirklichung eines gemeinsamen Haustraumes mit Freunden, klassische Vermietung oder altbewährtes Mehrgenerationen-Wohnen.Aktuelle Planungen und Ansichten des 2. Bauabschnitts
So funktioniert es
- Alle neuen Anzeigen matchen wir kostenlos mit Deinen Suchparametern.
- Passende Angebote senden wir Dir in einer E-Mail pro Tag.
- Du kannst auch verschiedene Suchen anlegen und Dich jederzeit abmelden. Mehr dazu
Wir haben soeben eine E-Mail mit Deinem Suchauftrag an Dich geschickt. – Klicke in dieser Mail auf den Bestätigungslink und schon geht's los. Prüfe ggf. auch Deinen Spamordner.
Es gab ein Problem beim Absenden Deiner E-Mail-Adresse. Bitte versuche es erneut.
WARNUNG: Bitte bestätige Deine E-Mail-Adresse, um regelmäßige Updates zu erhalten.