Kaufpreis 329.050 €
Zimmer 4
Größe 105 m²
18334 Dettmannsdorf
Objektdaten
Veröffentlicht am: 29. März 2025
Energieausweis: Liegt bei der Besichtigung vor
Danke! Bitte bestätige Deine E-Mail-Adresse – wir haben Dir soeben eine Mail geschickt.
Es gab ein Problem beim Absenden. Bitte versuche es erneut.
Bitte bestätige Deine E-Mail-Adresse, um Updates zu erhalten.
Objektbeschreibung
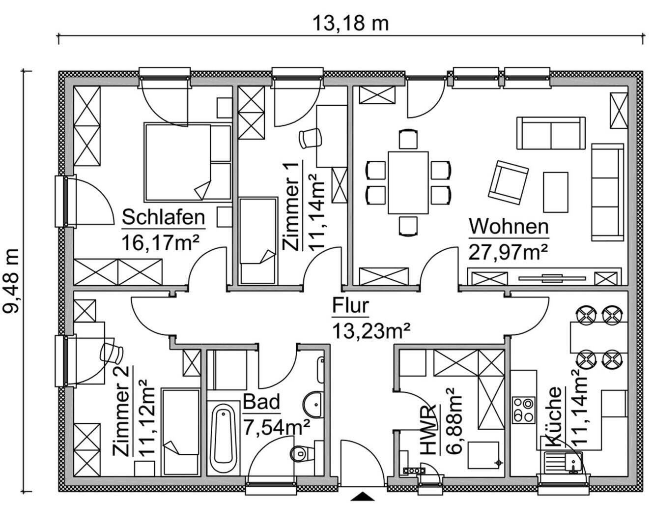
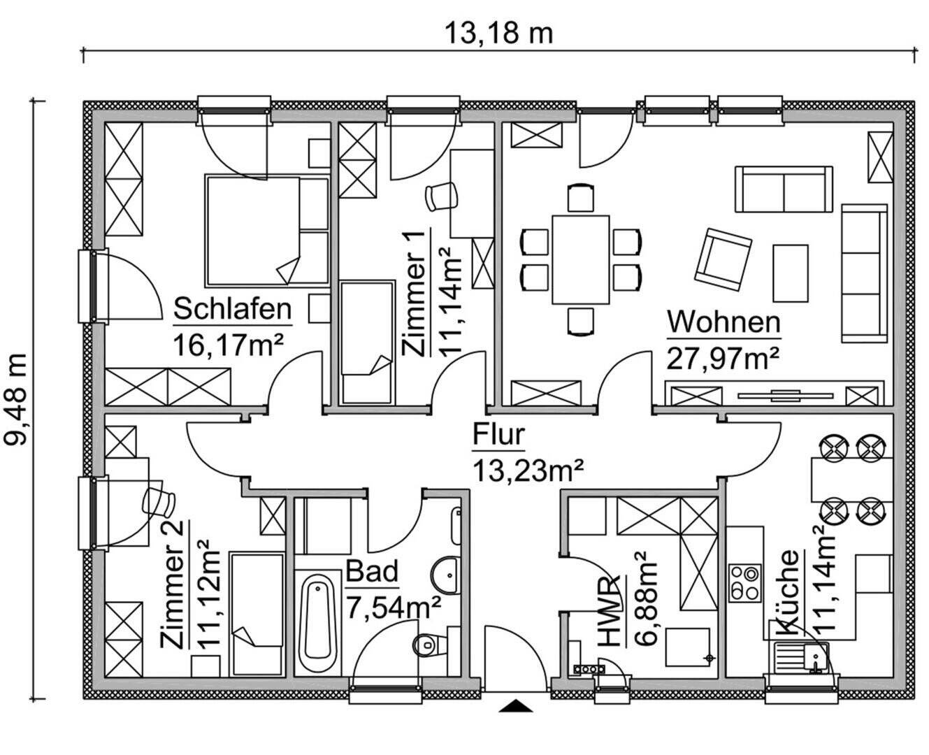
Das SH 105 B in Variante A bietet auf 105 m² ein gut durchdachtes Raumkonzept. Beim Betreten des Hauses gelangt man über einen geradlinigen Flur zu den verschiedenen Räumlichkeiten. Der Wohn- und Essbereich besticht durch bodentiefe Fenster, die einen herrlichen Blick in den Garten oder auf die Terrasse ermöglichen. Die Terrassentür ist in dieser Variante A mit zwei bodentiefen Fensterelementen ergänzt. Die Küche ist als separater Raum konzipiert, was eine klare Abgrenzung schafft.Der andere Teil des Bungalows beherbergt das Schlafzimmer sowie zwei weitere Zimmer und ein Vollbad. Dieses Raumlayout bietet klare Strukturen und kurze Wege zwischen den einzelnen Funktionseinheiten.ERST BAUEN - DANN ZAHLEN!Es handelt sich hierbei um ein projektiertes, noch nicht fertig gestelltes Haus.Selbstverständlich sind individuelle Änderungen (z.B. am Grundriss) problemlos umsetzbar.Der Gesamtpreis setzt sich zusammen aus:° Haus – SH 105 B Variante A EH 40 - EUR 259.050,00 ° Grundstück (externer Anbieter) - 500 m² - EUR 70.000,00 Gesamtpreis: 329.050,00 €Zzgl. Baunebenkosten (z.B. Notar, Grunderwerbssteuer, Eigenleistungen, etc.)
So funktioniert es
- Alle neuen Anzeigen matchen wir kostenlos mit Deinen Suchparametern.
- Passende Angebote senden wir Dir in einer E-Mail pro Tag.
- Du kannst auch verschiedene Suchen anlegen und Dich jederzeit abmelden. Mehr dazu
Wir haben soeben eine E-Mail mit Deinem Suchauftrag an Dich geschickt. – Klicke in dieser Mail auf den Bestätigungslink und schon geht's los. Prüfe ggf. auch Deinen Spamordner.
Es gab ein Problem beim Absenden Deiner E-Mail-Adresse. Bitte versuche es erneut.
WARNUNG: Bitte bestätige Deine E-Mail-Adresse, um regelmäßige Updates zu erhalten.