Kaufpreis 109.990 €
Zimmer 5
Größe 93 m²
32425 Minden
Objektdaten
Veröffentlicht am: 30. März 2025
Baujahr: 2002
Energieausweis: Liegt bei der Besichtigung vor
Danke! Bitte bestätige Deine E-Mail-Adresse – wir haben Dir soeben eine Mail geschickt.
Es gab ein Problem beim Absenden. Bitte versuche es erneut.
Bitte bestätige Deine E-Mail-Adresse, um Updates zu erhalten.
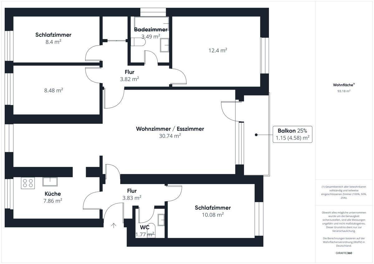
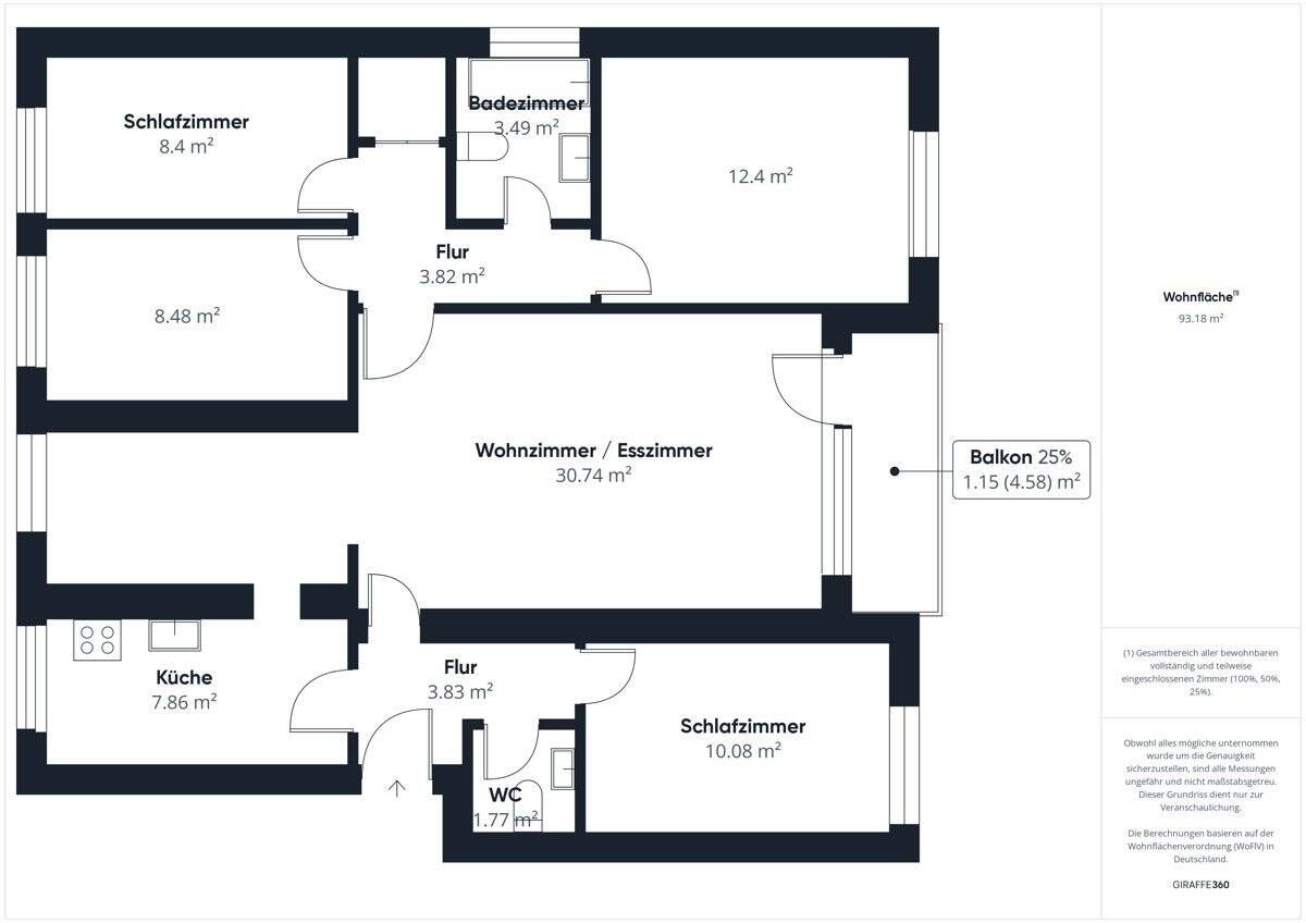
Objektbeschreibung
Dieses Angebot präsentiert Ihnen eine großzügige und super geschnitte 5-Zimmer-Eigentumswohnung in Minden-Rodenbeck. Sie befindet sich in der Wettinerallee 36, im Erdgeschoss links (direkt gegenüber der Herzog-von-Braunschweig Kaserne). Die 93 m² große, massiv gebaute Einheit besticht durch einen durchdachten Grundriss, der Ihnen folgende Räume bietet:. Einen einladenden Flur und ein praktisches Gäste-WC. Ein geräumiges Wohn- und Esszimmer. Eine moderne Küche. Ein Badezimmer. Vier gut geschnittene Schlafzimmer. Eine Abstellkammer. Einen Balkon, der zum Entspannen einlädtZusätzlich stehen an beiden Gebäudeflanken ausgiebige Stellplätze zur Verfügung. Die Wohnung ist Teil einer WEG mit 36 Wohneinheiten, verteilt auf zwei Gebäudeteile mit jeweils drei Eingängen und jeweils drei Treppenhäusern - diese Einheit befindet sich im zweiten Gebäudeteil auf der linken Eingangsseite. Seit April 2005 ist die Wohnung vermietet und erzielt eine Nettokaltmiete von EUR 400 zzgl. EUR 200 Nebenkosten. Das Hausgeld beläuft sich auf monatlich EUR 516.Die Wohnung weist einen Miteigentumsanteil von 30,95/1.000-stel auf. Die jährlichen umlagefähigen Kosten belaufen sich auf EUR 7.273,37, die nicht umlagefähigen Kosten auf EUR 162,39 zuzüglich einer Zuführung zur Erhaltungsrücklage von EUR 686,40.Zum 31.12.2023 beträgt die Erhaltungsrücklage EUR 164.071,21 - im Jahr 2024 wurde diese um ca. EUR 22.000 erhöht, abzüglich bereits erfolgter Instandhaltungsmaßnahmen. Laut den letzten Versammlungsprotokollen sind Maßnahmen in Höhe von ca. EUR 9.000, EUR 35.000 und EUR 12.000 erfolgt bzw. in der Durchführung.Obwohl derzeit der Gemeinschaftsbereich nicht optimal geprägt ist, überzeugen die Schnittstellen der Wohneinheiten durch ihre ansprechende Raumaufteilung. Die gemeinschaftlich genutzten Bereiche, wie Treppenhäuser und Eingangsbereiche, bieten erhebliches Potenzial für eine gezielte Aufwertung - eine Investition, die das Gesamtbild des Objekts nachhaltig verbessern kann. Allein die solide finanzielle Rücklage der Eigentümergemeinschaft unterstreicht das vorhandene Potenzial für zukünftige Modernisierungen und Wertsteigerungen.
So funktioniert es
- Alle neuen Anzeigen matchen wir kostenlos mit Deinen Suchparametern.
- Passende Angebote senden wir Dir in einer E-Mail pro Tag.
- Du kannst auch verschiedene Suchen anlegen und Dich jederzeit abmelden. Mehr dazu
Wir haben soeben eine E-Mail mit Deinem Suchauftrag an Dich geschickt. – Klicke in dieser Mail auf den Bestätigungslink und schon geht's los. Prüfe ggf. auch Deinen Spamordner.
Es gab ein Problem beim Absenden Deiner E-Mail-Adresse. Bitte versuche es erneut.
WARNUNG: Bitte bestätige Deine E-Mail-Adresse, um regelmäßige Updates zu erhalten.