Objektdaten
Objektbeschreibung
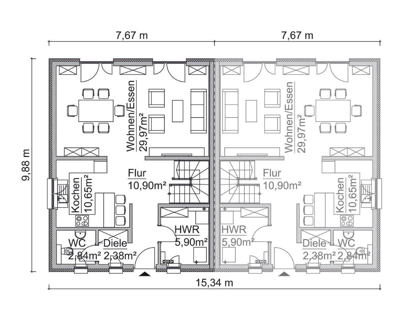
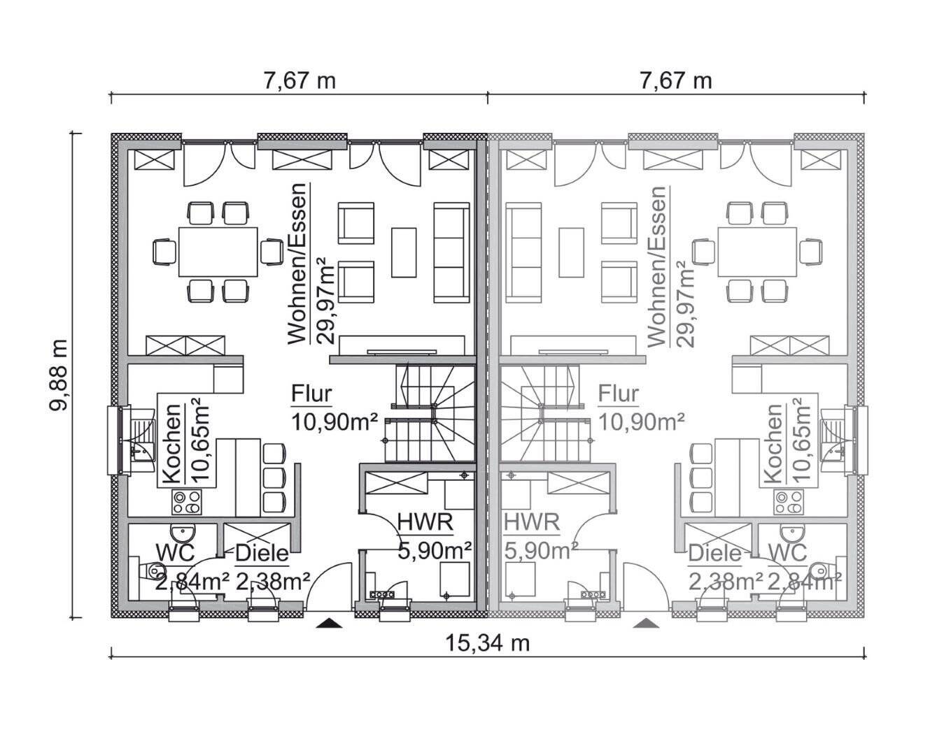
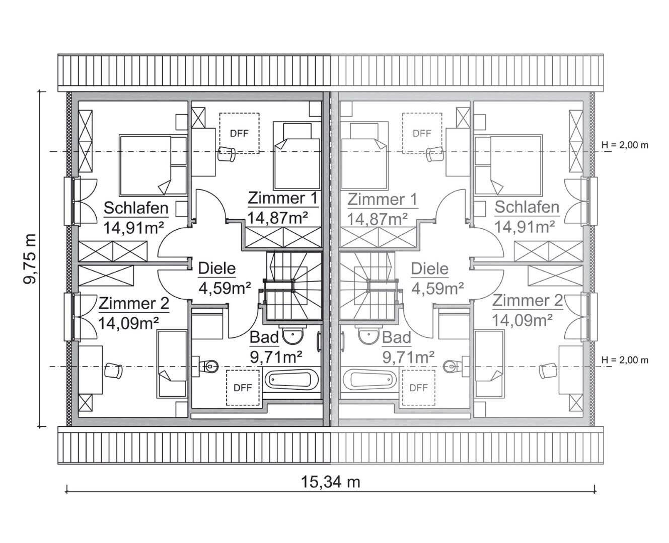
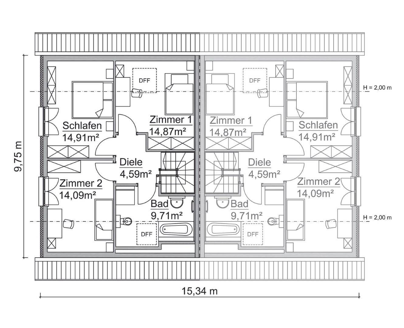
Objektbeschreibung In bezugsfertiger Ausführung: nähere Informationen und die Baubeschreibung finden Sie auf unserer Homepage www.scanhaus.de. Raumaufteilung Siehe GrundrissSo funktioniert es
- Alle neuen Anzeigen matchen wir kostenlos mit Deinen Suchparametern.
- Passende Angebote senden wir Dir in einer E-Mail pro Tag.
- Du kannst auch verschiedene Suchen anlegen und Dich jederzeit abmelden. Mehr dazu




