Objektdaten
Objektbeschreibung
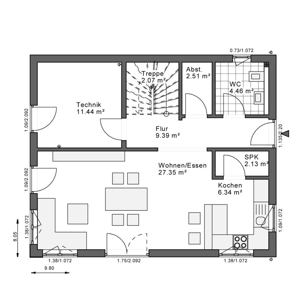
Mit diesem Haus bieten wir Ihnen ein modernes und zeitlos schönes Bien-Zenker Effizienz 40 plus Haus als Energiesparhaus an, das bereits über eine kontrollierte Wohnraum Be- und Entlüftung sowie über das hochmoderne Wärmepumpenheizsystem Wohlfühlklimaheizung + verfügt: Heizen, Lüften, Kühlen und mehr ... Für Ihr Bien-Zenker Haus nur das Beste!Es erwartet Sie exzellentes Design und eine top Bauqualität. Darüber hinaus können Sie sogar selbst noch die Planung des Hauses mitgestalten.So funktioniert es
- Alle neuen Anzeigen matchen wir kostenlos mit Deinen Suchparametern.
- Passende Angebote senden wir Dir in einer E-Mail pro Tag.
- Du kannst auch verschiedene Suchen anlegen und Dich jederzeit abmelden. Mehr dazu




