Objektdaten
Objektbeschreibung
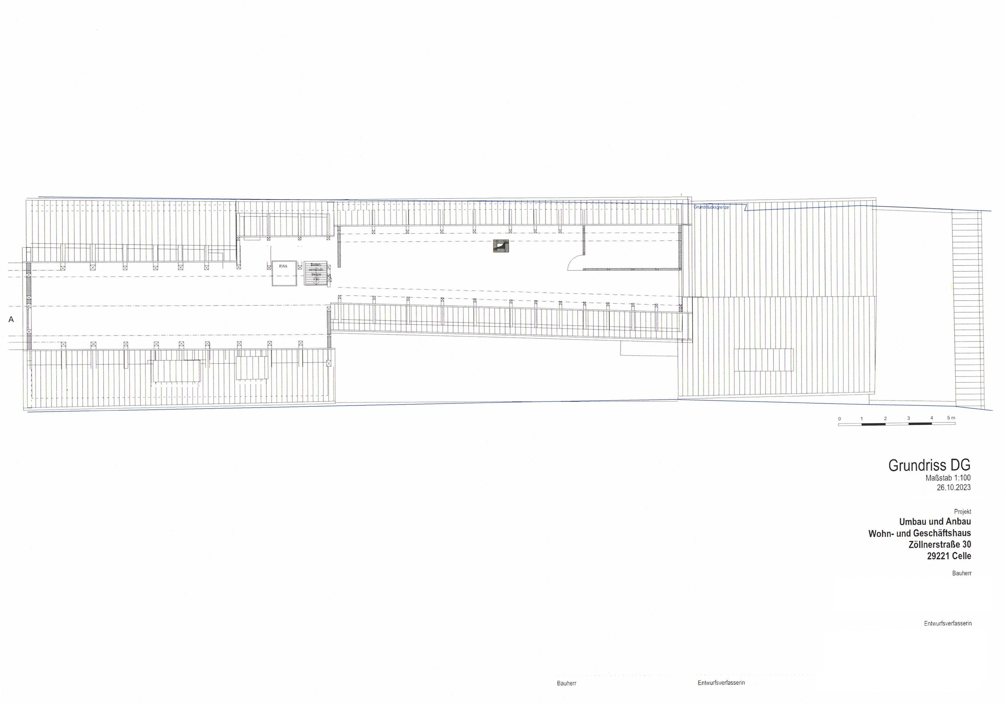
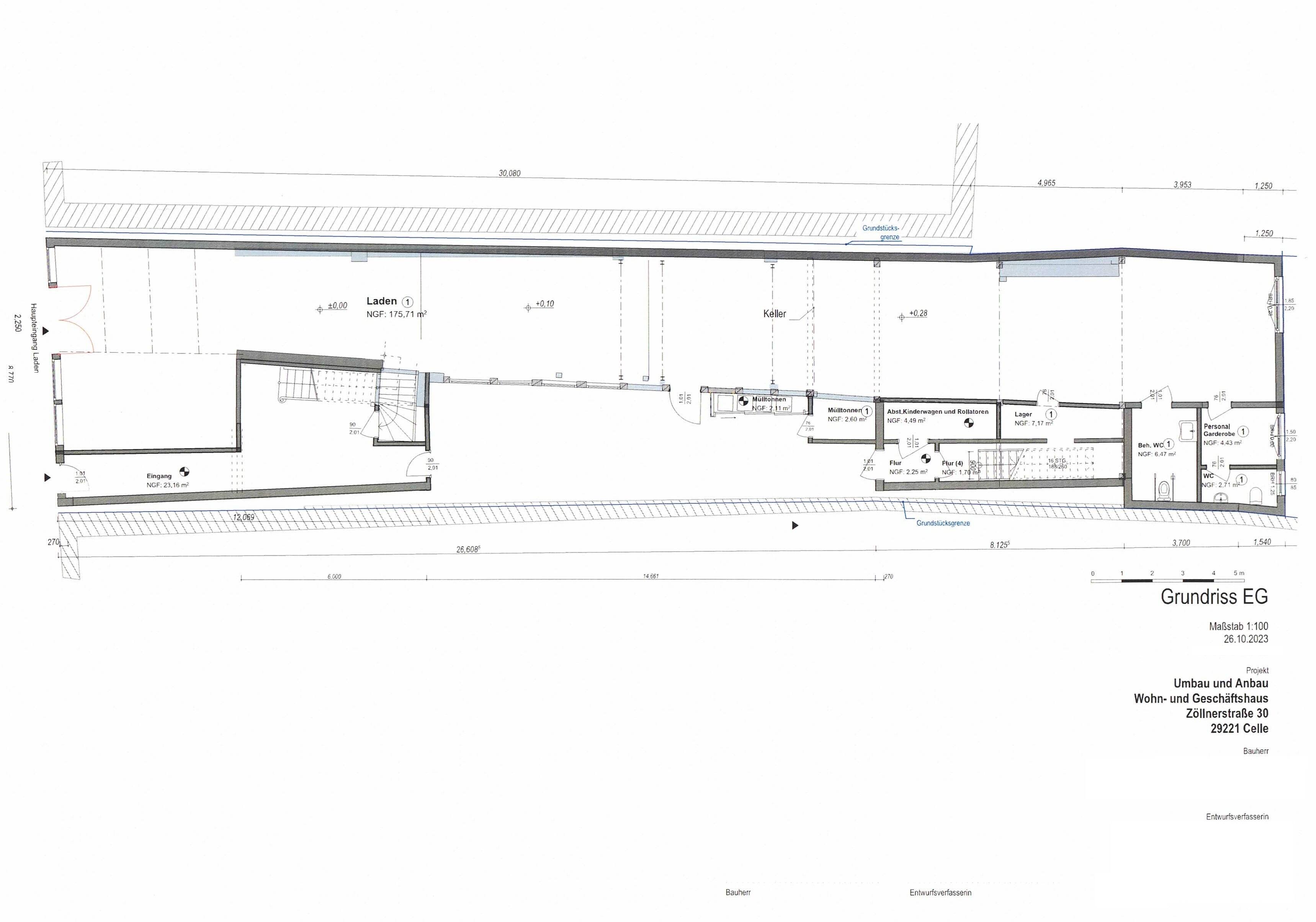
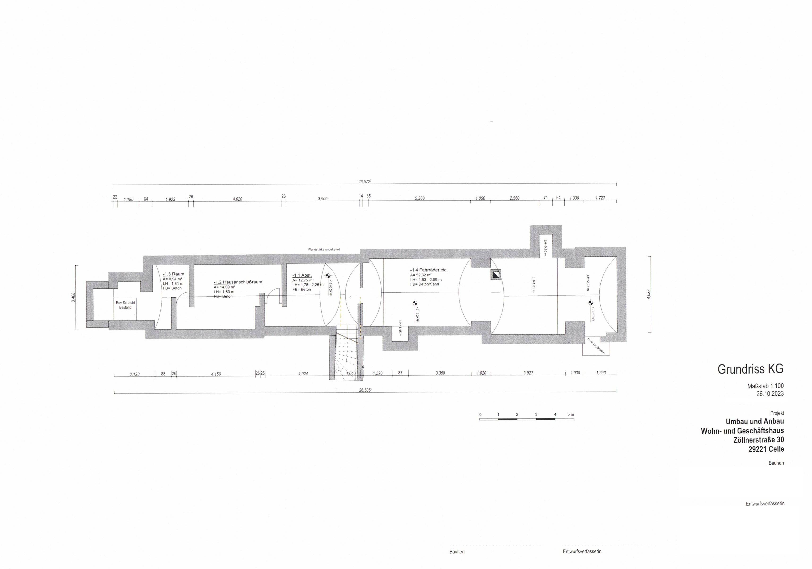
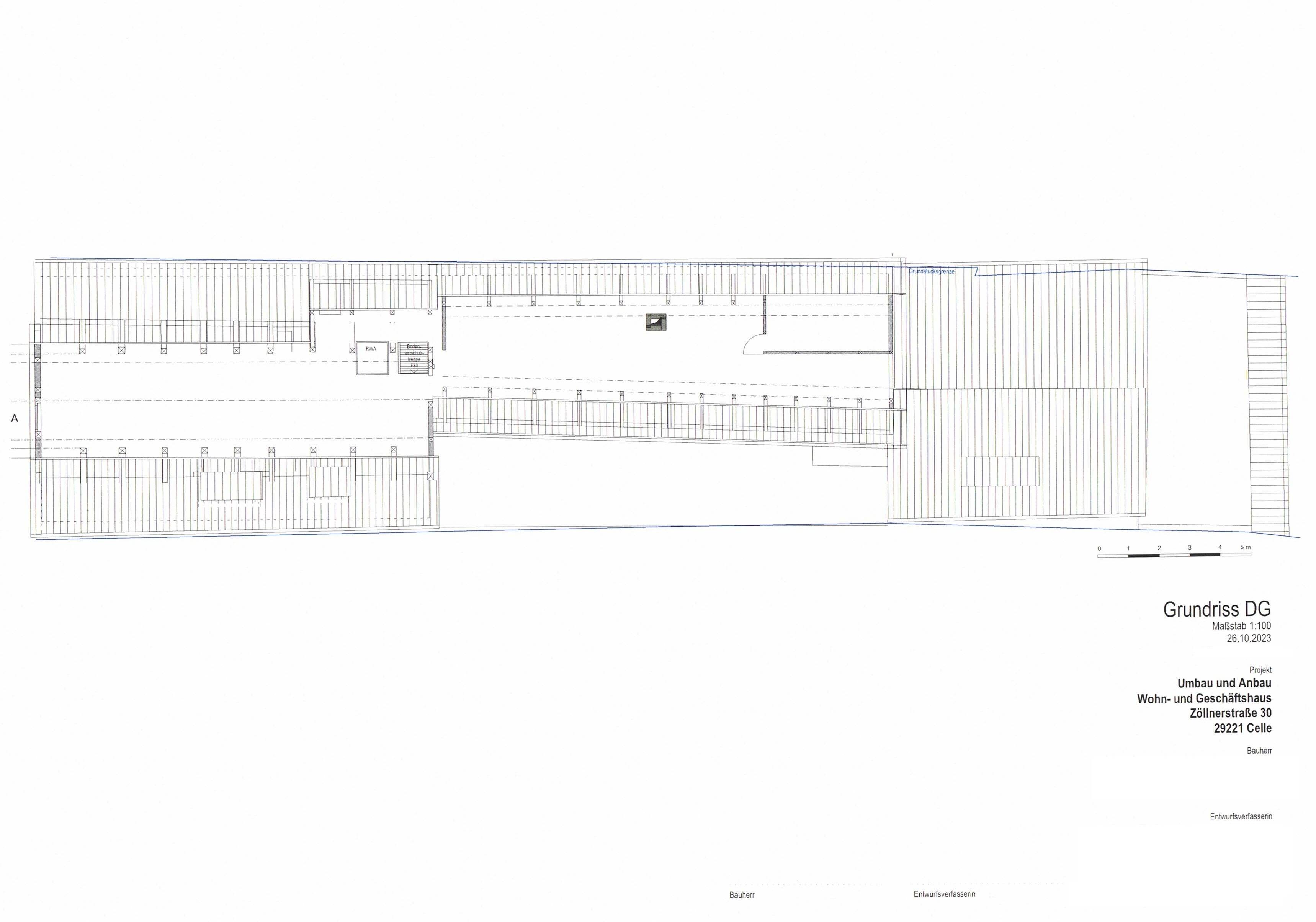
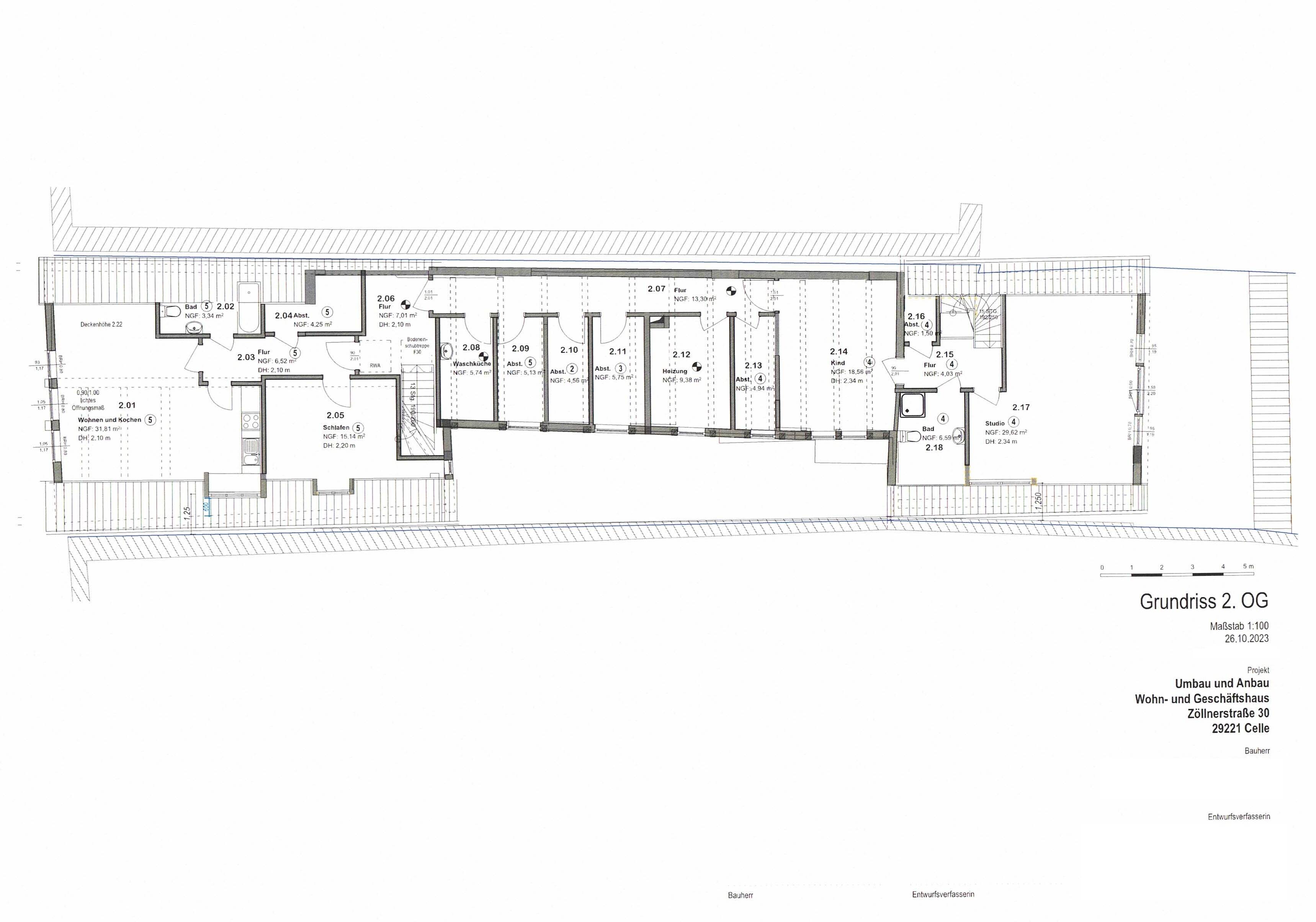
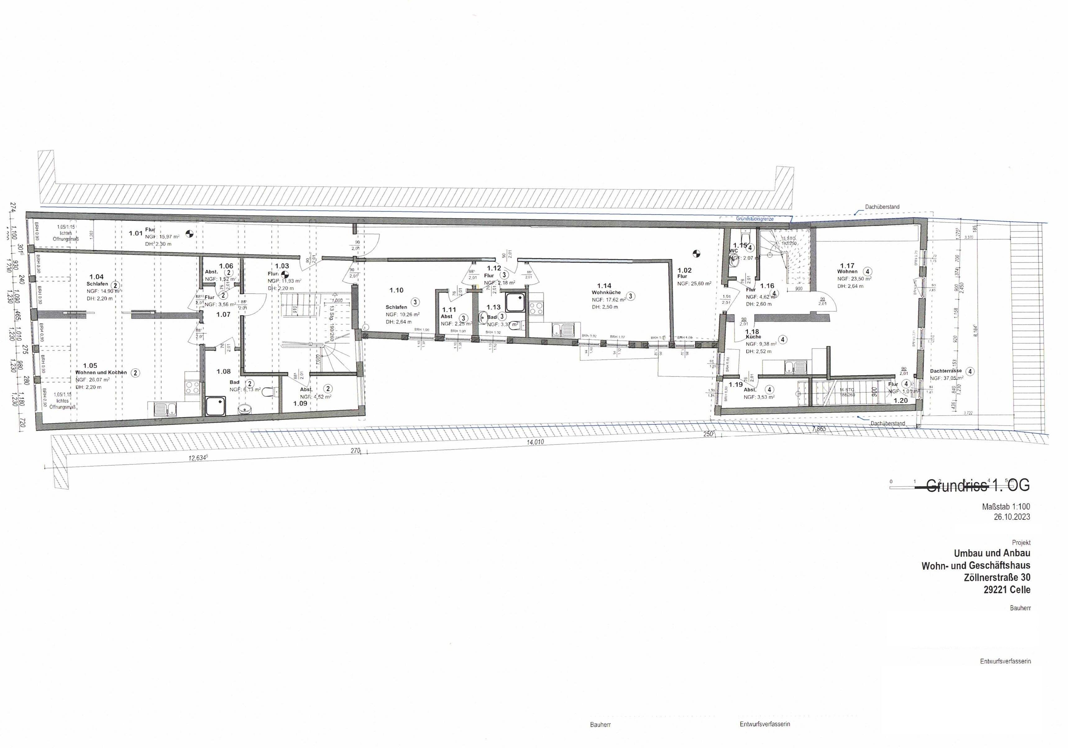
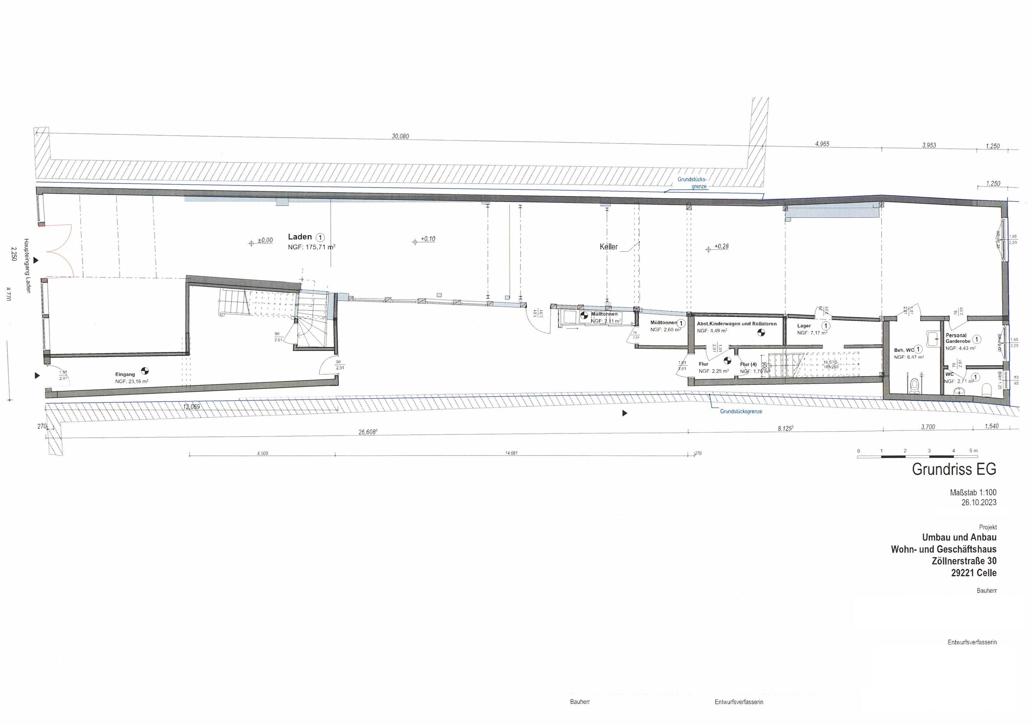
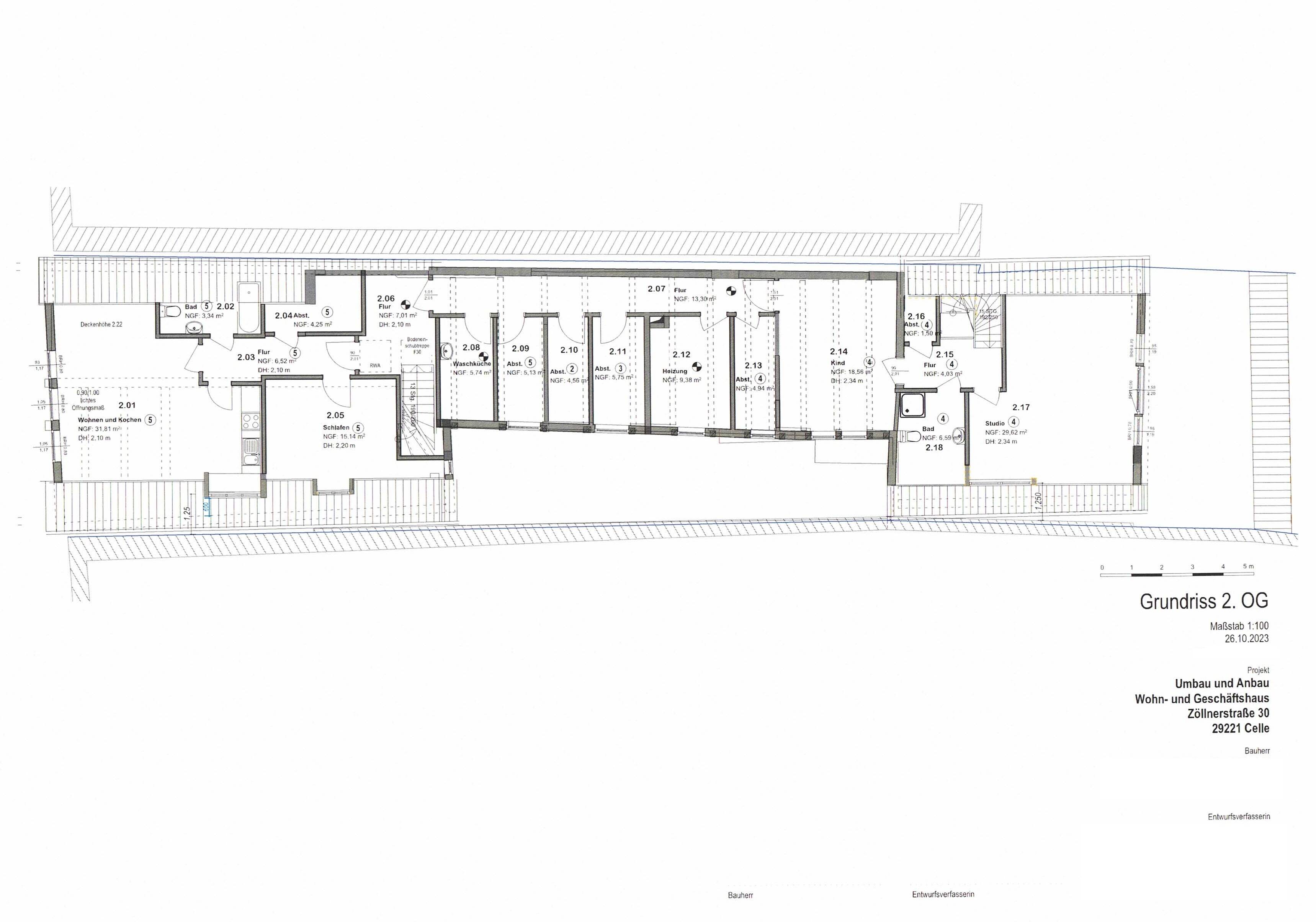
Diese Rarität wurde etwa im 15. Jahrhundert auf einem knapp 342 m² großen Grundstück erbaut und gehört zur ältesten Immobilie in Celle. Die Immobilie verfügt über eine Teilunterkellerung, einer ebenerdigen Gewerbefläche mit einer Nutzfläche von knapp 199 m² sowie die Möglichkeit einer Konzipierung von vier Wohneinheiten in den oberen zwei Etagen. Darüber hinaus sind auf dem Dachboden weitere Ausbaumöglichkeiten vorhanden und über ein separates Treppenhaus sind die jeweiligen Etagen miteinander verbunden. Die Immobilie wird über zwei Gasthermen beheizt und das Objekt ist denkmalgeschützt, sodass kein Energieausweis erforderlich ist.So funktioniert es
- Alle neuen Anzeigen matchen wir kostenlos mit Deinen Suchparametern.
- Passende Angebote senden wir Dir in einer E-Mail pro Tag.
- Du kannst auch verschiedene Suchen anlegen und Dich jederzeit abmelden. Mehr dazu




