Objektdaten
Objektbeschreibung
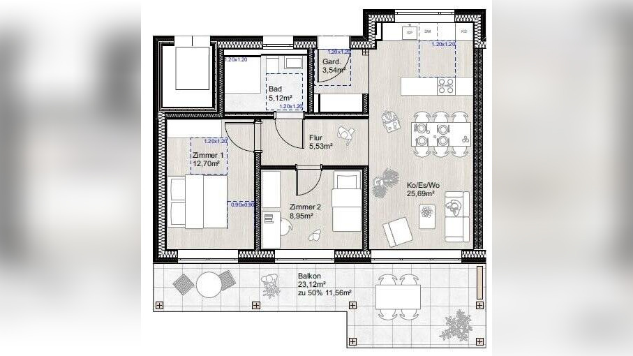
Hier werden Sie sich wohlfühlen: in unmittelbarer Nähe zur Argen entstehen in wohngesunder Holzbauweise in einem weiteren Bauabschnitt 2 sog. Langhäuser mit insg. 37 Wohnungen sowie Räumlichkeiten der bruderhausDIAKONIE.Der Wunsch nach Privatsphäre bei gleichzeitiger Selbstbestimmung sind Aspekte aktueller und zukünftiger Senioren. Wohnen und Leben im zunehmenden Alter erfährt eine immer größere Bedeutung. Deshalb werden in diesen Gebäuden die Bewohner in allen Wohnungen durch Grundleistungen sowie zusätzlich mögliche Wahlleistungen versorgt. Unterstützungen wie Tagespflege, ambulante Dienstleistungen sowie hauswirtschaftliche Angebote sind möglich.Jede der Wohnungen besticht durch eine durchdachte Raumaufteilung und ist durch einen Aufzug auch barrierefrei erreichbar. Die Wohnräume sind durch die bodentiefen Fensterflächen lichtdurchflutet. Neben einem eleganten und modernen Erscheinungsbild zeichnet sich dieses Neubauprojekt durch eine fortschrittliche technische Gebäudeausstattung sowie eine gehobene Inneneinrichtung aus.Zu jeder Wohnung gehört ein Kellerraum, auch überdachte Fahrradräume sind vorhanden.Von der Tiefgarage aus sind alle Wohnungen über einen Personenaufzug bequem und sicher erreichbar.Die Wohnanlage besticht durch die hochwertige Ausstattung der einzelnen Bestandteile, z.B. durch eine dezentrale Lüftungsanlage mit Wärmerückgewinnung, eine hauseigene Photovoltaikanlage - betrieben über ein Mieterstrommodell, Parkettböden in Eiche und eine Wasserenthärtungsanlage.Wir haben Mustergrundrisse abgebildet. Für einen Überblick von allen Wohnungen fordern Sie gerne unser Exposé an.Ähnliche Angebote
So funktioniert es
- Alle neuen Anzeigen matchen wir kostenlos mit Deinen Suchparametern.
- Passende Angebote senden wir Dir in einer E-Mail pro Tag.
- Du kannst auch verschiedene Suchen anlegen und Dich jederzeit abmelden. Mehr dazu




