Kaufpreis 227.600 €
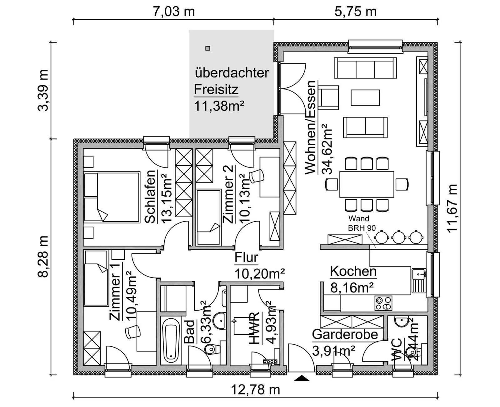
Zimmer 4
Größe 115 m²
16727 Oberkrämer
Objektdaten
Veröffentlicht am: 31. März 2025
Energieausweis: Liegt bei der Besichtigung vor
Danke! Bitte bestätige Deine E-Mail-Adresse – wir haben Dir soeben eine Mail geschickt.
Es gab ein Problem beim Absenden. Bitte versuche es erneut.
Bitte bestätige Deine E-Mail-Adresse, um Updates zu erhalten.
Objektbeschreibung
Sie sind auf der Suche nach einem Eigenheim und möchten sich hierzu einfach mal beraten lassen ob dies überhaupt möglich ist ? Dann sind Sie bei uns bestens aufgehoben.Einmalig - bei uns zahlen Sie erst, wenn Ihr ScanHaus steht und die Schlüsselübergabe an Sie erfolgt ist.Unsere Pluspunkte sind:- Estrich und Bodenplatte im Preis enthalten- bodentiefe Dusche- Sternverdrahtung der Elektrik- Deckenhöhe 2,50 m auch im OG- trockene Bauweise, getrocknete Holzständer mit nur noch etwa 11-18 % Feuchtigkeitsanteil - moderne Holzrahmenbauweise/Holzständerbauweise- Fußbodenheizung im Standard- Außensteckdose (abschaltbar) und Außenwasserhahn- erst bauen, dann bezahlen- Bonitätszertifikat von der Creditreform (CrefoZert) - Verlässlichkeit, Stärke undLeistungsfähigkeit- Der Blaue Engel das Umweltzeichen der Bundesregierung - kurze Bauzeiten und nach Innenausbau dann gleich bezugsfertig(keine lange Bautrocknung nötig)- Grundrissänderungen möglich – individuelles Bauen- einen der besten Schallschutzwerte aller Bauunternehmen- Niedrigenergiehäuser, KFW 40 Standard und Möglichkeit zum „QNG“- im Standard gleich eine hervorragende Außenwanddämmung mit einem U-Wert von 0,14 bei Putzfassade - Neuste und energetische Technik- Alles aus einer Hand/ Wenige Ansprechpartner = Verkäufer ? Architekt ? Bauleiter- Gleichbleibende Qualität durch eigene Bauteams- Detaillierter & verbindlicher Bauablaufplan- Blower-Door-Messung – Luftdichtheitsgrad des Hauses
So funktioniert es
- Alle neuen Anzeigen matchen wir kostenlos mit Deinen Suchparametern.
- Passende Angebote senden wir Dir in einer E-Mail pro Tag.
- Du kannst auch verschiedene Suchen anlegen und Dich jederzeit abmelden. Mehr dazu
Wir haben soeben eine E-Mail mit Deinem Suchauftrag an Dich geschickt. – Klicke in dieser Mail auf den Bestätigungslink und schon geht's los. Prüfe ggf. auch Deinen Spamordner.
Es gab ein Problem beim Absenden Deiner E-Mail-Adresse. Bitte versuche es erneut.
WARNUNG: Bitte bestätige Deine E-Mail-Adresse, um regelmäßige Updates zu erhalten.