Kaufpreis 483.700 €
Zimmer 3
Größe 86 m²
69469 Weinheim
Objektdaten
Veröffentlicht am: 1. April 2025
Energieausweis: Liegt bei der Besichtigung vor
Danke! Bitte bestätige Deine E-Mail-Adresse – wir haben Dir soeben eine Mail geschickt.
Es gab ein Problem beim Absenden. Bitte versuche es erneut.
Bitte bestätige Deine E-Mail-Adresse, um Updates zu erhalten.
Objektbeschreibung
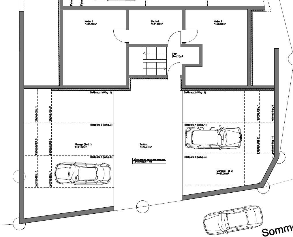
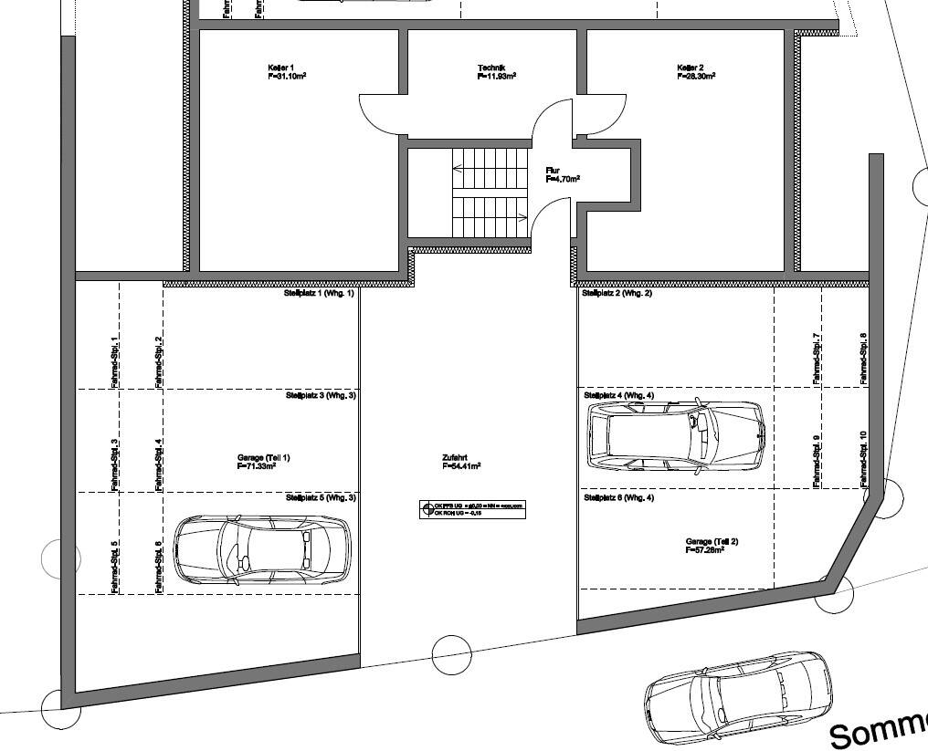
2 Mehrfamilienhäuser mit jeweils 3-4 Eigentumswohnungenvon 2 ZKB mit ca. 50 m² bis 5 ZKB ca. 119 m² WohnflächeIn bester Ortsrandlage entstehen zwei lichtdurchflutete architektonisch attraktive Mehrfamilienhäuser in unterschiedlicher Ausführung. Die Bauausführung erfolgt sowohl in Massivbauweise kann auch teilweise in Holzbauweise ausgeführt werden. Das gesamte Ensemble fügt sich mit seiner solitären Architektur harmonisch in das gewachsene Wohnumfeld ein und bietet dazu einen hervorragenden Blick in das Tal.Das vordere Haus kann mit 3 - 4 einzelnen Wohnungen erbaut werden. Je nachdem, was der Kunde wünscht. Es bietet großzügige, süd-westlich ausgerichtete Terrassen und Balkonflächen, die zum Verweilen und Genießen einladen. Je nach Wohnungsgröße verteilen sich die einzelnen Zimmer auf einen Wohn/Ess/Küchenbereich mit Bad und teilweise separaten Gäste-WC. Weiterhin hat jede Wohnung eine Terrasse oder Balkonfläche zur Verfügung. Die im Kellergeschoss integrierte Tiefgarage mit Ihren insgesamt 6 Stellplätzen sorgt für ein praktisches Parken und einen, durch den Fahrstuhl, jederzeit trockenen und barrierefreien Zugang zur jeweiligen Wohnung. Weiterhin sind Gartenflächen vorhanden, welche durch den jeweiligen Eigentümer des Erdgeschosses individuell gestaltbar sind.Das hintere Haus kann ebenfalls mit 3 - 4 einzelnen Wohnungen erbaut werden. Auch hier kann der Kunde entscheiden. Das Hinterhaus bietet großzügige, westlich ausgerichtete Terrassen und Balkonflächen, die zum Verweilen und Genießen einladen. Je nach Wohnungsgröße verteilen sich die einzelnen Zimmer auf einen Wohn/Ess/Küchenbereich mit Bad und teilweise separaten Gäste-WC. Weiterhin hat jede Wohnung eine Terrasse oder Balkonfläche zur Verfügung. Die im Kellergeschoss integrierte Tiefgarage mit Ihren insgesamt 6 Stellplätzen sorgt für ein praktisches Parken und einen, durch den Fahrstuhl, jederzeit trockenen und barrierefreien Zugang zur jeweiligen Wohnung. Weiterhin sind Gartenflächen vorhanden, welche durch den jeweiligen Eigentümer des Erdgeschosses individuell gestaltbar sind
So funktioniert es
- Alle neuen Anzeigen matchen wir kostenlos mit Deinen Suchparametern.
- Passende Angebote senden wir Dir in einer E-Mail pro Tag.
- Du kannst auch verschiedene Suchen anlegen und Dich jederzeit abmelden. Mehr dazu
Wir haben soeben eine E-Mail mit Deinem Suchauftrag an Dich geschickt. – Klicke in dieser Mail auf den Bestätigungslink und schon geht's los. Prüfe ggf. auch Deinen Spamordner.
Es gab ein Problem beim Absenden Deiner E-Mail-Adresse. Bitte versuche es erneut.
WARNUNG: Bitte bestätige Deine E-Mail-Adresse, um regelmäßige Updates zu erhalten.