Objektdaten
Objektbeschreibung
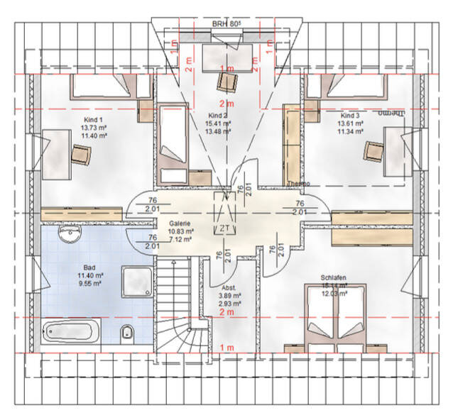
Wir verkaufen hier dieses schöne Grundstück mit Ihrem Traumhaus in Schortens. Gerne planen und realisieren wir hier ein hochwertiges Zuhause für Ihre Familie.Jeder einzelne Bauplatz bietet Ihnen Ihnen und Ihrer Familie viel Platz.Unsere Häuser - LebensWert mit Elbe-Haus GmbH- hervorragendes Preis-Leistungsverhältnis- seit mehr als 25 Jahren erfolgreich im Massivhaus-Bau- Service, Qualität & Sicherheit... alles, außer gewöhnlich! - persönliche Beratung durch ein gut geschultes und erfahrenes Team vor Ort (Verkaufsberater, Architekten und Bauleiter)- individuelle Entwurfsplanung, - der komplette Bauantrag einschließlich aller erforderlichen Berechnungen und Nachweise und einer erweiterten Werkplanung für Gebäude und Haustechnik- Terminsicherheit und Bauzeitgarantie - Ihr Preis ist Ihr Preis. - Der Festpreis gilt für 24 Monate (Abschluss Werkvertrag-Hausübergabe)- gleichbleibende Ansprechpartner vom Werkvertrag bis Ende der Gewährleistungszeit- Dokumentation aller Bauherrenwünsche in transparenten Checklisten- modernes Bauherrenzentrum mit umfangreicher Musterausstellung- eigenes Bauunternehmen- zertifizierte Handwerksbetriebe und Partner- DEKRA Sachverständige führen bei all unseren Bauvorhaben gemeinsam mit der Bauleitung und den Bauherren mehrere Baustellenbegutachtungen durch.Ähnliche Angebote
So funktioniert es
- Alle neuen Anzeigen matchen wir kostenlos mit Deinen Suchparametern.
- Passende Angebote senden wir Dir in einer E-Mail pro Tag.
- Du kannst auch verschiedene Suchen anlegen und Dich jederzeit abmelden. Mehr dazu




