Objektdaten
Objektbeschreibung
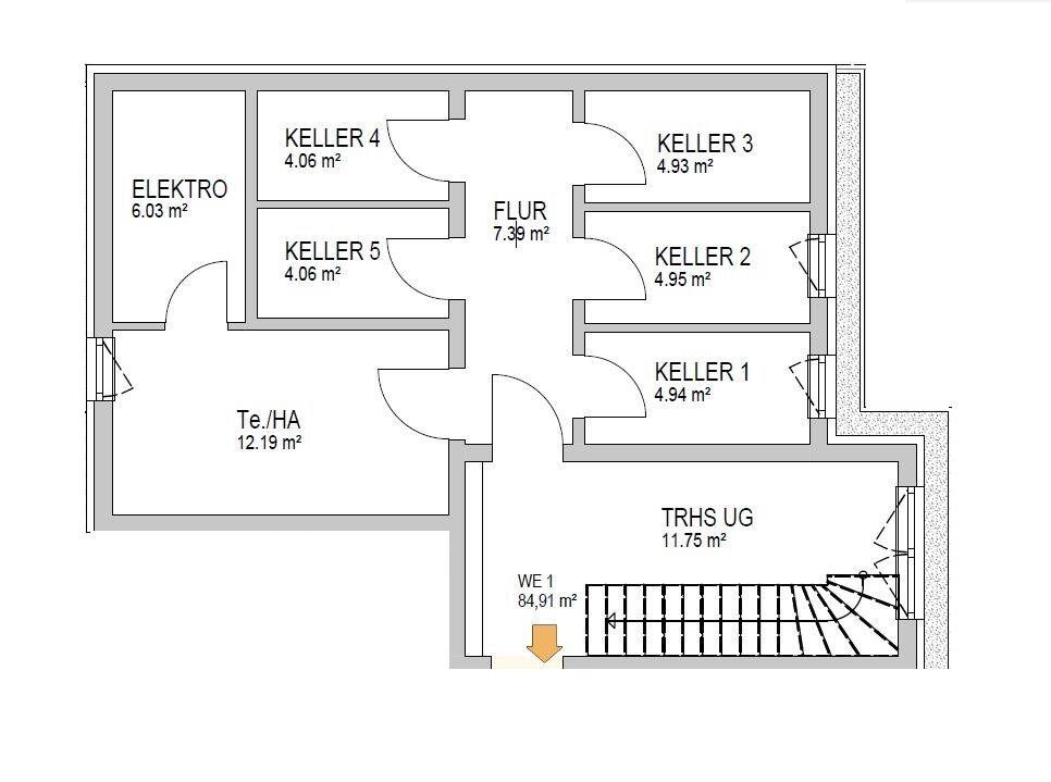
Im Stadteil Neuprüll entsteht ein kleines Mehrfamilienhaus (5 Einheiten) in KfW 40-Standard Nähe Universität und Klinikum in ruhiger Lage. Die Wohnung teilt sich in eine Diele, Schlafzimmer, Kinderzimmer, Badezimmer mit Dusche und Waschmaschinenanschluss, einem Abstellraum und einem großen Wohn-, Ess- und Kochbereich mit Zugang zum ca. 4,99 m² großen Balkon auf . Zu jeder Wohnung muss ein Carport ( 18.500,-- €) oder ein Stellplatz (11.400,-- €) erworben werden.Alle Kaufpreise verstehen sich zzgl. 2,38 % Maklercourtage inkl. ges. MwSt.Baubeginn im Frühjahr 2025. Die Baugenehmigung liegt bereits vor.Ähnliche Angebote
So funktioniert es
- Alle neuen Anzeigen matchen wir kostenlos mit Deinen Suchparametern.
- Passende Angebote senden wir Dir in einer E-Mail pro Tag.
- Du kannst auch verschiedene Suchen anlegen und Dich jederzeit abmelden. Mehr dazu




