Moderne und großzügige Wohnung in Igel *Erstbezug

Kaufpreis 480.000 €
Zimmer 5
Größe 164 m²
54298 Igel

Objektdaten

Veröffentlicht am: 17. April 2025
Frei ab: 1. April 2024
Energieausweis: Liegt bei der Besichtigung vor
  • Objektbeschreibung

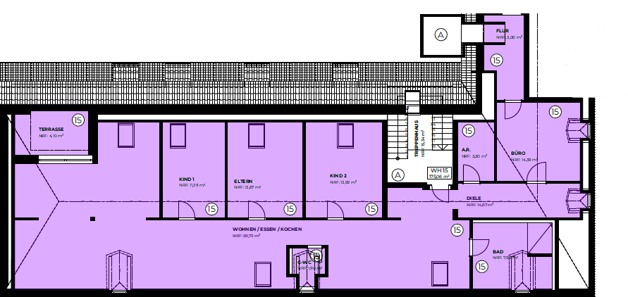
    Objektbeschreibung Bei dieser Wohnung handelt es sich um eine exklusive Eigentumswohnung direkt an der Igeler Säule. Sie ist im dritten Obergeschoss gelegen und verfügt über einen sehr schönen Wohnungsgrundriss mit eine Dachterrasse, die einen herrlichen Ausblick auf die Igeler Säule bietet.Die Wohnung wurde aufwendig und hochwertig renoviert .Ein exklusives Ausstattungsmerkmal ist der Wellnessbereich im Kellerbereich, welcher über einen Innenpool, sowie eine eigene Sauna verfügt.Die Wohnung verfügt über weiße Kunststofffenster mit 3-facher Isolierverglasung sowie weiße Innentüren mit Edelstahlgriffen. Die modernen und neue Badezimmer verfügen über eine ebenerdige Dusche und hochwertige Badezimmermöbel. Eine neue Einbauküche rundet das exklusive Angebot ab. Fußbodenheizung ist gegeben. 2 Stellplätze.Insgesamt eine moderne und hochwertige Eigentumswohnung, die einem Neubau gleichkommt. Optimal für das Paar oder die Familie oder als Kapitalanlage geeignet. Raumaufteilung WH 15
    Nach oben scrollen