Altersgerechte 3-Zimmer-Wohnung mit Platz für eine Pflegekraft in Vaihingen an der Enz
Kaufpreis 536.900 €
Zimmer 3
Größe 92 m²
71665 Vaihingen an der Enz
Objektdaten
Veröffentlicht am: 18. April 2025
Energieausweis: Liegt bei der Besichtigung vor
Danke! Bitte bestätige Deine E-Mail-Adresse – wir haben Dir soeben eine Mail geschickt.
Es gab ein Problem beim Absenden. Bitte versuche es erneut.
Bitte bestätige Deine E-Mail-Adresse, um Updates zu erhalten.
Objektbeschreibung
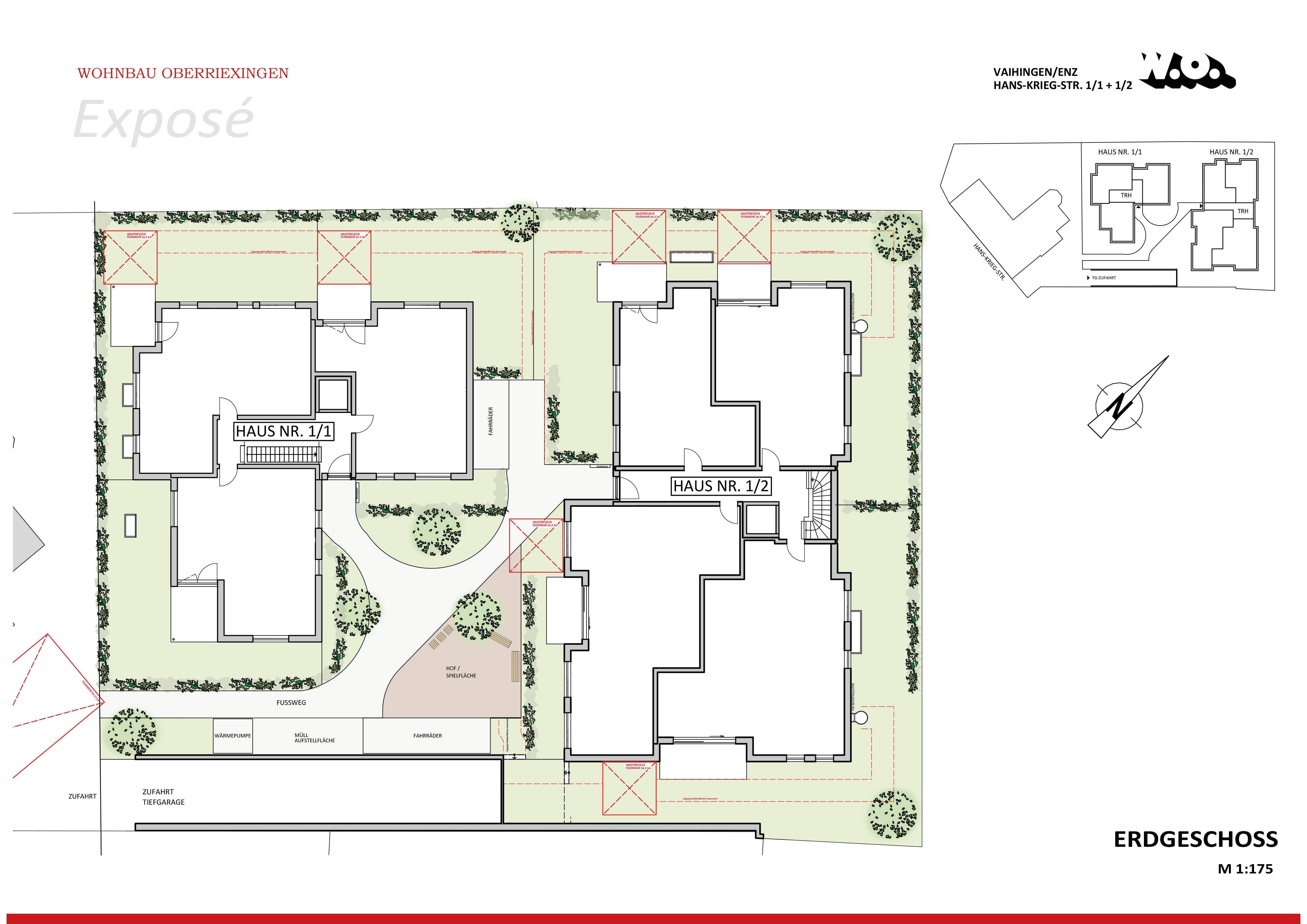
In gewachsener und ansprechender Wohnumgebung in Vaihingen an der Enz entstehen zwei moderne Wohngebäude mit insgesamt 24 hochwertigen Wohnungen. Ob 2-, 3- oder 4-Zimmerwohnung - hier finden Sie den perfekten Raum für Ihre Bedürfnisse. Die Wohnungsgrößen reichen von ca. 58 m² bis hin zu großzügigen ca. 135 m² und bieten so für jeden ein ideales Zuhause. Diese altersgerechte 3-Zimmer-Wohnung im Erdgeschoss eines modernen, neu entstehenden 14-Parteien-Hauses im Herzen von Vaihingen/Enz bietet Ihnen ein komfortables Zuhause für den Lebensabend. Die sonnige Südwest-Terrasse lädt zum Verweilen ein, während der angrenzende Garten die Möglichkeit bietet, Zeit im Grünen zu genießen. Der helle Wohn-/Essbereich schafft eine behagliche Atmosphäre und bietet ausreichend Platz für gemütliche Stunden. Das geräumige Schlafzimmer sorgt für erholsame Nächte, während das zweite Zimmer flexibel nutzbar ist - sei es als Rückzugsort, für eine Pflegekraft oder als separater Schlafbereich für mehr Komfort im Alter. Das barrierefreie Bad mit Dusche und WC ist ideal für einen entspannten Start in den Tag. Ein zusätzliches Gäste-WC sowie ein praktischer Abstellraum in der Wohnung sorgen für extra Komfort und Ordnung. Hier wohnen Sie sicher, bequem und selbstbestimmt - ein ideales Zuhause für Ihre Zukunft!Alle Wohnungen überzeugen durch eine ideale Raumaufteilung und eine hochwertige Ausstattung. Der Bezug ist in 2026 möglich. Jedes Gebäude verfügt über eine Aufzugsanlage. Beheizt wird die Wohnanlage mit einer Luft-/ Wasserwärmepumpe gekoppelt mit Solar. Ihre Parkplatzsorgen werden Ihnen durch Tiefgaragenplätze genommen.
Alle neuen Anzeigen matchen wir kostenlos mit Deinen Suchparametern.
Passende Angebote senden wir Dir in einer E-Mail pro Tag.
Du kannst auch verschiedene Suchen anlegen und Dich jederzeit abmelden. Mehr dazu
Wir haben soeben eine E-Mail mit Deinem Suchauftrag an Dich geschickt. – Klicke in dieser Mail auf den Bestätigungslink und schon geht's los. Prüfe ggf. auch Deinen Spamordner.
Es gab ein Problem beim Absenden Deiner E-Mail-Adresse. Bitte versuche es erneut.
WARNUNG: Bitte bestätige Deine E-Mail-Adresse, um regelmäßige Updates zu erhalten.
Sie sehen gerade einen Platzhalterinhalt von Turnstile. Um auf den eigentlichen Inhalt zuzugreifen, klicken Sie auf die Schaltfläche unten. Bitte beachten Sie, dass dabei Daten an Drittanbieter weitergegeben werden.
Sie sehen gerade einen Platzhalterinhalt von Vimeo. Um auf den eigentlichen Inhalt zuzugreifen, klicken Sie auf die Schaltfläche unten. Bitte beachten Sie, dass dabei Daten an Drittanbieter weitergegeben werden.
Sie sehen gerade einen Platzhalterinhalt von YouTube. Um auf den eigentlichen Inhalt zuzugreifen, klicken Sie auf die Schaltfläche unten. Bitte beachten Sie, dass dabei Daten an Drittanbieter weitergegeben werden.
Sie sehen gerade einen Platzhalterinhalt von Turnstile. Um auf den eigentlichen Inhalt zuzugreifen, klicken Sie auf die Schaltfläche unten. Bitte beachten Sie, dass dabei Daten an Drittanbieter weitergegeben werden.