Objektdaten
Objektbeschreibung
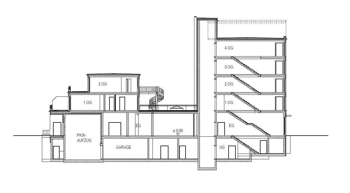
Neubau von barrierearmen 2 Zimmer Eigentumswohnungen (Wohnfläche ca. 64m² bis ca. 73m²), geplant von einem ortsansässigen, renommierten Architekturbüro, gebaut mit regionalen Handwerksbetrieben. Ideal für ein bequemes Leben im Zentrum!Im Erdgeschoss steigen Sie vom Lift aus und sind mitten in der Einkaufszeile des zentralen Karl-Lederer-Platzes. Der Lift fährt im Hauptgebäude von der Tiefgarage direkt in jede Etage.Alle Balkone und Terrassen sind zur ruhigeren Rückseite des Gebäudes ausgerichtet. In den Eigentumswohnungen werden Massivholz-Parkettböden und Fliesen nach Käuferwahl auf Fußbodenheizung verlegt. Für ein angenehmes Wohngefühl und mehr Stellmöglichkeiten Ihres Mobiliars ist also gesorgt. Das Haus ist mit einer Luftwärmepumpe ausgestattet. Öl oder Gas wird nicht benötigt - perfekt für eine nachhaltige Energieversorgung. Die 3fach verglasten Kunststofffenster sorgen für gute Dämmung und Energieeffizienz. Kunststoff-Rollläden inklusive elektrischen Antrieb bieten zusätzlichen Komfort. Den Doppelpacker-Stellplatz in der Tiefgarage können Sie optional für 16.000,- € kaufen.So funktioniert es
- Alle neuen Anzeigen matchen wir kostenlos mit Deinen Suchparametern.
- Passende Angebote senden wir Dir in einer E-Mail pro Tag.
- Du kannst auch verschiedene Suchen anlegen und Dich jederzeit abmelden. Mehr dazu




